查看完整案例

收藏

下载

翻译
Architects:Alexander Symes Architect
Area:60m²
Year:2021
Photographs:Barton Taylor
Manufacturers:Brink Climate Systems,Neuffer
Builder:Souter Built
Interior Design:Paiano Design
Structural Engineer:Northrop
Council:Wollongong City Council
Landscape Architect:Grant Clement
Country:Australia
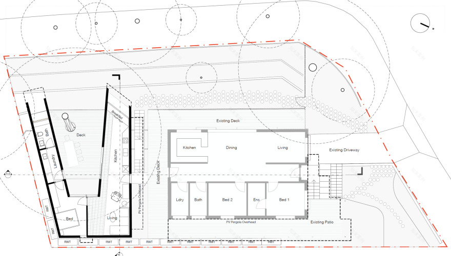
Text description provided by the architects. Pepper Tree Passive House is a small secondary dwelling to a young family’s home in the Australian Illawarra region, perched on a steep site and elevated into the canopy of the site’s eponymous 60-year-old Pepper Tree. Built to the international Passive House standard, true sustainability is at the core ethos of the project - embodied between the natural material palette, high-performance design, and strong biophilic connection. The two cantilevered wings each host a green roof, filled with native Australian plants, blending the building into the landscape.
The secondary dwelling provides much-needed separate office space for the clients’ growing company, as well as providing space for guest accommodation and being geared for short-stay accommodation. The works to the existing home improve the thermal comfort of the space and create new entertaining spaces throughout. Between the natural and raw material palette including extensive timber use, endemic rooftop gardens, and tree canopy deck, the biophilic connection of the entire site is strengthened with its immediate environment.
Nestled into the tree canopy of the Pepper Tree, the secondary dwelling sits lightly on the steep site and elevates the natural ground via its green roofs, with the recycled Shou Sugi Ban cladding allowing the building to blend into its environment.
Previously exposed to the street corner below, the wrap-around deck to the existing home creates spaces for entertaining that provide both noise and visual buffer to the street, and direct views over the street tree canopies towards Mount Kembla. The project adds much-needed usable floor space to the suburban site without overdeveloping or sacrificing biophilic connection.
By using salvaged and waste materials throughout, costs were significantly reduced without sacrificing material quality. Passive House standard and 12kW photovoltaic panel system mean that the project’s overall grid energy consumption is only 14% of a comparably sized home (86% reduction), significantly reducing the lifetime cost to the clients. As opposed to thermally upgrading 160m2 to the passive house standard, only 60m2 will actually be comfortable in future peak climatic conditions. This approach provides a precedent for creating small future-proofed additions so that we can be climate adaptive without the massive cost of upgrading all existing dwellings.
Project gallery
客服
消息
收藏
下载
最近




























