查看完整案例

收藏

下载

翻译
Architects:RCAB Studio
Area:421m²
Year:2021
Photographs:KIE
Manufacturers:Allure Industries,Daikin,Toto
Structure:PT. Tiara Handalan Larasadi
Principal:Martinus Andika, Ricky Cahyadi
Project Designer:Juan Lysander, Surya Perdana
City:Jakarta
Country:Indonesia
Text description provided by the architects. Situated as its next-door neighbor of the old house, this project started out as a landscape project as an extension of the old one and continued into building an entirely new house next door to elevate its old one. The old house has a classic style of architecture, that was crowded with masses and lack of greeneries. Instead of making duplication of the old house design, we explore the ideas of contrast to give the new house and its users a complete change of experience. The challenge that arises was to combine two houses in one lot into one harmonious unity. Ideas of fusing wood materials and the color white to be incorporated in the design were what became the main concept of the house. The newly built garden between the two houses added a facade area and new openings to the old house to improve air circulation and invites natural light. Some water features, such as a swimming pool and koi pond were added to create a tropics ambiance on top of the serene shading by the Brazilian fire tree.
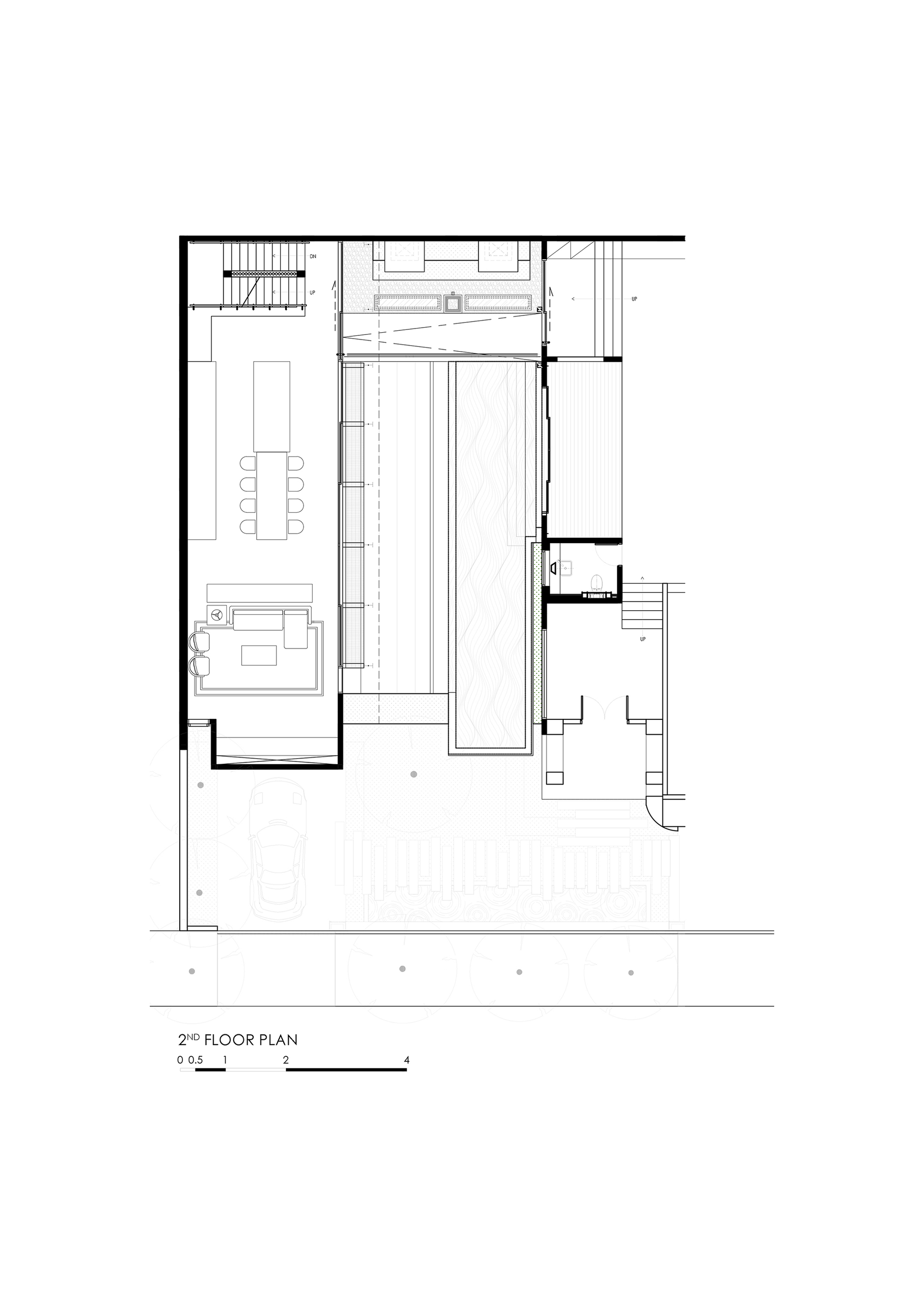
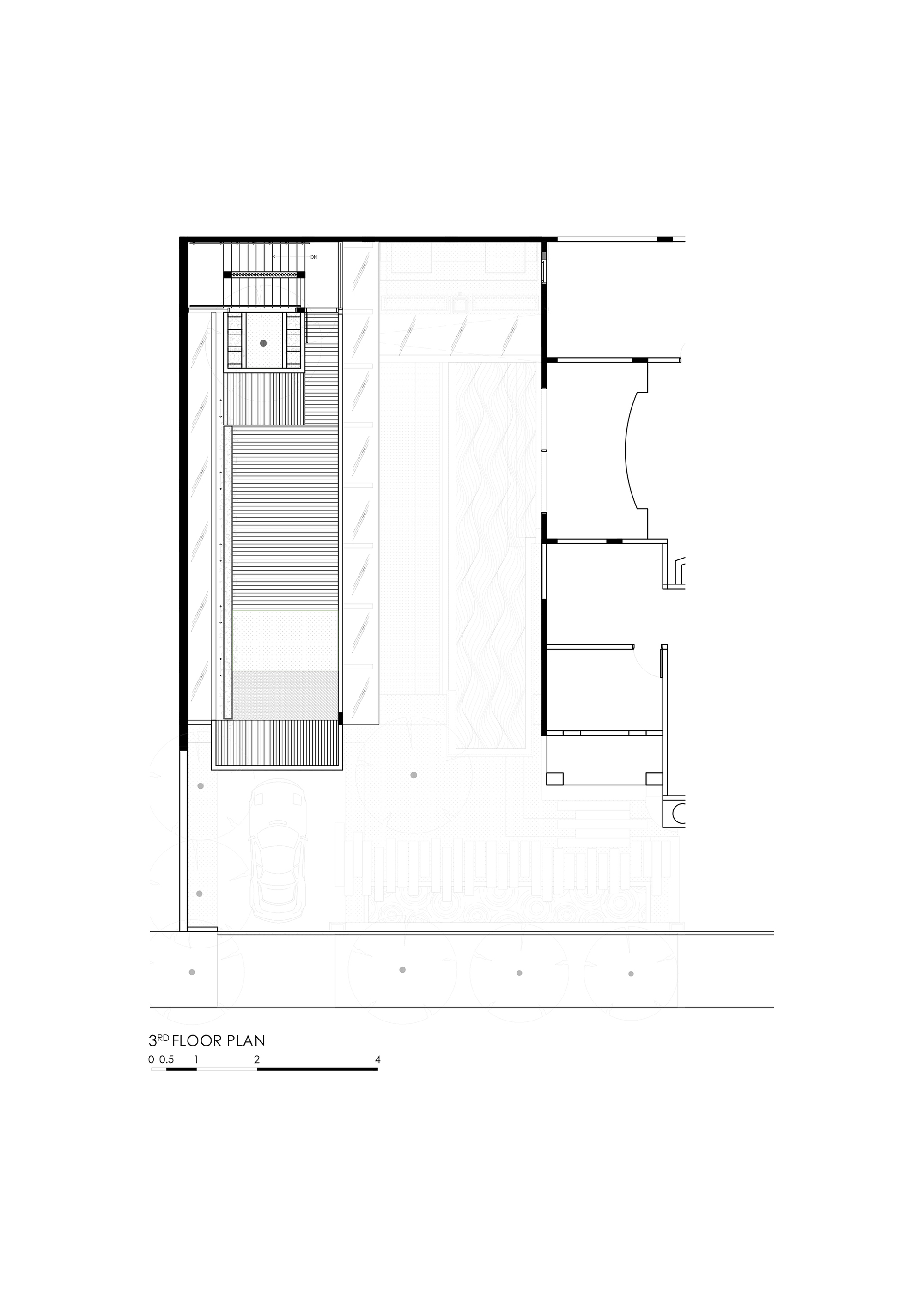
The new house facade was dominated by iron/wood elements that were locally sourced. On the front facade, the new house which was dominated by iron/wood was facing the classic all-old white house, creating a visual story of old and new, classic, and modern. Connected using the ramps located on the second floor, as if saying this was the bridge toward the new house. The flow of circulation of both houses, through the garden and the swimming pool, became a distinct experience itself while crossed. The main function of the new house, located on the second floor, was communal areas, living, and dining rooms. The structural column was arranged to be outside of the house, to achieve wider visual intention with 15 meters long uninterrupted glass partition. The column itself was wrapped with wood details, to create a seamless merging with the garden outside. On the first floor, located some private functions, such as bedrooms, a gym, and a service area that is hidden underneath the connecting bridge. The entrance from the old to the new house had the same concept and was brought by a water feature and steppingstone in the koi pond as a welcome scene.
Some contrast was also applied in the interior design, using light and dark between Carrara marble, dark wood lattice on the ceiling, and natural stone walls to balance one another. Glass skylight also featured in the new house, highlighting the stone cladding walls with more natural sunlight. The end result, this new house became a new harmonious extension to the owners, without completely ignoring their old and previous house.
Project gallery
客服
消息
收藏
下载
最近























