查看完整案例

收藏

下载

翻译
Architects:Wright Inspires
Area:3734ft²
Year:2021
Photographs:Yash R Jain
Manufacturers:ACC Zuari,Asian Paints,Hettich,Jaquar,Kamadenu,Ledlum Lighting Solutions LLP,Lingel Windows
Lead Architect:Prathima Seethur
Design Team:Prathima Seethur, Sai Sabarish, Charishma
Contractor:LV Srinivas
Electrical:Giridhar
Interior:Suresh and team
Carpenter:Murugan and team
Fabrication:Manjunath
Painting:Surendra Kumar
Structural Consultant:B L Manjunath
Flooring:Manoj
City:Bengaluru
Country:India
Location - Located in a serene, residential locality in Bengaluru, this 2400 sqft linear plot has its shorter side facing a quiet park to the west and other residences abutting the rest of the three sides.
Concept - The home is named “SHIVA STUTHI” which allegorically references the concept of free-flowing and peaceful spaces. The plan was to bring in a spatial volume while creating a cozy overtone within the confines of the home, thereby exuding a calming energy and creating an emotional connection with the user.
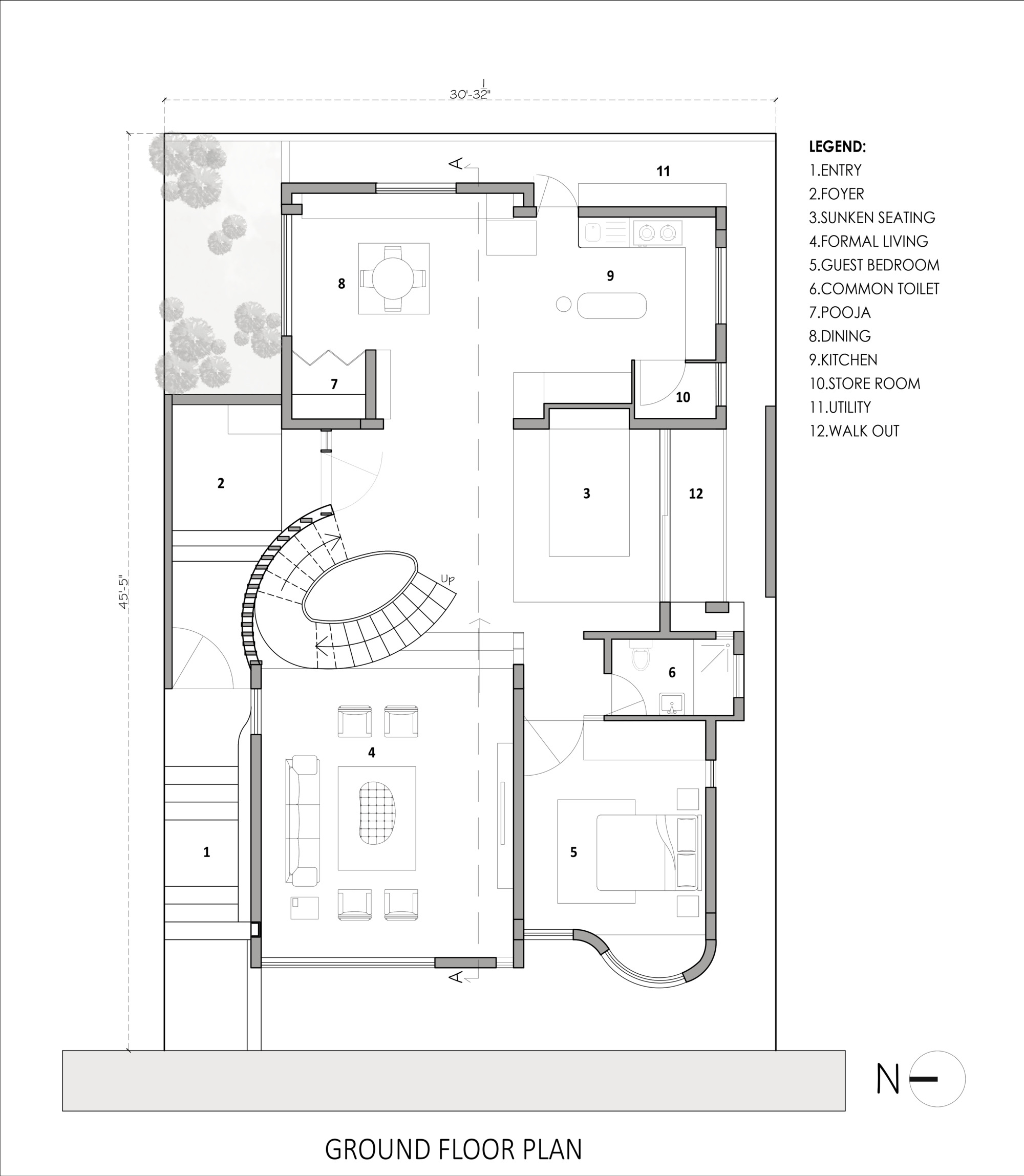
Design - The entire structure is elevated by five feet from the approach level, with a linear walkaway leading one into the home. A multi-activity space is quietly tucked into the basement, accompanied by a powder room. One is greeted by a garden at the entrance, followed by a foyer that connects to a spacious room, and a unique sunken seating area meant for chit-chatting, a modern take on a traditional veranda, featured in ancestral homes of the region. The use of fastidiously angled windows allows ample natural ventilation to ensure that it requires no external cooling throughout the year. In a tight urban plot, as a designer, one seeks heightened ceilings and skylights rather than large windows facing neighbors to create volume in spaces while maintaining privacy. The common areas of the house unfold into the living, dining, and kitchen which are visually interconnected while being functionally independent. The parents’ room towards the front extends into a mellow nook seating space.
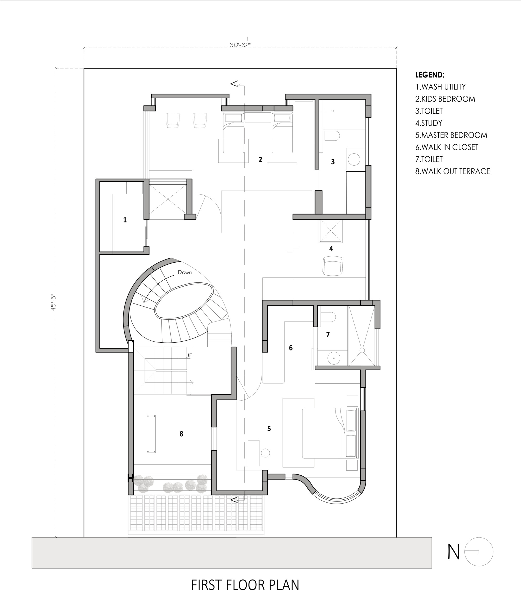
A suave curvilinear staircase runs along all the levels and is complemented by a colossal skylight that adds life to the home, depicting myriad patterns through the day and the year. On the first floor, the staircase leads to a study space and then branches out to the master room, the daughters’ bedroom, and an outdoor swing patio. Through a traditional window in the master bedroom, one can overlook the patio that features a quaint garden and a swing. The first floor boasts a waved filler-slab roof with eye-shaped skylights that extend to a fluttered pergola roof over the patio. The home also incorporates multiple green pockets across levels and its use of natural elements for light and ventilation significantly lowers its energy requirements. The most striking element is the bent glass façade that allows one to look out of the home while disallowing passers-by to look into the home.
Material - The house is wholly built using wire-cut bricks employing a distinctive method of construction. The exposed insulated walls provide adequate thermal comfort, making the home responsive to its surroundings. Novel concrete elements are added in the form of overhangs and weather sheds to complement the design. The flooring is majorly natural Kota stone, the in-house-designed wooden furniture accentuates the natural design palette employed throughout the home. To minimize the heat gain, the roof slabs are doubly insulated using eco-friendly methods like bricks and country tile fillers. Shiva Stuthi is a culturally-rooted, emotionally-appealing, aesthetically-pleasing contemporary eco-responsive home designed by team Wright Inspires.
Project gallery
客服
消息
收藏
下载
最近































