查看完整案例

收藏

下载

翻译
Architects:Iannuzzi Studio
Area:6445ft²
Year:2021
Photographs:Rafael Gamo
Manufacturers:Arcadia Custom,Boen,Cembrit,Petersen Pac-Clad,SIPs of the South,Sub-Zero,Toto,VaproShield,Wolf
Interior Design:Elizabeth Fields Design
Civil Engineer:Nowak & Fraus Engineers
Structural Engineer:Robert Darvas Associates
Landscape Architect:Environmental Artists
Principal In Charge:David Iannuzzi
Design Staff:Salvatore Asaro, Maureen Doyle
Custom Millwork:Vogue Furniture, Perspectives Cabinetry
General Contractor :Thomas Sebold and Associates
City:Franklin
Country:United States
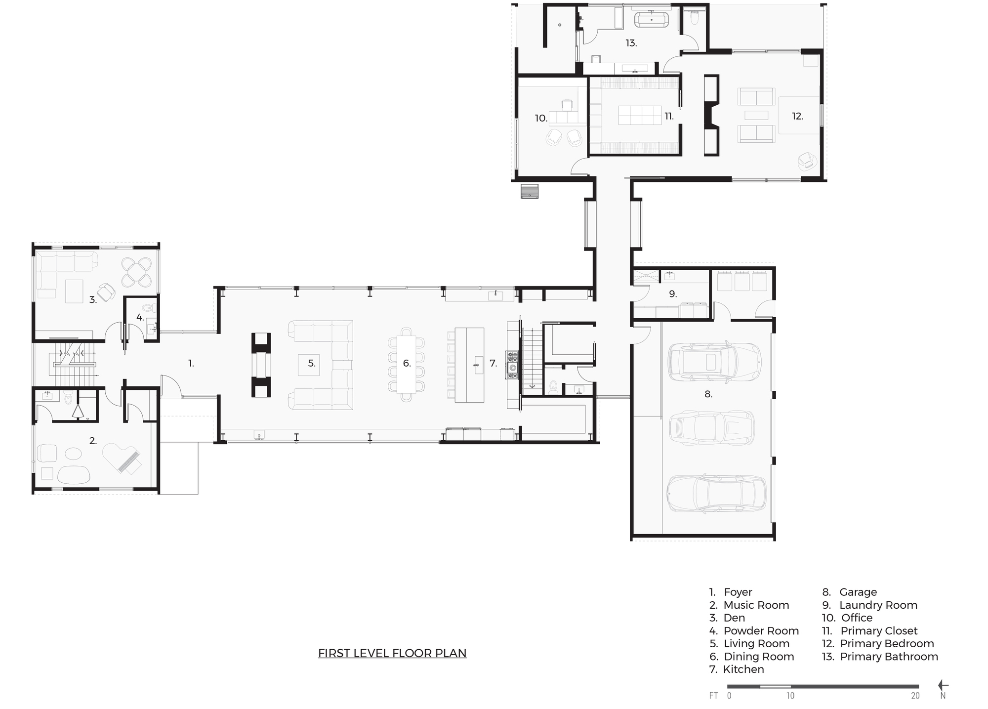
Text description provided by the architects. Briarcliff is set on a rural 3.5 acres in historic Franklin, Michigan. A house in two acts, it balances an elegant form and facade with a dramatic, playful interior—fitting for a private, close-knit family passionate about music and theater. The home’s design was inspired by the classic form of rural Michigan farmsteads—collections of gabled-roof structures built over generations. These familiar forms connect the home to its historic context but are articulated with modern building techniques and materials and innovative detailing.
The home’s functions are separated into four distinct pavilions, creating clear separations between private and public zones. The programs of the four pavilions are 1) primary bedroom suite; 2) living and entertaining; 3) private family area, and 4) garage. The longest pavilion (Living and Entertaining) runs side-to-side across the property in an uninterrupted volume that features exposed steel bents, expansive glass towards the rear wetlands, and a wall of custom millwork creating privacy from the front yard. The pavilion is bookended with striking complementary forms that house, on one end, the hearth, clad in stained cedar and blued steel, and opposite it, the kitchen, featuring stainless steel counters and panels of emerald green urethane and stained walnut. Eco-friendly Structural Insulated Panels form the roof, allowing 12-foot spans between the steel bents without the need for rafters or a ridge beam.
On the exterior, clear vertical-grain cedar planks clad the gable ends of each pavilion, accentuating their height and lightness. Adjacent to the cedar planks, the low, broad facades are clad in high-density cement fiber panels to ground the building and accentuate the length of these elevations. The cedar planks meet the cement fiber panels—both materials serve as open-joint, ventilated rainscreens—at a uniquely detailed “eyebrow” that creates a delicate shadow line over the monumental sweep of the gable ends. The unfinished cedar planks will age with each passing season as the building melds into the landscape. The flat roofs over the connecting hallways are covered in native grasses. The net effect is a high-performance, low-maintenance structure.
The home is nestled into the topography behind knolls that have been “sliced” with Corten steel retaining walls. From the perimeter of the site, the house seems tucked behind rolling hills, while a submerged motor court and Corten-walled walkways face the house. The combined effect is to aid privacy while revealing the clients’ whimsy and playfulness as you near the home.
The layout of clustered pavilions creates a sense of the building unfolding as it is experienced. The siting was minimally disruptive to trees, and in particular, creates a feature of a hundred-year-old American Elm and Climbing Hydrangea. The home's zones were carefully positioned with respect to environmental factors such as prevailing winds, seasonal sun angles, and balancing privacy and view. Windows frame views of the beautiful natural setting and other components of the home itself. In this way, the outside is constantly invited into the home, for an ongoing conversation between the modern exterior, the warm interior, and the natural surroundings.
Project gallery
客服
消息
收藏
下载
最近

























































