查看完整案例

收藏

下载

翻译
Architects:Mork-Ulnes Architects
Area:4000ft²
Year:2021
Photographs:Bruce Damonte
Manufacturers:Duravit,Miele,ASN Natural Stone,Antonio Lupi,B&L Glass,Caesarstone,Curtis & Sons Door,Deltana,Doug Mockett & Company,Graff,Mueller Nicholls,Nameeks,Omnia Industries,Partners Contracting,Premier Bath and Kitchen,Quantum Windows & Doors,SIKA waterproofing,Subzero,Windows & Doors,Wolf
Landscape Architects:Surfacedesign, Roderick Wyllie, Michal Kapitulnik
Structural Engineers:ZFA Structural Engineers, Kevin Zucco, Drew Fagent
Interior Design:The Office of Charles De Lisle.
Geotechinal Engineer:RGH Consultants, Jared Pratt
Civil Engineer:Adobe Associates Inc., Tim Schram
Lighting Designer:Tucci Lighting
Septic Engineering:Adobe Associates Inc., Greg Schram
Short Film:Juan Benavides
Site Size:18.43 acres (75,000 sqm)
Building Footprint:3,680 sqf (340 sqm)
Total Conditioned Area:4,065 sqf (380 sqm)
General Contractor :Nordby Signature Homes
Country:United States
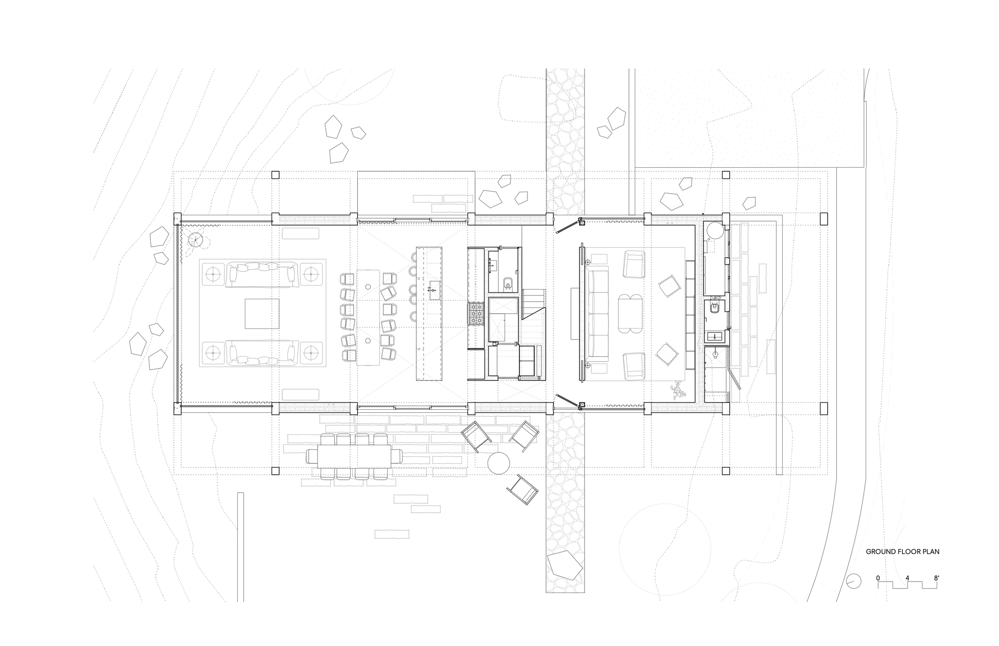
Text description provided by the architects. A concrete framework establishes the structure and rhythm of Frame House, a residence atop a hill in the Sonoma countryside. Rooted on a plateau above a forested canyon and vineyards, this structural grid maximizes the connection between the inside and out, allowing for natural light and direct access to the exterior from almost every room in the house. The loggia, which wraps three sides of the house’s perimeter, shades the living spaces below and provides access to expansive views from the second-level decks.
The materials of the house are organic and rustic in their appearance and tactility while providing resilience against the threat of the wildfires which have become prevalent in the Sonoma valley and damaged the previous residence on the site. To protect the new home, concrete shear walls are clad in a sacrificial layer of greying wood siding between the columns, which also organizes the interior spaces. This rigorous concrete framework creates a perch from which to take in the vistas of the property and beyond.
In contrast to the exterior of the house, clad in fire-proof armor, the warm interiors are lined in Douglas Fir. The house has an extroverted relationship to the surrounding landscape, connecting the interior in almost every room to the California climate. On the inside, the home is organized around a double-height space over the kitchen that connects the two levels and is punctuated by a floating catwalk leading to the two-bedroom wings upstairs.
The program of the house contains 4 bedrooms, 4.5 baths, a media room, and a great room in 4,000 square feet, with interior furnishings curated by The Office of Charles de Lisle. The 18-acre property includes a 3 bedroom, 3 bath all concrete guesthouse also designed by Mork-Ulnes Architects and with an interior by Charles de Lisle. The garden, vegetable beds, and pool were designed by Surface Design.
Project gallery
客服
消息
收藏
下载
最近



























