查看完整案例

收藏

下载

翻译
Architects:William / Kaven Architecture
Area:4607ft²
Year:2020
Photographs:Jeremy Bittermann
City:Portland
Country:United States
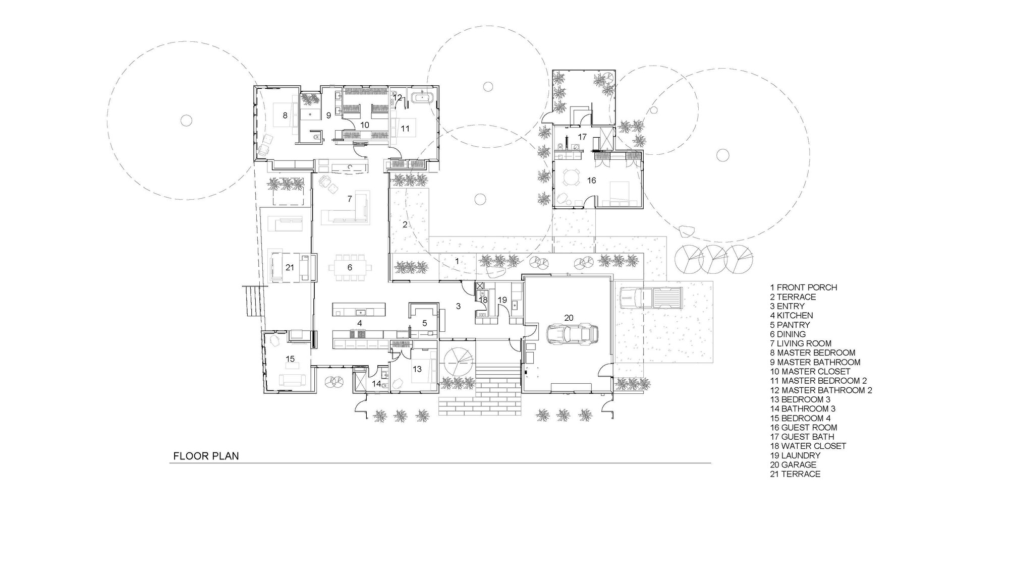
Text description provided by the architects. The Heartwood Residence sits on the east bank of the Willamette River in Portland, Oregon. Offering a sweeping panorama of the river and its wildlife, the home overlooks boat docks, freight barges, and an early 20th-century railroad bridge, recalling the city’s industrial roots.
Inspired by the architects’ New Mexico origins, the main house and guest house form a one-story compound organized around a central courtyard, where a mature maple tree was preserved as the centerpiece.
The generously glazed wall of the main house offers a direct sightline through the living area to the river. The home’s understated but sophisticated material palette includes rift-sawn white oak cabinetry, Corian countertops, exposed aggregate concrete floors, built-in fireplaces, chevron-patterned oak floors, and plaster walls.
With an exterior constructed of cedar, aluminum, and board-formed concrete, Heartwood is a modern addition to the neighborhood, which consists primarily of the 60s- and 70s-era ranch-style homes. An outdoor living area organized around a large wood-burning fireplace features a backdrop that includes the Lake Oswego River Bridge and one of the city’s premier riverfront parks.
Project gallery
客服
消息
收藏
下载
最近

























