查看完整案例

收藏

下载

翻译
Architects:Anastasia Arquitetos
Area:1230m²
Year:2022
Photographs:Jomar Bragança
Manufacturers:Aludesign,Bellar,L'Idea,Mharmaros,Patrik Cizilio,São Romão / prodomo,Tapetart,artstar movelaria,iluminar,regina Barbi
Lead Architect:Tomás Anastasia
Project Team:Sarita Soares
Interior Decoration:Bárbara Rodrigues
Woodwork:Amanda Carneiro
Construction:Evandro Lara- Gehaus
Structural Analysis:Túlio Antonini - Selco Projetos
Landscape Design:Luis Carlos Orsini - Yapo paisagismo
Lighting Design:Raquel Barros - Iluminar
Electrical And Hydraulic Installations:MCE Engenharia
Pool:Erika Couto - Bom Calor
City:Lagoa Santa
Country:Brazil
Text description provided by the architects. The IC Residence is located in the city of Lagoa Santa, Minas Gerais. The land, measuring 5,000 m², is a relatively gentle slope, where the street-facing facade faces east. Solar orientation was a determining factor for the implantation of the house, located in a very hot region, where sun protection is essential.
As it is a weekend residence, leisure is a priority, special attention was given to the configuration of the outdoor spaces, and the way in which the architecture gives scale to these spaces. Although the plot is of considerable size, there is little residual space, and most of the plot is usable. In this aspect, the interaction with the landscape project, by Luis Carlos Orsini, was fundamental.
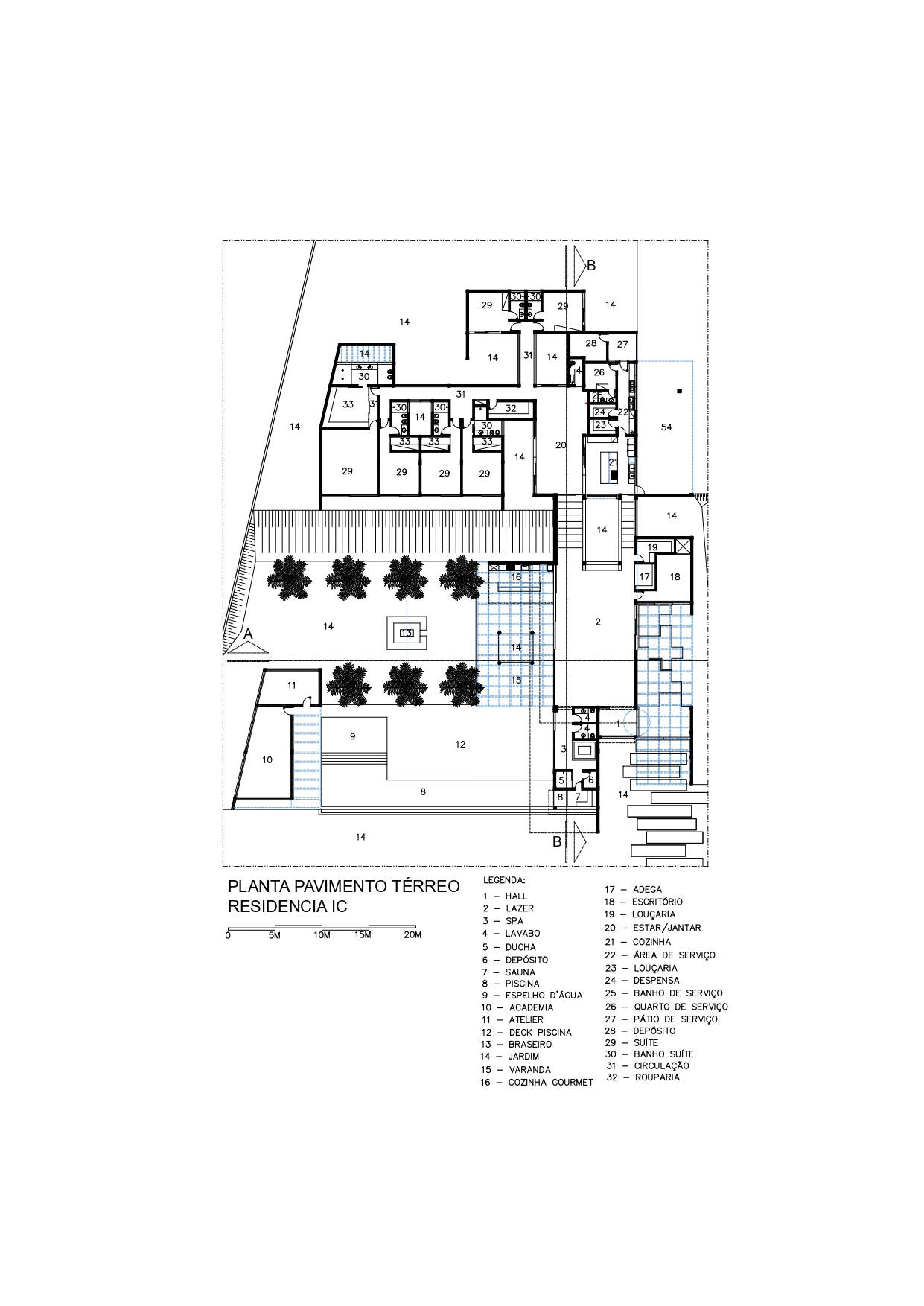
The 1-floor plan of the project is basically an L, where the intimate part, facing east, would be one leg, and the social part, facing south, more shaded, would be the other. Solutions for zenith lighting and internal gardens were adopted, to increase internal lighting without heating the environment. In the intimate area, there are five suites, which are connected to the rest of the house through an intimate living area and an internal garden. In the social area, a living pavilion connects to a semi-covered pergola and a balcony, with an outdoor kitchen. Next to this balcony, spa, changing rooms, and a sauna. The complex is completed by an external pavilion with an atelier and gym.
The house's proportions, predominantly horizontal, mimic landscaping, which is the owners' passion. The structure is reinforced concrete, with metallic pergolas defining the areas with shadows. Natural coatings, such as wood, stone, and concrete, were primarily used to create this closer relationship with the landscaping. Large spans were created, reducing the number of pillars, to increase the feeling of integration with the outside.
The project is therefore an exercise in implementing a residence with a relatively extensive program, harmoniously and delicately integrated into the landscaping and landscape - these are the true protagonists.
Project gallery
客服
消息
收藏
下载
最近























