查看完整案例

收藏

下载

翻译
Architects:Ji Architects
Area:578m²
Year:2022
Photographs:Hongyue Wang
Lead Architect:Wenhui Lu
Construction:Tengchong Zhengyang Decoration
Design Team:Wenhui Lu, Jieran Li
City:Tengchong
Country:China
Text description provided by the architects. Located on a mountainside with sunrise vistas, the owner picked the perfect idyllic location to build a courtyard homestay for his family and friends. The project is situated in a village in Tengchong, Yunnan province, and overlooks the famous ancient town of Heshun across a paddy field. The site has the advantage of a wide outlook and quiet environment and enjoys a pleasant climate year-round. At the outset, we visited nearby villages with the owner, studied the layout of traditional-style dwellings and local construction materials, looking for construction teams, and discussed feasible construction techniques. Even with a lot of preparatory work, we still faced many difficulties at the later stage. After the conceptual design was completed, the site was completely overturned due to force majeure, and the structural system had to be replaced after the construction drawings had been issued and regulations on the ancient town’s style and features became more stringent. We and the owner made frequent trips between Beijing and Tengchong, treating any difficulties like leveling up to fight monsters in a computer game. But we persevered and made it in the end. The owner named the project Yard 3721, which translates to mean that the house would be built no matter what.
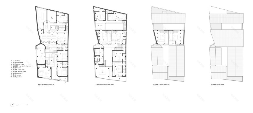
Site. The site is situated on a mountainside facing southeast, with a height difference of 1.5 meters, It is adjacent to a fir forest and a neighbor's house on both sides. The site is deep and narrow with an irregular shape. It has breathtaking views over a paddy field. The owner wanted to create as many comfortable guest rooms, public spaces and private areas as possible in a limited site area of more than 400 square meters and 8.8 meters in height. As the project is located in Heshun Ancient Town, it was restricted by the protection requirements of the town, so construction had to be carried out according to the principle of retaining the basic appearance of the house, with a gray tile sloped roof, and white or gray walls.
Strategy. In order to get as much of a view of the ancient town as possible, we treated the sloped base as two terraces with different heights. The landscape platforms with different heights are connected by staggered steps from south to north. We treated the excessively long and deep space base as two courtyards, the front yard is guestrooms, and the back yard is a more private area for the owner and his family. The dining room and the public space are arranged between the front and rear courtyards, and can be fully opened to the two courtyards. Glass doors ensure a sight connection between the front and rear courtyards. Taking advantage of the height of the sloping roof, mezzanines are designed as bedroom spaces. As the rooms are situated on a raised platform, guests can see the ancient town through the lowered tile roof while sitting in bed.
Layout. The usual practice of local dwellings is a U-shaped or L-shaped veranda layout. The rooms on the first floor face the inner courtyard, and the rooms on the second floor are connected in series by a semi-outdoor corridor facing the courtyard. This layout creates simple and direct traffic flows. The disadvantage is that the windows and doors of rooms on the second floor all face the public veranda, resulting in poor privacy, no view of the landscape, and a lack of spatial interest. The challenge of this project was how to create a non-model, experience-rich homestay space through layout organization; trying to create a village feel in a limited area. We decided to decompose the building volume into 6 small individual units, with stairs and a small platform inserted between the units. The path from each room to the public area is also different. Making full use of limited landscape views and site height difference, most rooms have a view of the ancient town. In addition, the two courtyards enclosed by the individual units also provide an inner landscape for the garden view rooms.
Experience. Because of Tengchong's pleasant climate, and tea drinking playing such an important part in the daily lives of local people, outdoor spaces with a view are even more welcome. We hope guests can have a fun experience in every corner of the villa and not just stay in their rooms, so we created as many outdoor public spaces as possible and maximized the use of all landscape resources. The scattered landscape platforms eliminate the 1.5-meter height difference inside the site, and the village-like space organization and loose volume layout create some vague and uncertain space corners. Stairs and platforms are flexibly distributed in these ventilated places, and some semi-outdoor spaces, under-eave areas, and landscape corridors provide guests with an interesting experience when walking in the courtyard, enabling guests to have an enjoyable stay no matter the weather conditions. At the same time, the vision line can also be changed with the different heights and positions, and guests can always find some corners that seemed unreachable at first glance, enlarging the space in their eyes and developing interest.
Interior. Since the building volume is derived from the overall operation of moving individual units, the size, shape, and view of each room are unique. Some rooms have balconies, and some open directly onto terraces, some have courtyard views, some can enjoy panoramic views of Heshun Ancient Town, and some have a loft space at the highest point. Taking into account the different view characteristics of each room, the size of the bay, and the relationship between the structure and space, we designed custom furniture along similar rules but with different details, so that each room offers a different living experience. We also gave each room a window balcony for guests to drink tea.
Materials. We used volcanic stone for outdoor paving, as it is one of the most popular building materials in Tengchong. We chose a rough surface block with a natural look and presented a simple and rich courtyard texture through small-sized bricks. We painted the wall with white straw mud, not only meeting the style requirements of the ancient town but also differentiating it from the gray color of the courtyard, as well as adding detail through the rough. For indoor materials, we continued along with the simple style of those used outdoors. The artistic white cement walls have a delicate luster under the light, and the gray terrazzo floor echoes the rough gray volcanic stone paving outside. With a limited budget, construction technology, and materials selection, we hope the homestay grows from the local area and has the beauty of rustic simplicity, while also adapting to the aesthetic tastes and needs of modern life.
Project gallery
客服
消息
收藏
下载
最近







































