查看完整案例

收藏

下载

翻译
Architects:INS Studio
Area:140m²
Year:2021
Photographs:Akasa Rana
Manufacturers:AMSTRONG,Dekkson Lock,Durawood,Krisbow,Mortar Utama,Philips,Toto
Lead Architect:Wisnu Wardhana
Drafting:Taufan Makmur
3 D Modeling:Rima Pratiwi
Contractor:Endy Sadiq
City:Makassar
Country:Indonesia
Text description provided by the architects. Design planning begins with understanding the lifestyle of the homeowner who is implementing a minimalist lifestyle. The owner of the house is a married couple with 2 toddlers. The spaces are formed according to their needs based on their minimalist lifestyle. Common spaces in Indonesian homes, such as living rooms, walk-in closets, maids’ rooms, pantries, laundry rooms, and prayer rooms were eliminated.
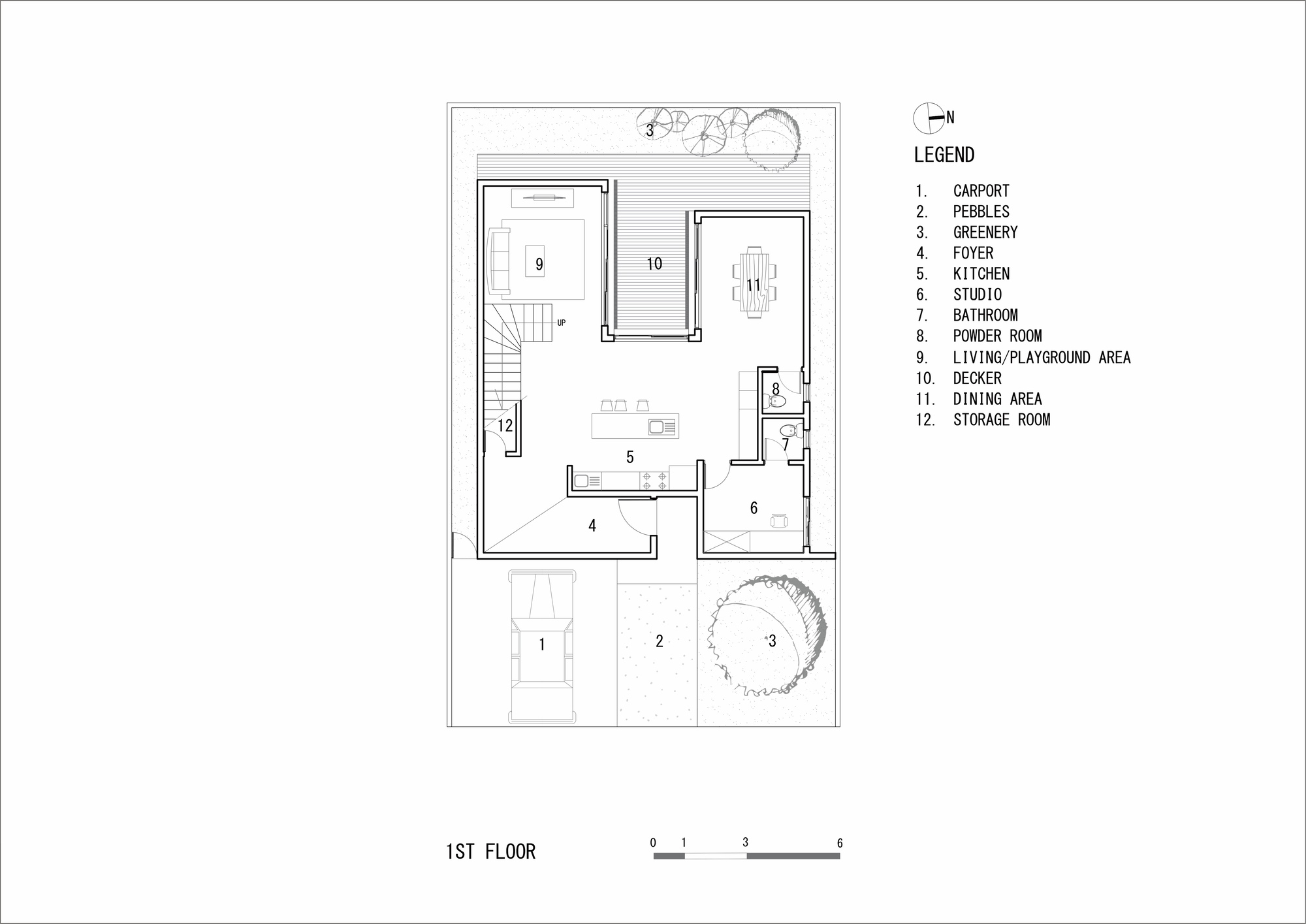
The 1st floor is prioritized as a family room. At the entrance, there is a corridor that also functions as a foyer before entering the open concept living area, kitchen, and dining area. The Architect tried to divide the living and dining area by turning the middle of the room into an inner courtyard as an outdoor playground for children as well as an area for outdoor plants. The main essence of the overall layout of the 1st floor is in the kitchen which is located right in the center of the room with a view that directly faces the inner courtyard, living and dining area. The ceiling in the kitchen area is also made open by forming a void up to make it look high and allow views from the 2nd floor down.
The connection between the rooms on the 1st floor is also arranged by placing sliding glass doors that can be fully opened to make the room look wider, and directly connected, intensifying the air and sunlight to enter the house. On the 2nd floor area, the placement of space is adjusted to the main needs of the homeowner. There is a master bedroom with a view overlooking the terrace and a kids' bedroom. There is also an area that is currently designated as a private fitness area since the owner of the house is a personal fitness trainer.
The form of the building is conceptualized in a simple way by combining concrete and steel plate materials on the building facade. The color combination of gray concrete that looks natural on the exterior is contrasted with the white color that looks clean on the interior. The touch of wooden furniture in the white-walled interior also complements the minimalist concept that the owner wants to embody not only from the lifestyle but also in the appearance of the entire house.
Project gallery
客服
消息
收藏
下载
最近

























