查看完整案例

收藏

下载

翻译
Architects:S Design Farm
Area:122m²
Year:2021
Photographs:Koichi Torimura
Lead Architects:Hiroki Watanabe, Takeshi Shikauchi
Construction:Enaka Construction
Structural Design And Panning:Tetsuya Tanaka
Site Supervisor:Eiichi Ikeda
Estimator:Kentaro Ito
Model Making:Masayuki Saito , ain
Carpentry:Takao Takei, Tsubasa Shirai
City:Ota City
Country:Japan
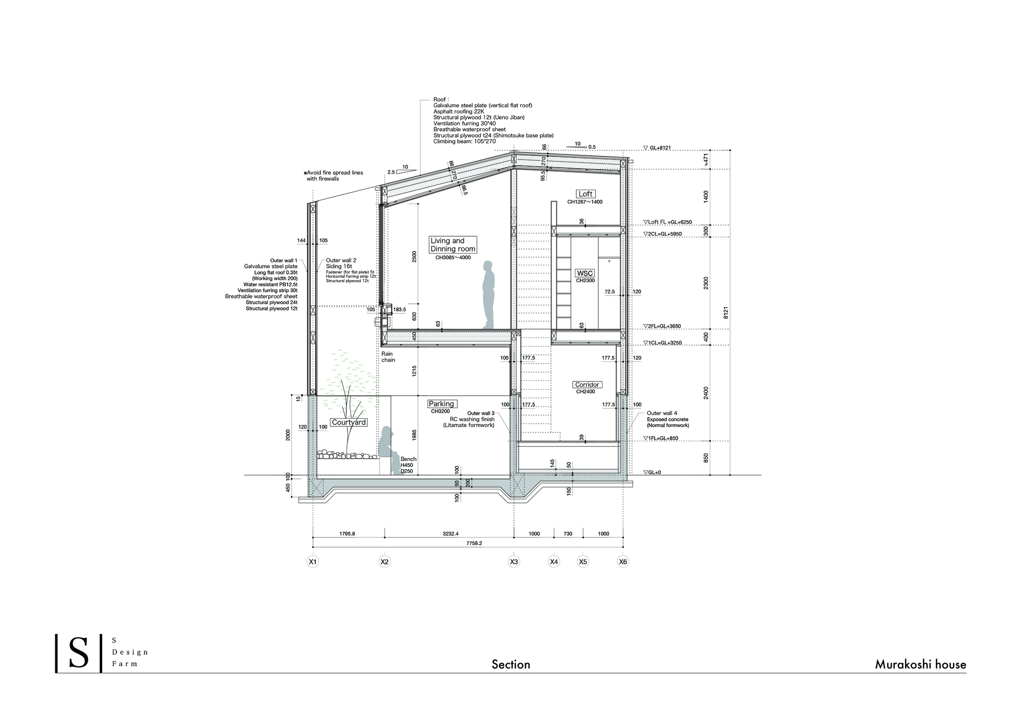
Text description provided by the architects. A two-story + loft wooden house for a couple who works in the city. The site is pentagon-shaped sitting on a corner surrounded by roads in three directions. The stream that flows nearby and the road that extends straight to the site allow the wind to blow through, but at the same time, many people and cars pass by, so we needed to think about privacy. In addition, it is an area with a risk of flooding, and a plan that also serves as flood control was required.
Therefore, we created a cross-sectional “void” that brings light and wind to the inside also securing the flow line for people and cars while parrying water, corresponding to elements such as "light, wind, people, cars and water” that surround the site.
In order to maximize the building coverage ratio, we designed a pentagonal plan configuration that matches the shape of the site and chose a cross-sectional configuration of the second floor + loft considering height restrictions, fire prevention regulations, and structural planning. In order to minimize the impact on the building in the event of flooding, we planned to use a high foundation for the first floor.
Due to the fact that it is an area crowded with houses and the owner preferred a monolithic exterior with fewer windows, we narrowed down the windows to the outer wall as much as possible and set up a large opening in the external atrium that leads to the courtyard on the first floor, giving consideration to privacy while ensuring adequate lighting and ventilation. The trapezoidal-shaped living-dining room has a visual effect that makes it feel spacious, and the floor plan that allows ease of getting around and the line of sight to the upper part of the external atrium is designed to give a sense of depth.
Considering the running cost and the load on the global environment, we designed a high insulation performance of Ua value 0.37, applying heat exchange type ductless ventilation. The airtightness with a small C value achieves a level that hardly requires heating even during the winter. It is hard to notice from pictures but by making it possible to control lighting, air conditioning, home appliances, etc. by voice or smartphone, we managed to eliminate switches and remote controls from the space considering aesthetics and convenience.
The parking space has become a rich and versatile space by giving "openness" and “height” where the wind blows through. In addition, the load on the building is reduced by allowing the flood water to pass through during a flood, creating a rational spatial configuration.
By providing architecture with preparations for natural disasters, which have been on the rise in recent years, we have ensured the safety of our clients. At the same time, we have created an “open garage /public” that will become a place where people can easily gather outside and a "closed living room/private" where clients can enjoy their leisure time surrounded by the wonderful interiors collected by them. We thought about how to create an urban house that offers a comfortable life while balancing two different aspects.
Project gallery
客服
消息
收藏
下载
最近





































