查看完整案例

收藏

下载

翻译
Architects:Stacey Farrell Architect
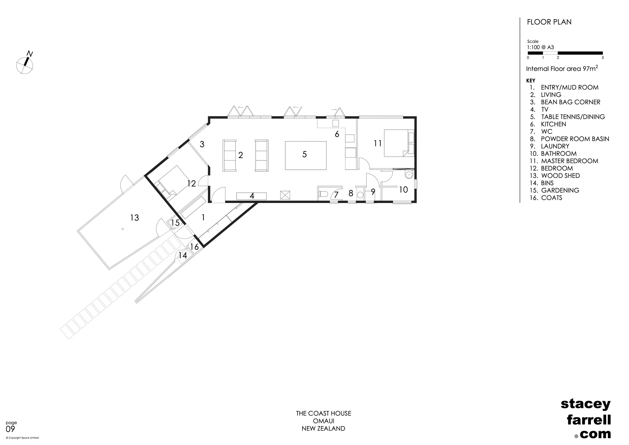
Area:97m²
Year:2021
Photographs:Ben Ruffell
Lead Architect:Stacey Farrell
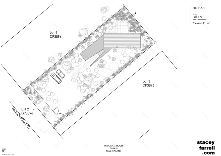
Site Area:911 m2
City:Omaui
Country:New Zealand
Text description provided by the architects. The brief was to make the most of a rural site with coastal views and an abundance of wildlife...on a very small budget. The design evolved over the years as the owners camped on the site to get to know it, climbing trees to views from future floor levels. The clients wanted a discrete hideaway retreat that felt cozy and luxurious. The home had to be low energy use and low maintenance with cladding to support water collection. The home had to be able to be locked and left and used by others when the owners weren’t there. The home should be low impact and relocatable should sea levels rise.
The Design Solution. This house was designed to hide discretely, hunker down into its harsh southerly environs. The landscape was given priority. Materials and colors are deliberately pared back so as not to compete or the landscape. You enter The Coast House through an inviting protected entry carved out of the grounded form clad in brown corrugate. This form provides a woodshed on one side and storage on the other. This entry is wired for native climbers to eventually climb over and hide it, making it appear to grow out of the ground.
From the compressed entry, the house opens outward and upward once inside, oriented for sun, views, and heat gain. The taller black-clad form opens to the coast, housing the living areas and another bedroom. You flow out of these spaces to a patio to bird-watch and take in the ocean views. Materials are raw and stripped back internally. Rather than overlining the SIPs wall panels, we have stained them and worked with their texture to add a richness and a lodge-like feel. Ply linings were used to reduce the palette of internal materials to 2, matching the 2 external cladding materials. The entry provides an airlock to retain heat and give space to shed coats and shoes and seek refuge inside. It also discretely has the ‘lock and leave’ cupboards for owners.
Materials. Passive House ideology and construction methods used SIPs, reducing reliance on heating the home. Plumbing and electrical fittings are not on building envelope walls to reduce heat loss. Constructed with an insulated timber floor on driven timber piles meant that the home can be moved if sea levels rise. This also reduced earthworks significantly to touching the earth lightly. Low impact landscape design left areas permeable, including the parking and driveway. Concrete pavers meant no need for ongoing deck staining and maintenance. Color-coated steel cladding requires minimal maintenance and is suitable for water collection.
Challenges Overcame. Initial pricing meant I had to shave a hefty amount off the project or not build. This meant a reconsideration of cladding, removal of a deck and rethinking another deck to become a patio, and reallocating the solar and battery backup power for later.
Project gallery
客服
消息
收藏
下载
最近















