查看完整案例

收藏

下载

翻译
Architects:MVA Mikelić Vreš Arhitekti
Area:499m²
Year:2020
Photographs:Bosnić+Dorotić,Jure Živković
Manufacturers:Aurubis,Flexteam,Foscarini,GIMA,Luceplan,Moooi,Mutina,Schüco,Varaschin,Velux
Lead Architects:Marin Mikelić, Tomislav Vreš
Structural Engineering:Konstrukta d.o.o.
MEP:TT inženjering d.o.o.
Electrical Engineering:ETS Farago d.o.o.
HVAC Engineering:TT inženjering d.o.o.
Landscape:Kreativni krajobrazi d.o.o.
Design Team:Marin Mikelić, Tomislav Vreš, Marija Barović
Collaborating Architects:Viktor Vdović, Mirta Rusan, Petra Matić
City:Zagreb
Country:Croatia
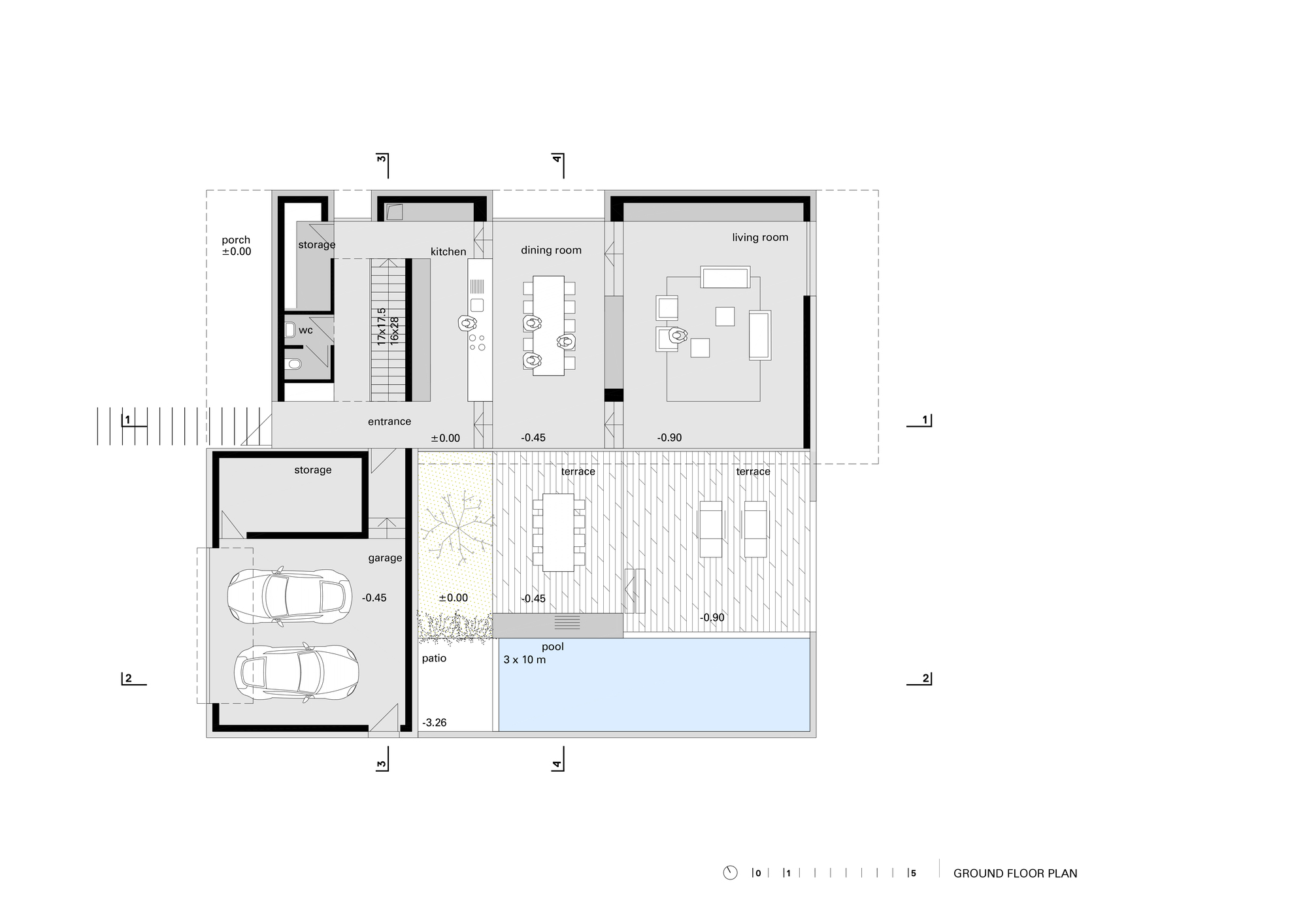
Text description provided by the architects. The house for a family of five, located in the attractive residential part of the city of Zagreb, is designed as a hybrid between a patio house and an archetypal volume.
The introverted ground floor encompasses living spaces, fluidly organized around a series of service blocks and oriented to their own microcosm of a south courtyard with a swimming pool. The entire level is ‘wrapped’ by a massive perimeter textured brick wall.
Following the natural decline of the terrain, the spaces are cascading, from the lowest - the entrance to the highest - the living room. Terraces in the courtyard follow the interior levels.
The copper volume of the first floor covers the entrance and extends far to the east capturing a view of the city.
Bedroom modules are linearly organized and accompanied by a 22m long wardrobe. Children’s rooms are mini lofts with a gallery for sleeping (or playing – depending on the user) accessible by zig-zag wardrobe stairs.
Along with the vertical communication and spatially connected to the entrance, a multipurpose space serves as a library, study, and children’s living room.
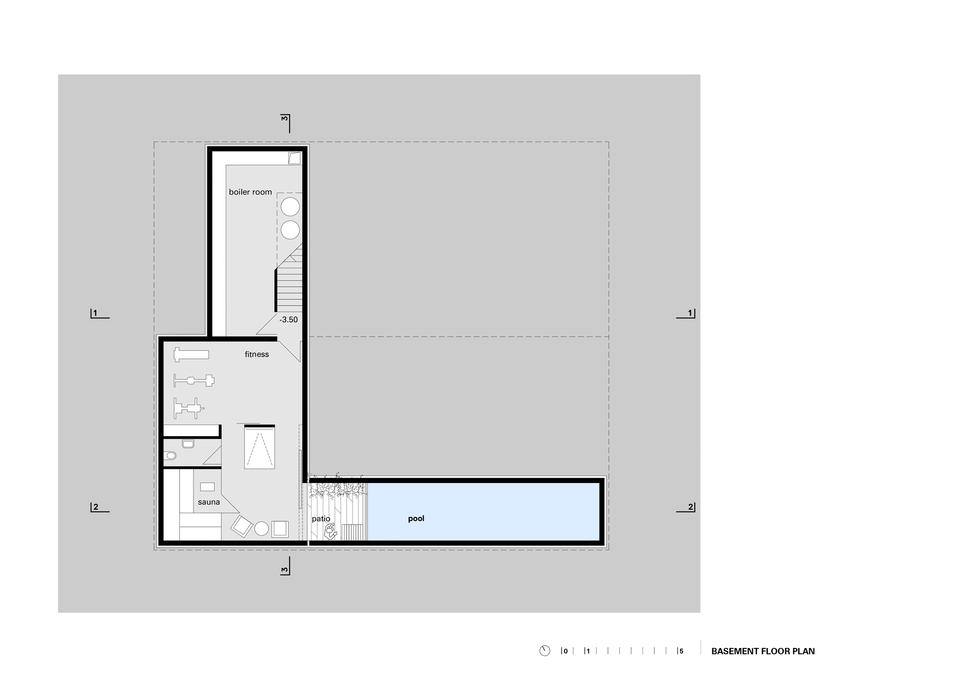
On the underground level, beside technical rooms, fitness and sauna areas are located and oriented to a small hollowed-out patio. Through the patio and the glazed wall of the pool, the sauna offers an underground view of the water in the pool and the sky.
Project gallery
客服
消息
收藏
下载
最近
































