查看完整案例

收藏

下载

翻译
Architects:Nori Architects
Area:88m²
Year:2022
Photographs:Jumpei Suzuki
Lead Architect:Norihisa Kawashima, Nori Architects
Lighting Advisor:CHIPS LLC.
Constructor:TOKORO
Design Team:Norihisa Kawashima, Takuro Kunitomo
Structure Engineer:Seiji Okawa
Textile Designer:Yuki Tsutsumi
Equipment Advisor:Kozo Takase
Country:Japan
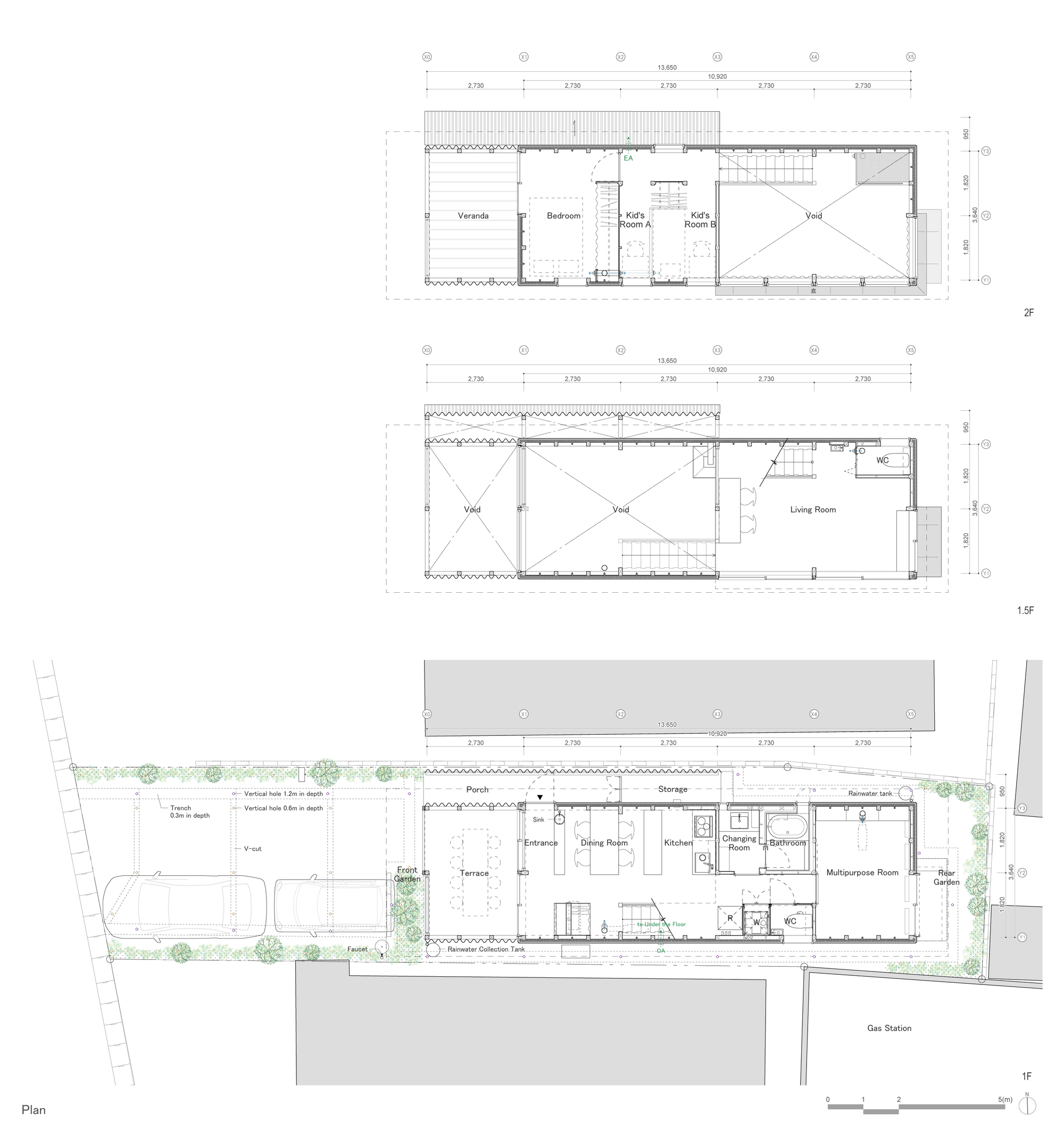
A New Prototype of Urban Housing - A house for a young couple and their two children in Toyota City, Aichi Prefecture. Located on a long and narrow site east to west, there is heavy traffic on the west side of the road, buildings closely adjacent on the north and south sides with a wide opening to the sky in the southeast on the second floor. The massing is a compact box with a frontage of 2 ken(3.6m) x depth of 7.5 ken(13.6m) , 15 tsubo(50m2) x 2 floors = 30 tsubo(100m2) in total, with a height of approximately 6 m. The structure is divided into three levels. A large window on the southeast wall of the living room connects to the urban void.
The covered terrace along the street side of the dining room and kitchen has a mesh front and translucent walls on the sides to allow full access to the changing light and wind while maintaining a moderate sense of distance from the city. To ensure year-round comfort and energy efficiency, the exterior skin and mechanical equipment were designed for comfort and energy efficiency. Within a limited budget, we devised ways to ensure high performance with a combination of thoroughly reduced materials and low-priced equipment.
We created a warm wood-filled space by eliminating interior finishes by using exterior insulation and exposing the wood structure, base, piping, and wiring. This allows the residents to understand the structure of the building and to make repairs and modifications on their own. This is a proposal for a new prototype of urban housing in an age of global environmental crisis, by providing a delightful house open to the inside (family) and outside (city), full of light, wind, and natural materials, with less construction material and waste.
Realization of high earthquake resistance, comfortable thermal environment, and healthy soil environment at low cost. By placing load-bearing walls with structural plywood and steel braces at appropriate intervals at both ends of each floor in the short direction, we achieved high earthquake resistance performance (Grade 3) while eliminating deformation differences in the skip floor and suppressing deformation during wind pressure, as well as ensuring spatial flexibility and transparency. The height of the three stories was reduced to under 6 m. The roof was constructed with a reduced number of components, by utilizing 3.5" square timbers on top of the exterior insulation and a folded roof over baseboards and asphalt roofing.
This strategy helped simplify the roof framing and eliminated the need for rafters. By using exterior insulation, high-performance window sashes, and eaves, the building achieved high envelope performance, with a UA value of 0.49 (ZEH+ standard) and an ηAC value of 2.2 (above the energy conservation standard). A comfortable thermal environment was achieved at a low cost by devising ventilation routes and using fans and ducts to distribute warm/cold air from a single under-floor air conditioner to each zone. In addition, the entire site, including the soil, was improved by digging trenches and holes in the exterior, burying organic materials, and allowing water and air to move through the soil in a way that is possible even for amateur builders.
Project gallery
客服
消息
收藏
下载
最近
































