查看完整案例

收藏

下载

翻译
Architects:o2 Arquitectos
Area:228m²
Year:2020
Manufacturers:Dap Ducasse,Hunter Douglas,MK,Topwood
Lead Architect:Daniella Rufin
City:Las Condes
Country:Chile
Text description provided by the architects. The development of the project for this single-family home in the Golf de Las Condes neighborhood was a great challenge due to the difficult shape of the lot, with a front of just over 5 meters and an irregular L-shaped geometry that widened towards the rear. The location of the house had to be arranged making the most of the spaces, meeting the need for parking and trying to leave a more private garden area, separated from the access.
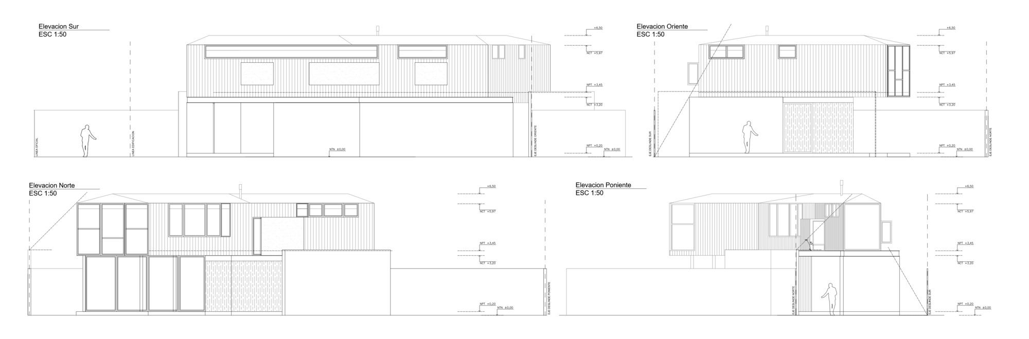
The house was placed as far to the front as possible, aligning the program to the geometry of the lot. The program consists of a first floor with common areas interconnected through sliding doors (kitchen, dining room and living room), developing a second floor in a narrow bay with rooms to the north and a corridor to the south, ending with a volume that turns following the shape of the lot, creating a break that houses the main bedroom area under which a covered terrace is configured.
For the design, special consideration was given to the integration of natural light, creating a light patio on the first floor that faces the access, and the use of several skylights and indirect light entrances, such as the volumes that were designed in the corridor that lead to the bedrooms (small boxes that protrude towards the south facade), created especially to generate spatiality and luminosity.
In terms of materiality, the idea was to create a rather industrial look with a certain warmth. Hence, the first floor was designated with exposed concrete walls with a polished and vitrified floor, heat-treated wooden ceilings that project to the terrace with large windows, all with the ability to slide open, allowing the complete connection of the spaces of the living room, dining room and terrace. The second floor was designed with external cladding for a ventilated facade of Hunter Douglas panels.
A narrow, long and raised pool was designed with the necessary height in all its contour to create a deck seat and thus configure the terrace space. Finally, the small space that remained at the back was finished with a long barbecues table on a stone floor area.
Project gallery
客服
消息
收藏
下载
最近























