查看完整案例

收藏

下载

翻译
Architects:Sanya Polescuk Architects
Area:177m²
Year:2022
Photographs:David Valinsky
Manufacturers:FAKRO,Hansgrohe,Kingspan Insulated Panels,Bette,Duravit,Allgood,Associated Lead Mills,Astro Lighting,Charles Collinge Limited,Dulux,Forbo,Granite Transformations,Grestec,Histoglass,John Lewis,Ketley Brick,London Solar,Nu-Heat,Nuprotec,OSB, +8Recycled British Slate,SNT,Sikkens,Smile Plastics,Stelrad,Velfac,Vent-Axia,Worcester Bosh-8
Structural Engineer:Ling Engineering
Quantity Surveyor:AJ Oaks & Partners
Acoustic Consultant:KP Acoustics
General Contractor:AmirIlan
Design Team:Sanya Polescuk, Alex Blundell, Martyna Felus
Building Control:Assent
EPC:British Saps
City:London
Country:United Kingdom
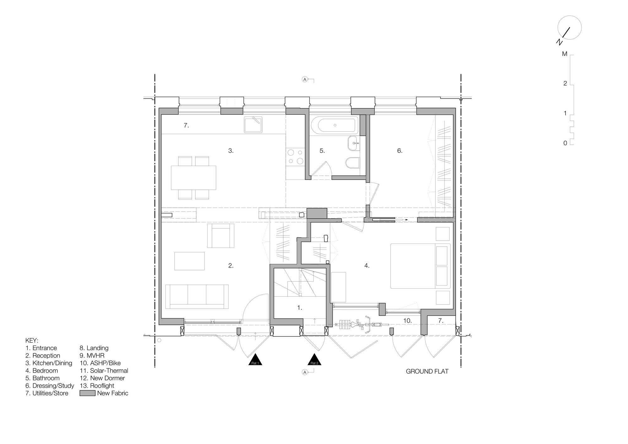
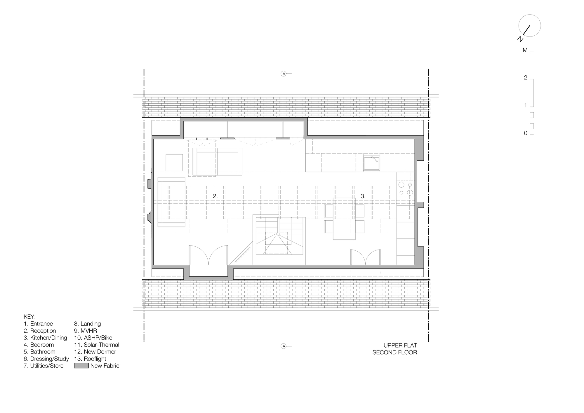
Text description provided by the architects. A new, low-carbon, multi-generational pair of flats has been inserted into a Victorian Mews house in North London. Just down the road from the architects’ studio with an apartment in multiple occupation above and 10 years on from the similar work done there, this project provided an opportunity for the practice to review its approach to reworking mews houses. There are now more reclaimed materials, more recycled content and more energy efficiency.
Originally Victorian stables with staff accommodation above, the mid-terrace mews building had been partially converted into a house in the 1980s. It included an un-insulated attic, an open garage-cum-store room on the ground floor and an extensive number of bathrooms throughout. The brief asked for an efficient, future-proofed, pair of self-contained homes with a break-through spot to inter-connect in the future. Above the 1-bed ground floor flat, the first occupants of the upside-down 4-bed maisonette are refugees fleeing conflict.
The building envelope is fully insulated and sealed with taped internal OSB and fitted with a whole-house MVHR system. The old brickwork is independently ventilated through the pointing weep holes. The open-plan boat-like cooking/living space on the top floor is roofed with reclaimed slates. On the roof, solar hot water panels are recessed into the southern pitch while a pair of heavily insulated, yet quietly modern dormers sit on the North-facing pitch. Though identical from the street, one dormer hides a full-height French door by the sitting area while the other, a smaller window with a herb garden by the kitchen. The openings are carefully calibrated to maximise light from the North and South.
Landfill and embodied carbon are reduced through salvaging, restoring and re-using many building elements found on site, as well as applying recycled materials and limiting the use of cement. Timber boarding discovered within plaster-boarded walls is installed as wall cladding around the old winder staircase leading to the loft; the less good floorboards are turned 90º as cladding for the low loft walls, the roof ties are exposed to sit alongside the reclaimed timberwork, the windows are rehung and re-fitted with extra-slim double glazing and new seals; the old stable doors are restored with newly-made authentic hinges cast from the original castings.
Behind these doors, new triple glazed windows and doors complete the efficient thermal envelope letting maximum daylight into the space within; instead of UFH cast into a screed, thin pre-grooved rigid panels float directly on the thick floor insulation; a very simple palette of materials includes terrazzo tiling with 40% recycled porcelain and recycled yoghurt pot boards as kitchen units and worktops; the Heat Pump-ready design. The increased thermal performance will allow for a transition from gas when public acceptance allows for use of heat pumps in conservation areas.
Project gallery
客服
消息
收藏
下载
最近


























