查看完整案例

收藏

下载

翻译
Architects:Afshin Khosravian and Associates
Area:1800m²
Year:2023
Photographs:Nimkat Studio
Manufacturers:AutoDesk,GSG ceramics,LG,Mamoli,Mazinoor,PACKMAN,Rak ceramics,Roshana,Trimble Navigation
Lead Architect:Afshin Khosravian
Landscape:Elgreen
Construction:Saman CISE
Design Team:Ghazaleh Davari, Mahsa Sedaghat Sharifi, Mahnaz Dolat Abadi, Sogol Firouz, Susan Sajadian, Fatemeh Karimi, Sabereh Nikoo, Omid Sayah
Graphic Design:Reza Mohtashami ,Zahra Bahra
General Contractor:Mohamadhoseyn Khodaverdi & associats
Site Manager:Hassan Amirfakhrian
Project Manager:Musa Zohour Omid
Supervisor:Vajihe Hosseyni Abrishami
Electrical Engineer:Farzad Mortezayi
Mechanical Engineer:Mr. Rezayi , Mr. Saadat
Program / Use / Building Function:Houses
City:Toroqbeh
Country:Iran
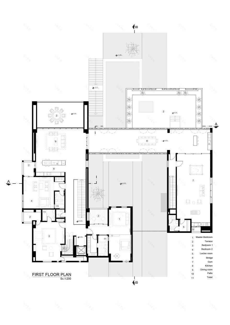
Text description provided by the architects. Hesar Villa is situated in one of the best-weather mountainous regions in Mashhad; one of the particular specifications of the site is its stretch from the top of the peak to the foot of the river with more than 20m altitude difference so that it enjoys a temperature difference for 4°C approximately. During the design process, the experience of transferring the central yard to a mountainous area was considered by the designers' team due to creating an introspective space and with the intended privacy of the operator as well.
The analysis of climatic and visual forces of the project created a diagonal cut in the direction of the favorable southeast wind of the city that puts two residential and recreational areas in its structure. A linear bridge that creates a good visual relation with a dominant view of the project on one hand and the central yard, on the other hand, connects these two. Various types of balconies and roof gardens are shaped with different styles, flavors, and degrees of enclosure in this building.
The dominant regional wind direction is from the valley upwards, and the said cut provides a scented breeze of fragrant plants to this yard and has a significant role in creating a calm area. The yard entrance door automatic system makes more privatization for the central yard of the project. This yard creates visual and physical relations between the interior and exterior surrounding spaces.
The exterior swimming pool of the project is located at the center of introspective and extrospective spaces with a dual specification, on the path of the local breeze, which has a significant role in decreasing the central yard temperature. Preserving the utmost green spaces and trees has been an important factor for the designer's team in piling up the project and the chosen facade materials (Esfahan silver stone) with its vertical lines make the project compatible with nature with its similarity with the tree trunk despite the large size.
Project gallery
客服
消息
收藏
下载
最近






















