查看完整案例

收藏

下载

翻译
Architects:F2A+Partners
Area:10217ft²
Year:2022
Photographs:City Syntax
Manufacturers:Mitsubishi Thailand,Porcelanosa Grupo,Shanghai Yaohua Pilkington,Supercrete,Turkish Marble Company
Lead Architects:Faisal Ahmed
Working Drawing:Ahsan Habib
Finishing Detail Drawing:Zubayer Ahmad Khan, Shah Noman Ansary
Program / Use / Building Function:Residential
City:Dhaka
Country:Bangladesh
Text description provided by the architects. Located at a corner plot in Bashundhara Residential Area, the “Kakoli Manor” was designed with the idea of implementing contemporary building techniques & features. With roads on two sides, the site creates an interesting opportunity to flip a typical suburban house condition. The consequences evolved an overall feeling of clarity and composure – a home that enhances the life of the growing family who resides within its walls. The house came up with an introverted form with a solid mass of concrete that stands still and bold from the outside. The vigorous play of light and volume is introduced only when one enters and walks through different spaces inside.
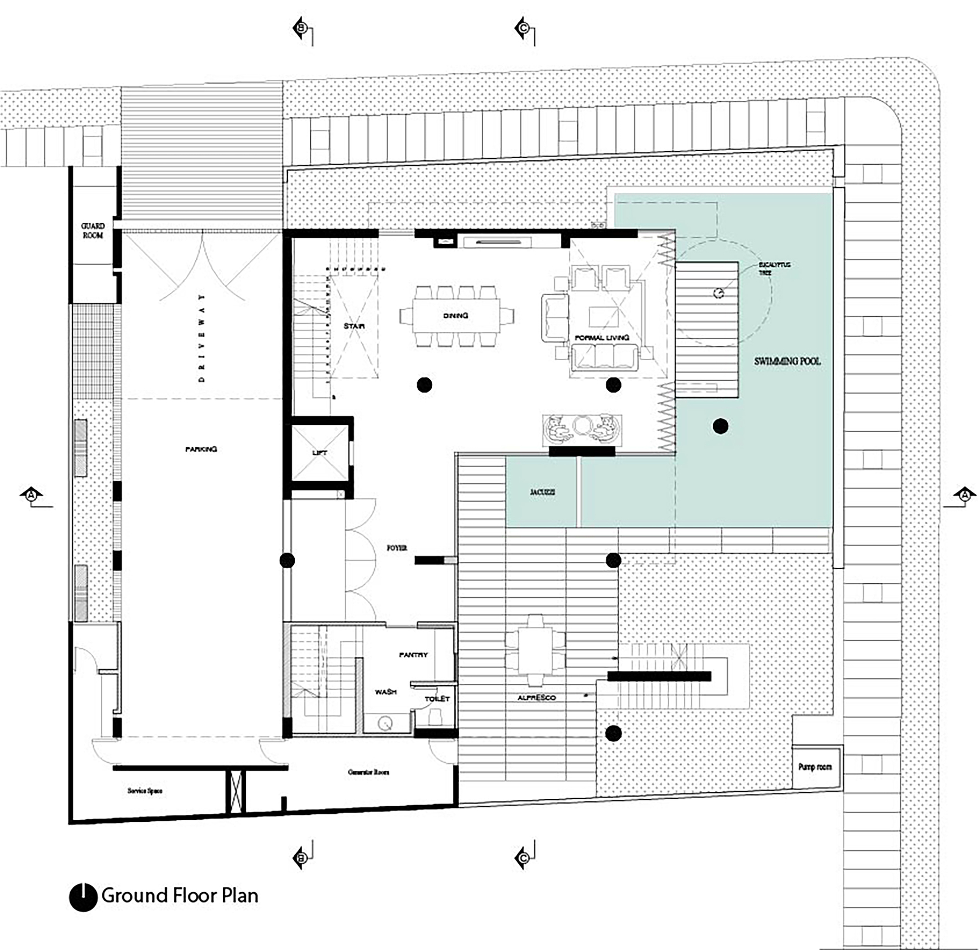
On the ground floor, there is parking for vehicles, a formal living area, dining, a pantry, and a patio area with a swimming pool. The first floor includes a family dining and a coffee bar area, two separate kitchens, a TV room, and a sufficiently big walk-in closet room essentially designed for the lady of the house this floor is where the residents spend most of their time. The second floor is a private zone consisting of two bedrooms for the children and one bedroom for the parents, each opening to a terrace. The third floor is dominated by open spaces; contains a gym, an indoor lounge, and elegantly furnished outdoor seating areas. The landscaping in the terraces and external areas is of predominantly tropical, low-maintenance species, creating a lush tropical feel inside the spaces.
As mentioned earlier, the three-storied residential building is entirely built with fair-face concrete and used in its natural state giving a timeless impact. Interestingly, stretching one part of the interior wall is engraved in a graphical motif that brings out the details and beauty of the concrete. Having a series of connected intimate spaces, continuous visual links through double-height spaces, passages, and multiple terraces, the outcome is an all-season escape space in the city with its qualified, airy, bright ambiance.
Project gallery
客服
消息
收藏
下载
最近
































