查看完整案例

收藏

下载

翻译
Architects:Ismail Solehudin Architecture
Area:420m²
Year:2023
Photographs:Mario Wibowo
Manufacturers:Boss,Kanmuri Roofing,Nippon Paint,Philips,Rucika
Main Contractor:Wani Build
Structural Engineering:PT DESAIN PUTRA PERSADA
Designer Team:Radhian Dwiadhyasa
Construction Manager:Ali Yazid Bustomi
Site Manager:Zainy Tamrin
Quantity Surveyor:Devina Agustin
General Contractor:Muhammad Ihsan Hadiyat
City:Jakarta
Country:Indonesia
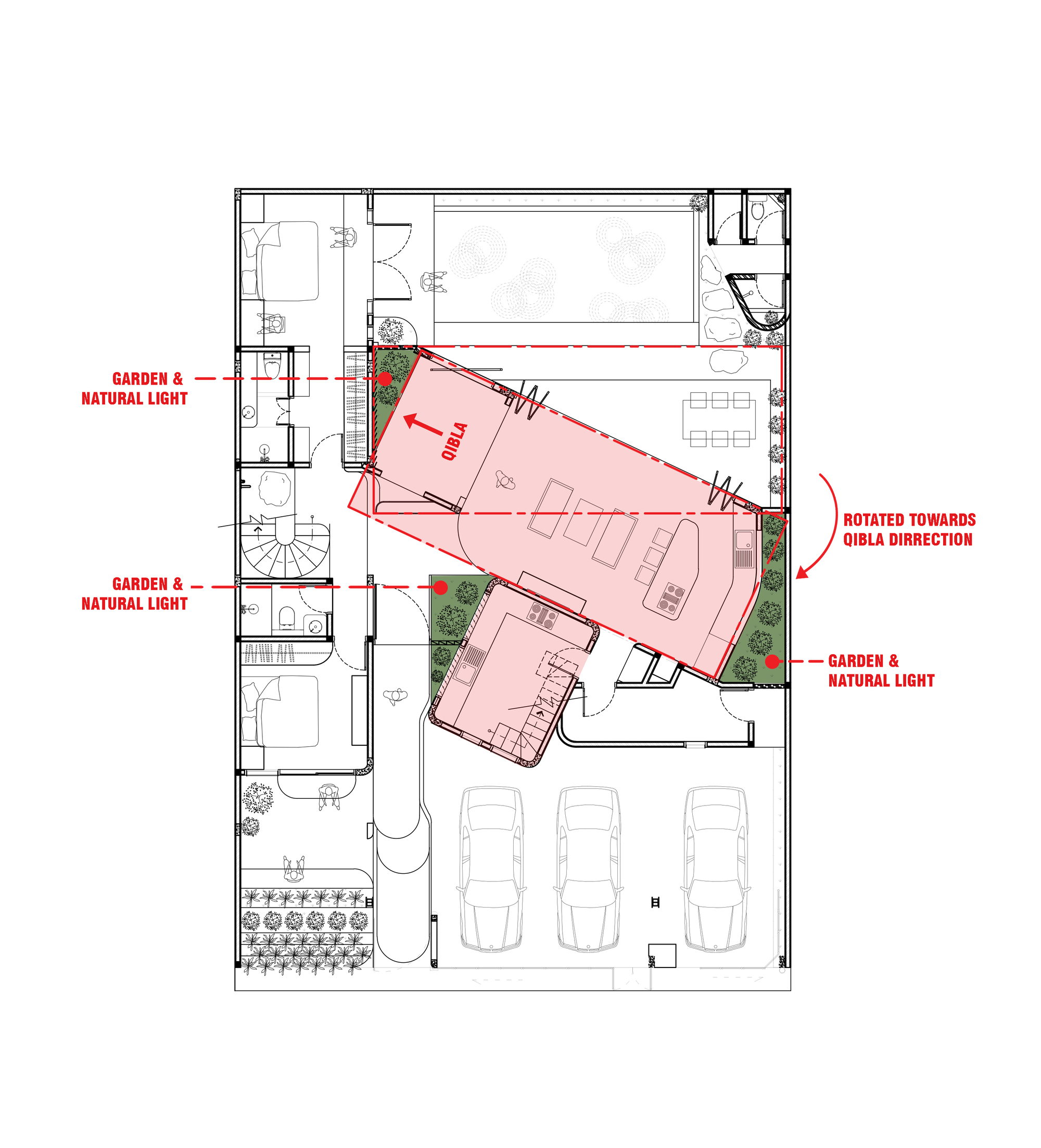
“I like your messy design” said the client when he first met us. Another point is the house can be used for congregational prayer with big families which can be up to dozens of members at one time or just religious recitations with neighbors. The feel of a natural villa with a joglo roof, and trying to apply Islamic values in everyday life. As the name suggests, distractions are literally things or actions that distract. This house has been distracted because of one action of rotating one of the rooms so that it can face towards the qiblah - a design action that is our solution to the needs of the residents, worship religious activities together with a big family that can reach a lot of people. As a result of our actions, the character of the space that is obtained as well as the new character of the building form, although the basic idea is from the roof of a traditional joglo house (a vernacular house roof originating from a region in Indonesia).
The character of the space obtained is a sense of spatial experience in the communal area, and spatial disorientation from the existing landforms, causing a messy impression. The communal area is side by side with the remnants of organic space formed due to the effects of the distraction narrative. The remnants of the organic space created functioned as green areas, dry gardens, sources of ventilation, and natural light that blend with the inside of the house, making this communal area look like a shaded outside space. At the same time, this area is also a passive design strategic system with breathable walls and skylights.
The character of the building form begins with the use of a joglo roof (a vernacular house roof originating from a region in Indonesia) which is the dream of the occupants, we apply and transform it according to the function of the space. The berunjung (the term soaring roof on the roof of a traditional joglo house) which has the proportion of towering volumes is multiplied and below it are harbourage rooms with mezzanines and also the service area at the front while the sloping roof is used to overshadow the terrace and carport as well as overhang the roof inside the house. The spirit of the novelty of this transformation is strengthened by the effect of distracted narration, the change in the orientation of most of the roofs which have been rotated towards the qiblah faced following the space below and giving an even more character recent after the transformation of the previous form.
At the same time as using the roof of the traditional joglo house the building appearance is dominated by the roof with clay tiles, we also chose the use of clay tile roofing material which is familiar to Indonesian society, especially the surrounding environment where is an old settlement and generally has a roof slanted with clay tile material. Our efforts for this building can still blend in with the environment but has its own character with the use of vernacular Indonesian roofs which are transformed to be more contemporary but still reminiscent of the original form. Other familiar materials used are exposed brick, exposed cement, natural stone, and wood on the exterior which is then continued into the interior of the house.
The function of the house for residents - This house was made to meet the need for congregation prayer with a big family that can congregate a lot of people at one time, in response to this issue we put a communal room (family room, dining area, kitchen with an open plan system) connected directly to the prayer room, so if needed, the prayer room can expand directly to the area of the communal space which is facing towards the qibla. In this house, there will be 7 permanent residents and occasionally dozens of people who are part of the big family who will often stay over at certain times, such as weekends and holidays or special days. With this not-too-large site, a mezzanine system is made for the rooms on the upper floors to accommodate these needs, so that the house doesn't take up too much site because it increases the volume of space in the vertical direction.
Another special thing that clients need is to strive for Islamic values that they want to apply in their daily lives. This includes: the direction of the mattress, at least the feet do not face the Qibla, a toilet that does not face or defends the Qibla, a cleaning system in the toilet area that is prepared to always keep it clean from filth with provided drains that can directly water the closet floor area so that the cleanliness of the potential filth in area of the closet is preserved.
Project gallery
客服
消息
收藏
下载
最近













































