查看完整案例

收藏

下载

翻译
Architects:CV ARCHITECTS + ASSOCIATES
Area:310m²
Year:2020
Photographs:Creative Photo Room by Maria Efthymiou
Manufacturers:Rabel Aluminium Systems,ALUMINCO,CARPETU2,CHRISTOFIS SHIALI & SON LTD,Cielo,DALIKO,E & G PAROUSIASI DECORATION LTD,Knauf,MAVROMICHALES WOOD WORKS AND DESIGN LTD,MEISTER,MIRAGE,NOVA LUCE,Noken,PIAZETTA,Zucchetti.Kos
Lead Architects:Vasiliki Constantinou
Contractors:P.Chrysanthou Buildia Con Ltd
Structure Engineers:Advanced Structural Design Sotiriou
City:Limassol
Country:Cyprus
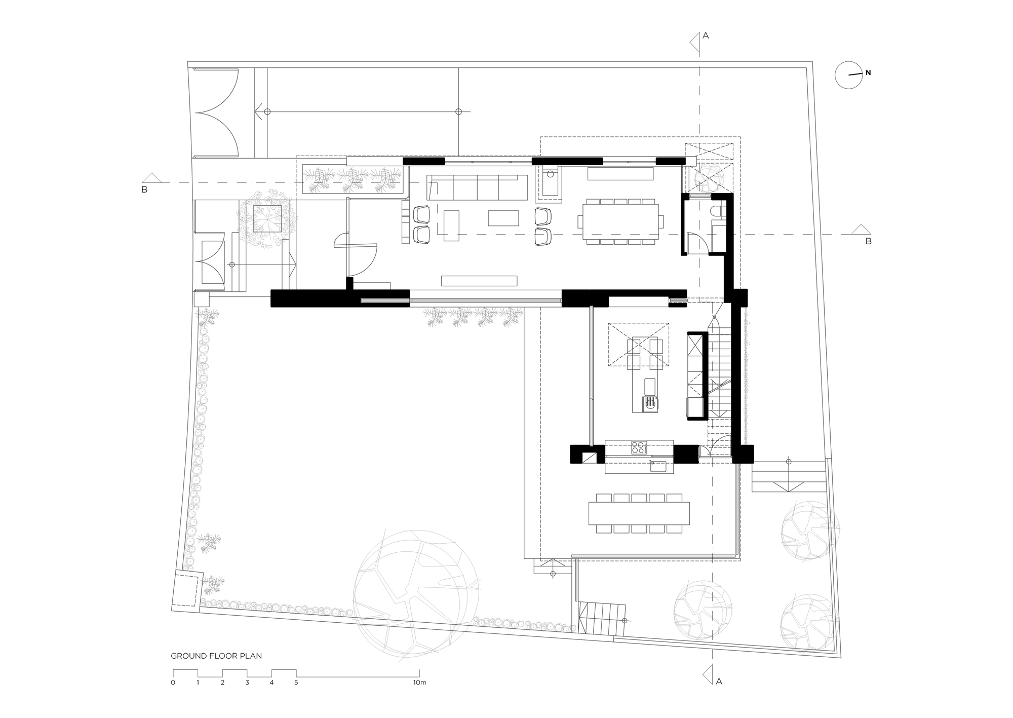
Text description provided by the architects. The key concept of the MV024 house design was to create a microclimate using the form of the structure itself and develop a bioclimatic design within the house as well as in the courtyard. The Architect considered bioclimatic design to be a priority in architecture. In order to achieve that, she emphasized the local climate and environment and researched and analyzed the site’s data and context - that are orientation, ground morphology, temperature, winds, and humidity.
The two main elements which empowered the geometry synthesis and the positioning of the different spaces were the strong north and west winds of the area and the existing two-meter difference in altitude of the plot of land. Firstly, due to the altitude difference, ancillary areas of the house were placed at the lowest level, thus creating an underground area. Due to the strong winds, the north and west elevations were chosen to remain mostly “blind” without any big openings, as a protective element. On the contrary, the big openings of the main living spaces were orientated facing south and east, ensuring both natural daylight and an increase of solar radiation gain during the winter season.
The ground floor was formed as the base which supports the clean geometry of the first floor’s volume. This base was shaped through thick walls covered by local stone cladding, which enclose kitchen cabinets and other storage furniture. The east stone wall extends additionally three meters in order to ensure the privacy of the main living outdoor spaces plus to protect the main yard from the west wind.
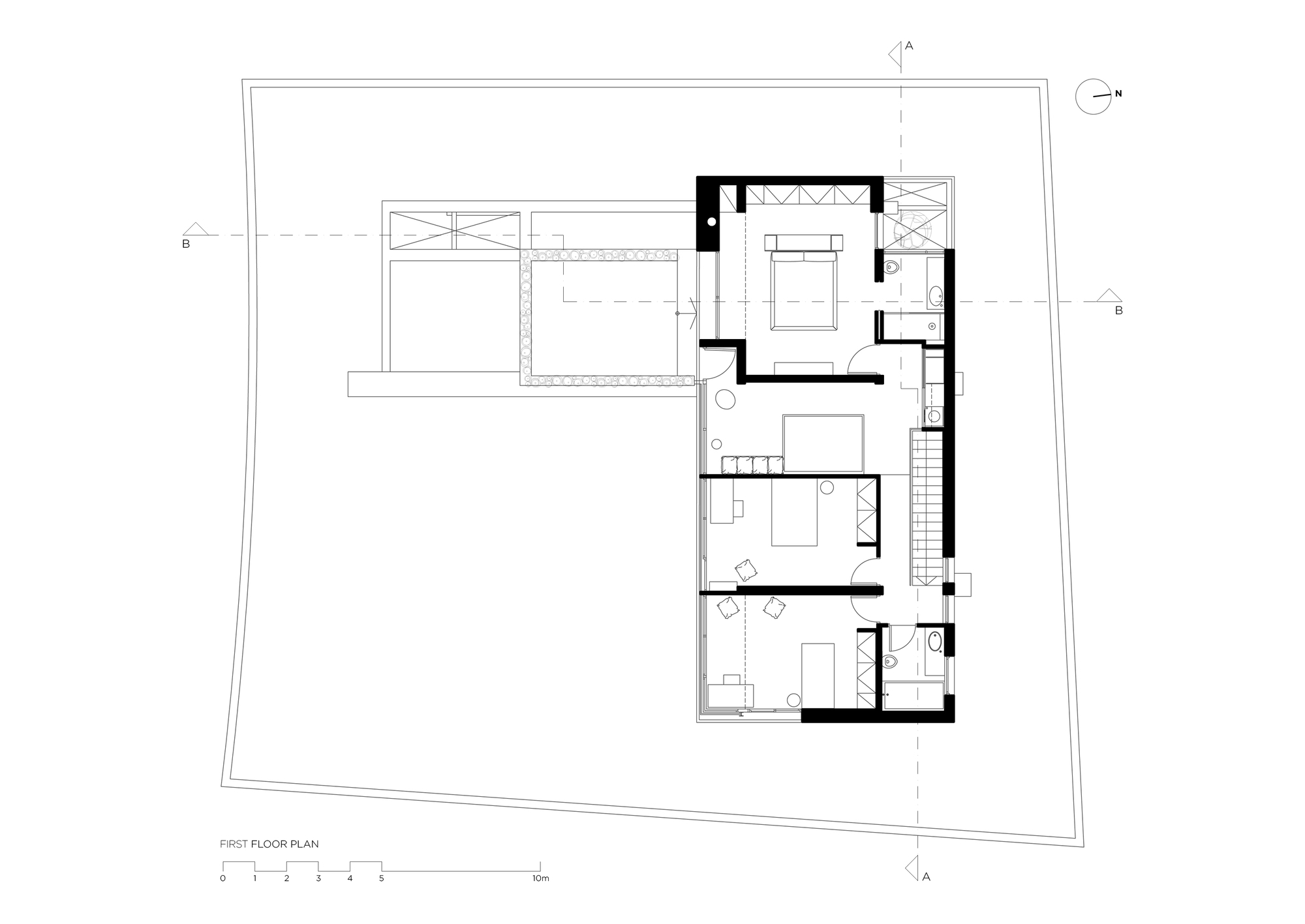
The first floor consists of a clean white volume with a perforated façade – a movable solar shading system. The shades control sunlight and thermal gains to the indoor living spaces of the first floor based on an adaptation of solar radiation. The manually folded system provides the maximum thermal gains during the winter season. Furthermore, the closed system provides solar protection during the winter season letting the natural daylight be diffused as well. The white color of the volume reduces the absorption of solar radiation, without interrupting the natural daylight and ventilation.
To predict cross ventilation, considering the strong winds, a zone of fanlight windows was created at the west side of the living room and dining area, while limited amount and size openings were set at the north side of the first floor – corridor, and master bedroom.
MV024 house was designed as a place where a four-membered family can call home, using all the spaces in a sustainable way. It involves elements from the Cypriot lifestyle, which means spending much time outdoors enjoying the daylight and the warm sun. The total synthesis was developed respecting the natural environment, taking full advantage of the area’s climate context, and achieving a sustainable way of living through its bioclimatic design.
Project gallery
客服
消息
收藏
下载
最近





































