查看完整案例

收藏

下载

翻译
Architects:auba studio
Area:1141m²
Year:2021
Photographs:José Hevia,auba studio
Manufacturers:Hansgrohe,JUNG,Bernstein,Cortizo,Finsa,ICONICO,Studio Jaia,Torrens
Lead Architect:Santiago Martín-Borregón Navarro
Structure:HIMA estructuras - Andrés karg Lara, Fernando Purroy Narvaiza
Program:Vivienda aislada en edificio plurifamiliar entre medianeras
Patio Area:549 ft2
City:Palma de Mallorca
Country:Spain
Text description provided by the architects. A. CONTEXT
The difficulty in finding affordable rentals and the limited supply of affordable housing in Palma led the owners to seek alternative solutions.NZ10 is the result of a renovation from an old bakery from the 80s into a home.The apartment is located on a ground floor in one of the densest neighborhoods in Palma.
B. INITIAL CONCEPTS
The project basically tries to find the balance between natural lighting, privacy and landscape:
1. LIGHTING
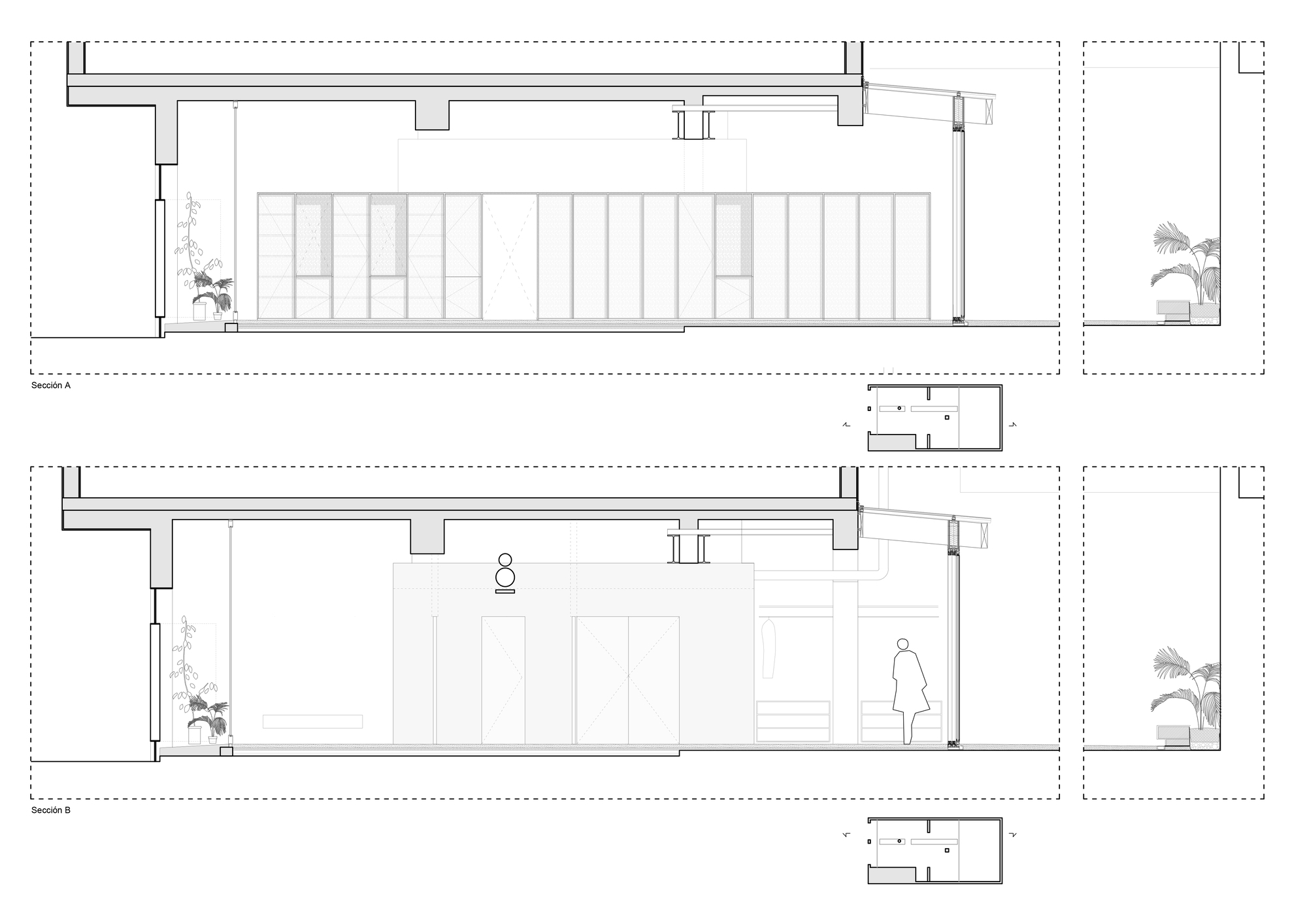
-The backyard is recovered by throwing the cover of the old kitchen. The footprint of the tiling is maintained as a wink and also generating a texture that serves as support for the patio plants and as an acoustic cushion.
-The wall that divided the back part, the old kitchen, from the front part is opened.
In this way it is possible to generate a light continuity between the front and the rear areas. Two stained glass windows are used that go from wall to wall, one on the front side and one on the back side facing the patio.
Finally, the ground floor grows approximately 2m towards the patio. This new addition, which amounts to a porch, is executed by means of a light element and with a glazed roof that, due to its location to the north, does not receive any incidence of the sun.
2. PRIVACY
To try to soften the direct contrast between the house and the street, an intermediate space is generated. In this way, the interior of the house leads directly through the stained-glass window to this "batiport", which is protected from outside views by means of a system of inclined steel slats.A system strongly inspired by the solutions made in places like Barcelona by the Cru studio.
3. LANDSCAPE
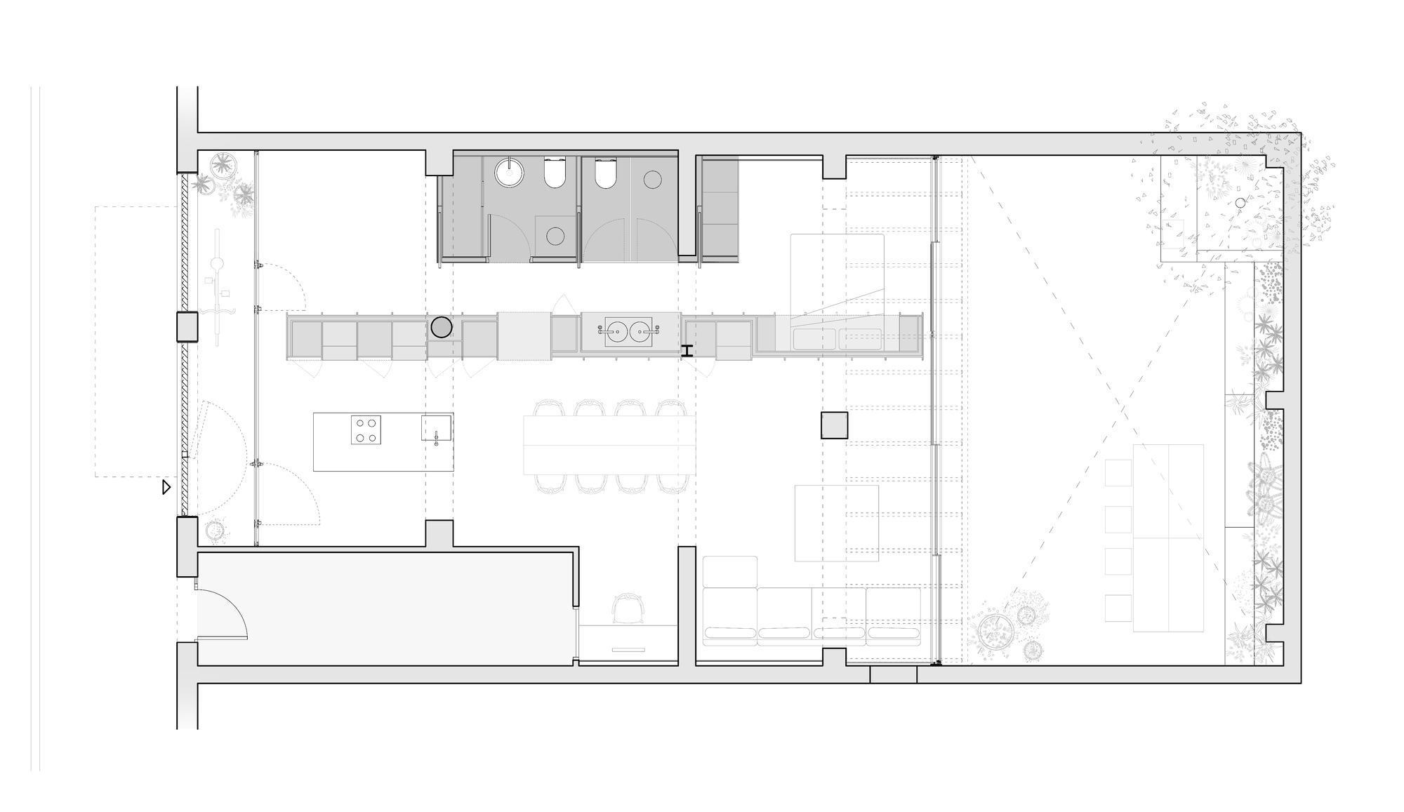
Nature is introduced generating an interior landscape.In the patio, a linear planter is created with a continuous bench visible from anywhere inside. A larger parterre houses a tree and a technical space.
This landscape is maximized due to the great interior-exterior relationship that has been fostered throughout the house. This achieves a feeling of spaciousness, since the patios, front and rear, are visually part of the interior of the house.
C. DISTRIBUTION
The distribution is generated by means of a linear piece of fir wood furniture, which is placed perpendicular to the patio in such a way that it allows the flow of light between the patio and the façade, while dividing the house into two areas: the living area and the bedrooms zone.
In the day area we have a living room-dining room-kitchen. The kitchen is centered on a stainless-steel island and is supported by the main cabinet.In the night area we have two bedrooms, a main one with an en-suite bathroom and an auxiliary room. Between both rooms the bathroom areas are located.
All the new actions are carried out with fir wood elements so that the new interventions are clear while providing the warmth that a space with little light needs.
Project gallery
客服
消息
收藏
下载
最近































