查看完整案例

收藏

下载

翻译
Architects:VDV ARQ
Area:227m²
Year:2019
Photographs:Federico Cairoli
Architect In Charge:Victor Della Vecchia
Collaborator:Maximiliano Mazzitelli
City:Buenos Aires
Country:Argentina
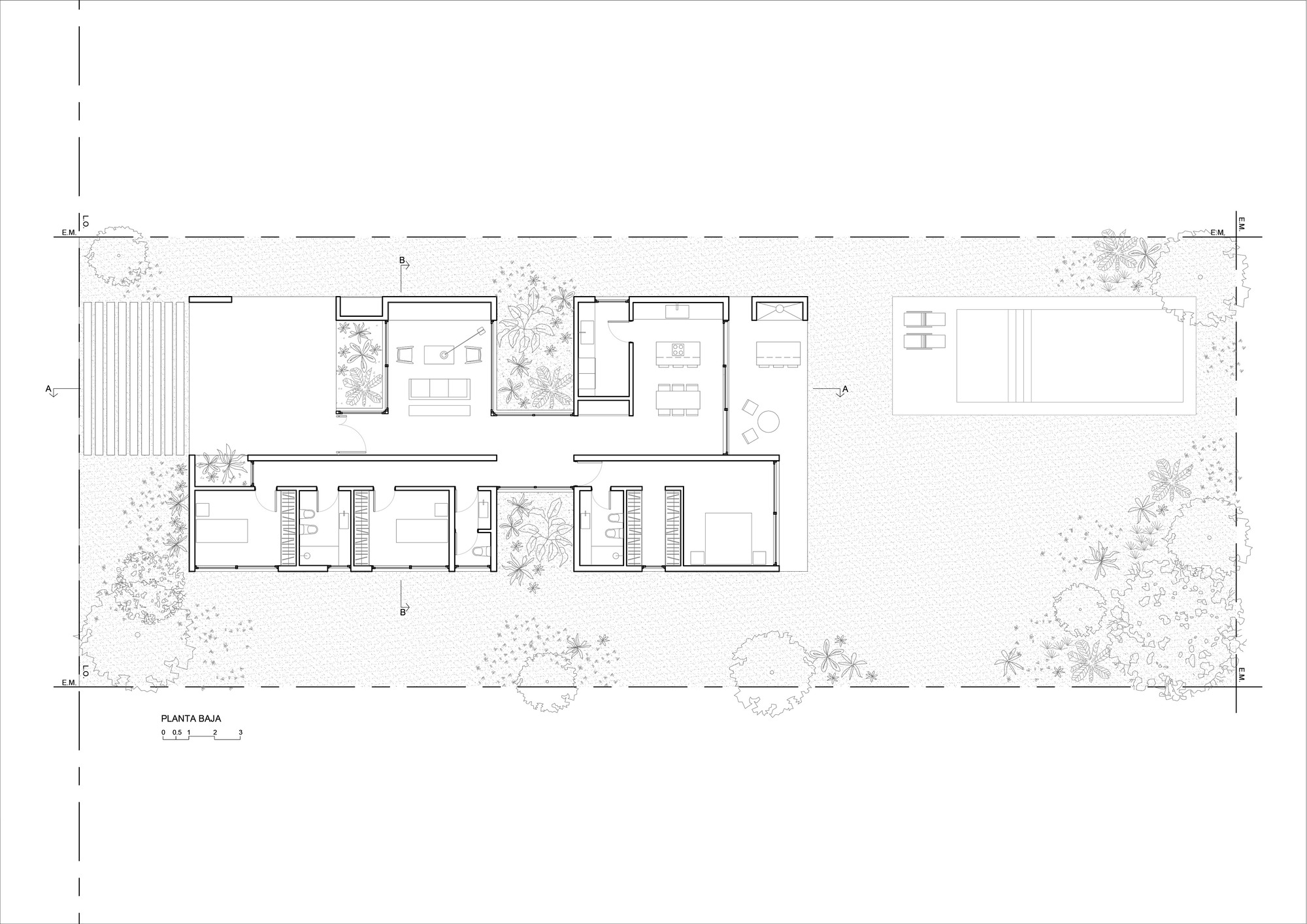
Text description provided by the architects. Within a gated community in the northeast of the province of Buenos Aires, Argentina, a plot of rectangular proportion is presented in relation to a heterogeneous built environment.
Based on this, the program had to emphasize the search for specific privacy and generate a space of expansion and contemplation, thus the primary investigation of the project focused on the registration and control of the visuals, seeking to close and open the limits of the project, gaining light and avoiding unwanted perspectives, always using the least amount of space and construction resources possible.
In this way, the house proposes and encloses within its limits, a conceptual game of TicTacToe, in which each occupied space is in relation to an empty counterpart. This strategy is presented through a continuous roof with alternated holes to achieve gradual, careful lighting and generate atmospheres in each space. A disaggregated unit, the consequence of a system of planes that make up spaces, establishes a game of solids and voids, of positives and negatives.
This dynamic of opaque and transparent occurs in three dimensions: roof, walls, and floor alternate between solid and complete, which is enhanced by the mono-material conformation of the volume. The house is wholly materialized in concrete for its opaque areas and aluminum and glass carpentry for the translucent panels.
The structure merges with the conceptual layout, the house is designed with a massif that gradually empties expressing its forcefulness and consolidating itself in a disparate environment as a counterpoint to the built environment.
Project gallery
客服
消息
收藏
下载
最近


























