查看完整案例

收藏

下载

翻译
Architects:KMR . Architects
Area:93m²
Year:2022
Photographs:Usagito Camera
City:Takasaki
Country:Japan
Text description provided by the architects. Site - This is a house in Takasaki Gunma JAPAN, where Three of us, parents, and a child. The site is along the road that entered a little path from the main road. With the site as the border, behind it spreads a tranquil field and rural scenery, dotted with farmhouses.
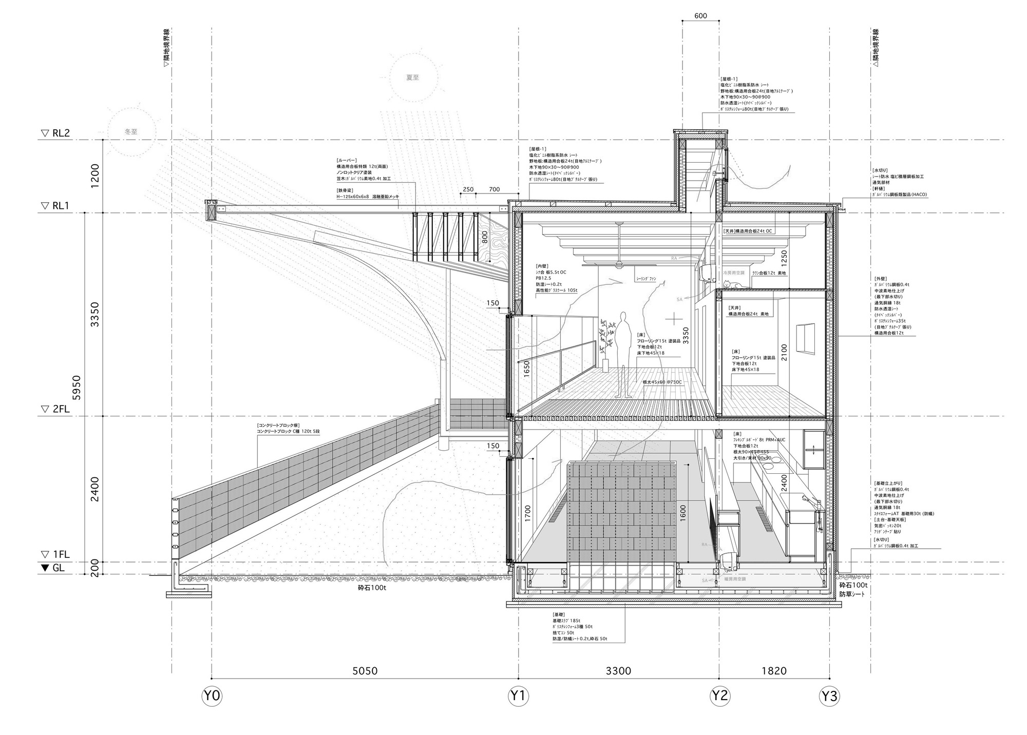
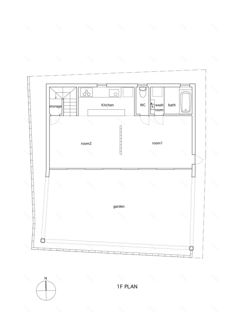
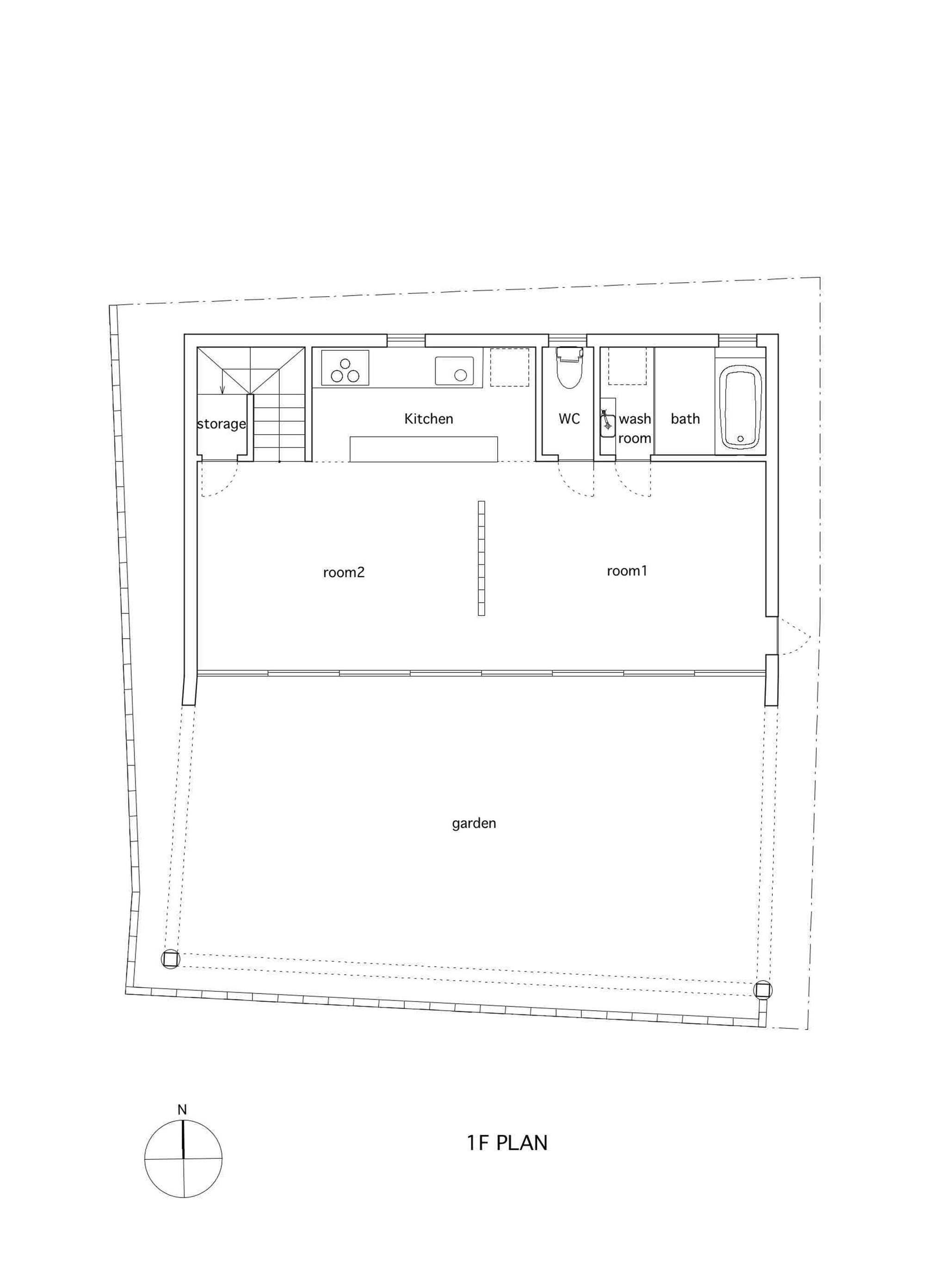
Concept - The house aimed to be a low-cost yet high-performance house as much as possible. Therefore, basically, the keywords of rationality, generality, and simplification are preceded. Configuration is a simple three-part configuration. The size of the space decreases from the outside to the inside, making it a more private space. Rather than meticulous planning, flexibility is gained by deciding on configuration only.
House with Pergola - The outermost large space is a weather-beaten space with no specific function. However, it has a louver on the top while being surrounded by a structural frame. The louvers are adjusted according to the angle of the summer solstice and become an important architectural element responsible for controlling the amount of sunlight entering the room. Install an outside curtain at the entrance and turn it into a private garden if you feel like it. In the future, this void is planning a new extension plan using the structural frame as a clue.
Environmental performance - The concept of environmental performance is to realize a high-performance house with a minimum of general-purpose equipment. Air conditioning uses two general household air conditioners. One is installed under the floor and the other is installed on the upper part of the second floor. The underfloor is for heating, and the second floor is for cooling. Part of the floor on the second floor is slit and the ceiling fan above diffuses the air, making the temperature uniform throughout the house. The insulation is a hybrid structure filled with high-performance glass wool and extruded Styrofoam on the outside.
Structure - The structure adopts a wooden frame construction method based on traditional Japanese units shakkanhō). Three ingenious points there is:
Project gallery
客服
消息
收藏
下载
最近


























