查看完整案例

收藏

下载

翻译
Architects:24 7 Arquitetura
Area:511m²
Year:2020
Photographs:Adriano Pacelli
Arquitetos Líderes:Giuliano Pelaio, Gustavo Tenca e Inácio Cardona
Responsible Architects:Nicolas Meireles, Claudia Strutz
Project Team:Christian D’Abruzzo, Nícolas Doi e Jully Paiva
Engineering:Solar Engenharia e Tecnologia
Landscaping:Letícia Fortuna
Collaborators:Vertz Iluminação
City:Ubatuba
Country:Brazil
Text description provided by the architects. Located in the city of Ubatuba, about 230km from Sao Paulo, this summerhouse is on a steep slope and in the presence of a dense Atlantic Forest, circumstances that led the project to a dialogue between the design and the exuberant nature of the surroundings.
The terrain imposed a structural challenge and the steep slope and a large number of rocks and native vegetation made access difficult and prevented the view of the sea.
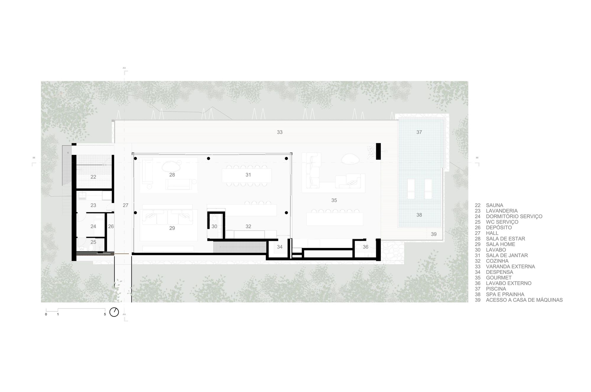
Thus, the access to the house was designed to overcome the natural obstacle imposed by the terrain itself, guiding the user through the transition between the Atlantic Forest and the ocean view. A walkway marks the axis from the entrance of the house to the destination: framing the ocean view. At the entrance, nature takes the lead of the project, attracting the eyes of those who arrive and in a natural way, walk to the balcony, unaware of the living room door located on the right side of the hallway.
Highlighting the landscape, the pavilion layout makes all the rooms face the sea, while the intimate wing, located one level below, closer to the natural ground, also opens to the Atlantic Forest, in a close relationship with the treetops. The decision to allocate the bedrooms below the social area not only respects the natural slope of the terrain but also inserts the building into the landscape in a gentle and harmonious way.
For those looking from the beach, the house seems to hover above the treetops, so the building has two main façades: the one overlooking the sea and the one overlooking the forest.
An external staircase also leads the user to a roof terrace, from which even larger views of the ocean and the Atlantic Forest are projected. The materials were carefully chosen, especially the metallic cobogó on the façade, and the predominance of natural materials such as granite, wood, and aluminum slatted panels on the bedroom windows.
To control the insolation on the lower level, we have cladding by slatted panels that open and close, and on the upper level, the closing is done by large sliding glass panels, set back from the limit of the roof slab, helping to reduce solar exposure in the hottest seasons. The house benefits from abundant natural lighting and permanent cross ventilation, providing adequate thermal comfort for the residents.
Project gallery
客服
消息
收藏
下载
最近





























