查看完整案例

收藏

下载

翻译
Architects:Metrópole Arquitetos
Year:2021
Photographs:Nelson Kon,Silvio Oksman
Lead Architects:Anna Helena Vilella, Silvio Oksman
Architect:Bruna Caracciolo
Original Project:Vilanova Artigas
Engineering:CEN Engenharia
Preservation Consultant:Pedro Vieira
Restoration Of The Artistic Panel:Andreia Naline, Anderson Ribeiro
Electrical:Sandretec
Structures:Ycon Engenharia
Lighting:Lux Projetos
Landscape:Vito Macchione
City:São Paulo
Country:Brazil
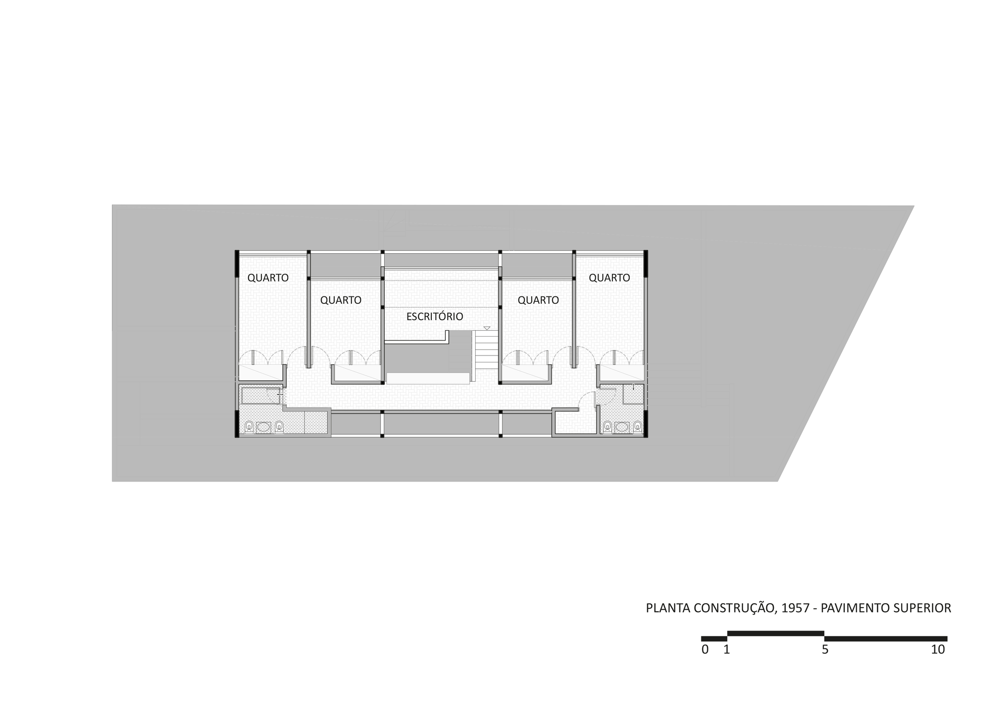
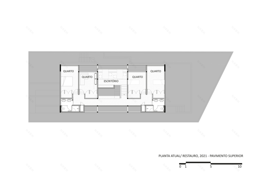
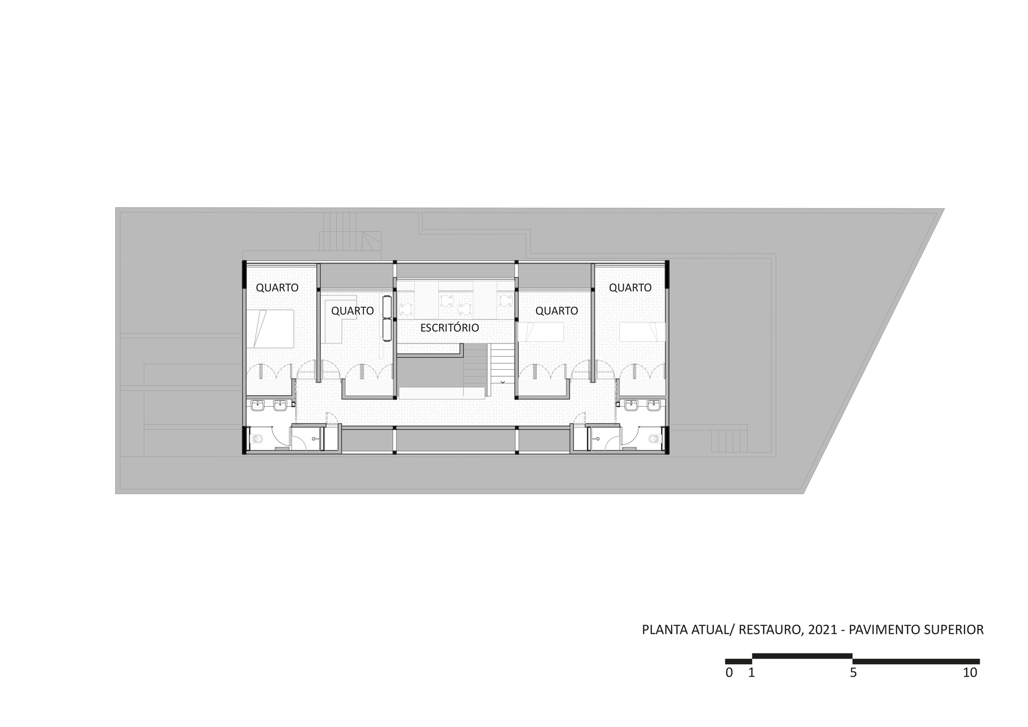
“Casa dos Triangulos” was built in 1956 and designed by Vilanova Artigas in Sao Paulo, Brazil. A raised block configures the general volume of the building and houses four floors in half levels. It has an artistic panel designed by Mário Gruber. The restoration project proposes interventions updating its facilities and adapting the spaces for contemporary uses. It respected the architectural characteristics of the house removing additions that caused problems for its perception. The demolition of the servant's facilities allowed a new relationship with the gardens that surrounded the house. The change reveals the cantilever at the rear of the house and allows better visualization of the artistic panel.
The new proposal for the waterproofing system removed the cement-asbestos tile, a platband, and the flashings. A waterproofing and thermal protection system was installed without the need for flashings. A prospection on the artistic panel allowed finding the original tone of white and blue paint and the trace of the original mortar. The panel was in a very bad state of conservation. Detachment of mortar and cracks were in great quantity and depth. Grooves in the mortar reveal the differences between the original design and the repainting in acrylic paint.
The giornate was hidden behind the acrylic paint and was underlined in the mortar after the pickling process. A leveling mortar was applied to complete the lost areas and level the surface. Silicate-based mineral paint was applied to restore the artistic panel. A small staircase interconnects the level of the garage with that of the dining room. The stone-finished wall that defines the gap between the two external levels is fully preserved.
Two stainless steel water tanks were installed on top of the columns – as recommended by a structural engineering consultancy – and are barely visible. Before the restoration, the original window frames of the bedrooms were replaced by frames supported on a sill painted in red. The restoration project kept the red color considering the differentiation of the frame plan from the rest of the masonry. The columns were originally painted in blue. The red paint on the inner face divided the columns into two: blue on the outside and red on the inside. Now they were completely painted in blue to recover the original chromatic scheme.
Project gallery
客服
消息
收藏
下载
最近






















