查看完整案例

收藏

下载

翻译
Architects:Taylor Reynolds Architects
Area:140m²
Year:2022
Photographs:Patrick Reynolds
Manufacturers:Big Ass Fans,GRAPHISOFT,Kingspan Insulated Panels,Fisher & Paykel,Unios,ABCO Stainless Steel,Abodo,Academy Tiles,Artemide,Astra Walker,Auburn Woodturning,Austral Plywood,Blum,Cabinet Timbers Pty Ltd,Forbo,High Craft Windows,Hydrotherm Hydronic Heating,Laminex,Nagoya Mosaic-Tile,Rubio Monocoat, +2Stramit,United Products-2
Lead Architects:Jeremy Reynolds, Lauren Taylor
Construction:Kwaliteit Constructions
Design Team:Jeremy Reynolds, Lauren Taylor, Bree Lord
Structural & Civil Engineering:Ipsum Structures
Lighting Supply:Lights & Tracks
City:Preston
Country:Australia
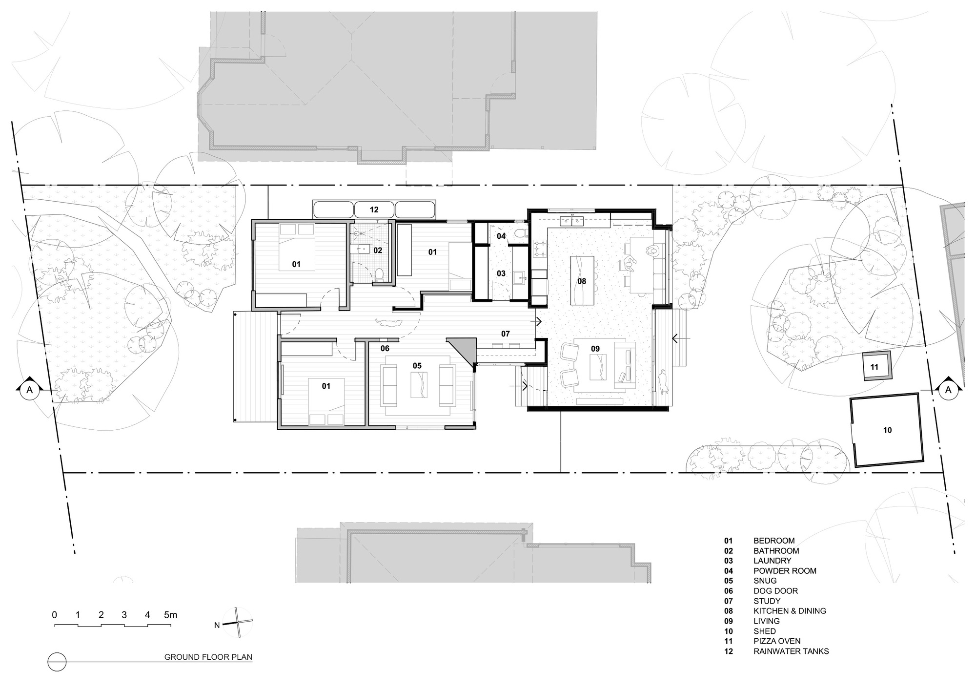
Text description provided by the architects. Our clients, a family of four, including two teenagers had occupied this house for several years. The house, a traditional and modest timber villa (situated in an inner urban suburb of Melbourne) while adequate for young children, was showing its limitations in accommodating four adults. The existing house lacked functioning living spaces, internal light, and connection to the outdoors. Accommodating three bedrooms, a living room, and a bathroom, the original villa was in relatively good order. However, an assortment of tatty ‘lean-tos’ at the rear of the villa containing an inadequate kitchen and dining room, laundry, and external toilet were long past their use-by date.
The design response was required to open the spaces, internally and externally while creating opportunities for quiet and privacy- spaces that provided for differing moods and supported varying activities while feeling a connection to the whole. The lean-tos were demolished, and the retained portion of the Villa underwent some minor modifications including renewing the bathroom, inserting a large, glazed pivot door into the hall to create separation between the private and social functions, (inclusive of a small opening in the wall to enable the owners’ dogs Presti and Billy to move freely around the house). The door to the sitting room was removed and the wall opened into the hall. A new south-facing window was installed to capture views through to the new addition to the rear of the property.
The addition, constructed as two elements, one, a low flat-roofed section containing a new laundry, second toilet, and study using the same material language as the existing Villa, leads into the second part, a distinctly bolder space, containing the kitchen, dining, and family living room. A small courtyard further separates the original villa from the main addition which provides a second access to the main social function of the house, bypassing the traditional front door adjacent to the bedrooms. The split roof in the addition is a response to the conflicting Melbourne weather, its four seasons in one day (a well-earned reputation). Climatically it experiences hot dry summers with prevailing northerly winds and cold wet winters, and the weather pattern is predominantly southerly.
The roof over the kitchen and dining zone is pitched facing north, enabling the installation of a PV Array on the roof, and the tall south-facing window captures views of neighboring mature eucalypt trees, opening sashes at the top and bottom of this window provides airflow to purge summer heat. A hydronic heating panel vented at the top of the buffet seat provides a curtain of warm air for winter comfort. The roof over the living area is pitched facing south with sliding doors set back from the roof providing weather protection to the small transitional deck out toward the rear yard. Highlight windows facing north allow low winter sun to penetrate deep into the living space, an eave overhang shields unwanted hot summer sun and a highlight opening sash allows for ventilation.
Prioritizing passive design strategies has allowed the home to minimize energy consumption and optimize the natural attributes of the site. Double-glazed timber windows, roof water collection and reuse in addition to the solar panel array, and use of sustainable materials (timber, marmoleum, plywood, etc) make for a very liveable home. Our clients remarked that separately to the added functionality, environmental performance, and enjoyment that a renovated home brings, the overwhelming and somewhat surprising outcome has been the increased family interaction and connection that this new environment supports. As an architectural practice, a driving tenet of our work is to carefully consider the siting and planning of our projects. This is particularly vital when we are working with small footprints and modest budgets.
Project gallery
客服
消息
收藏
下载
最近



















