查看完整案例

收藏

下载

翻译
Architects:Quod Architects
Year:2022
Photographs:Fabian Ong
Lead Architect:Diong Fuhan
Landscaper:Cultigreen
Quantity Surveyor:BKG Consultants
Structural Engineering:Leng Consultants
Lighting Designer:Erudite Lighting
Team Members:Ho See Jia, Zora Teh
Country:Singapore
Text description provided by the architects. We designed a residential house for an idealized family life, that is environmentally sustainable and responsive to our tropical climate. The house was envisioned to be open to the natural environment since the owners loved gardening, and breezy, and encouraged interaction between family members.
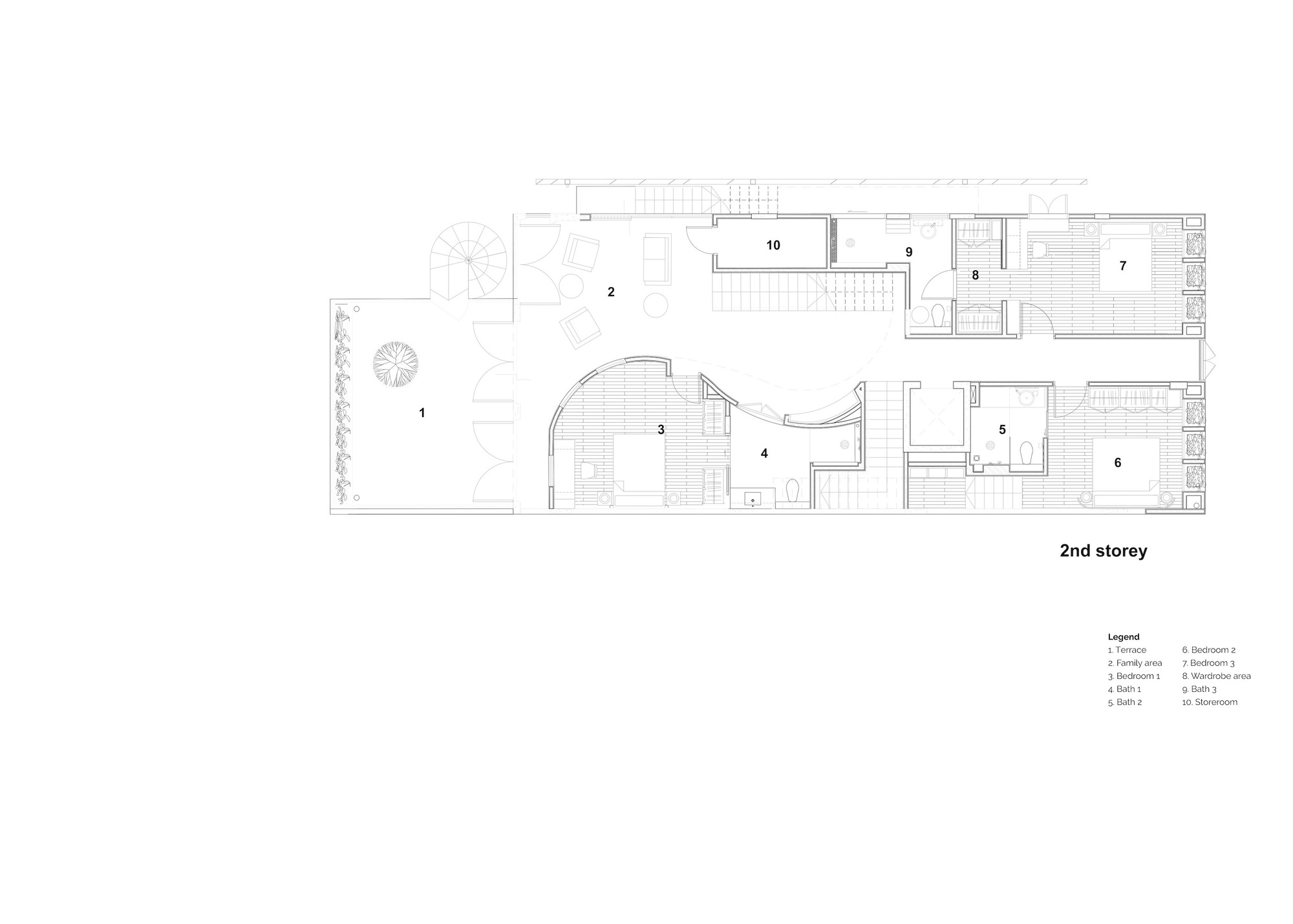
It gives the residents the feeling of being outdoors, when they are in fact, sheltered at home, and maximized common family areas, while providing privacy for the bedrooms. We also designed for a 12m high tree to reach from the 1st storey car porch area to the 2nd storey terrace, connected to the family area. From the 2nd storey family area, you see the crown of the tree, so it feels like you are outdoors.
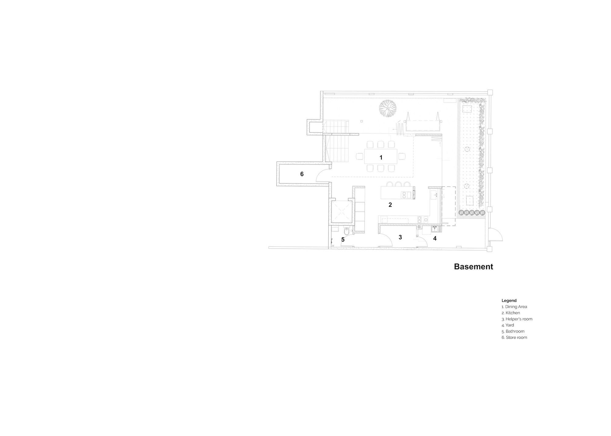
We retained the structure at the basement, 1st storey, and 2nd storey of the original house, and added a floor above. The original design was not suitable for contemporary living. It was very enclosed and dark, with few windows. The ceiling height was also low, and the kitchen and dining areas were on separate floors. We created a double-volume dining area which was next to the kitchen at the basement level and allowed for a wide and grand staircase from the ground-level living room. This allowed lots of cross ventilation and made it feel more spacious and delightful. The grand staircase is not just a circulation space, but also a gathering space where people can sit and socialize when there are large gatherings.
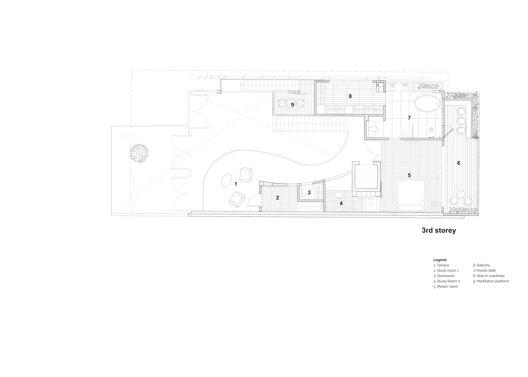
The 2nd storey and 3rd storey are where the more private spaces are – family areas and bedrooms. There is a main staircase that leads one from the 2nd to the 3rd storey where the master bedroom is. The other external staircase leads from the family area to the internal balcony, such that a journey through it feels like you are moving outdoors, blurring the boundaries between inside and outside.
To create this outdoorsy and open house, we used a lot of natural timber, pebble wash, and a rough textured paint finish for the indoor walls. These are materials that are typically used outdoors, but we brought them indoors, to lend a touch of ruggedness.
We think the result is very unique architectural language.
Project gallery
客服
消息
收藏
下载
最近





























