查看完整案例

收藏

下载

翻译
Architects:Rinaldo Del Nero
Area:220m²
Year:2020
Photographs:Marcello Mariana
Manufacturers:Zehnder
Construction Firm:CLC costruzioni snc
Architect:Rinaldo Del Nero
Interior Design:Rinaldo Del Nero, Anna Barlascini
Kitchen Designer:Sketchome Peregalli
Furniture Maker:Fioroni Design
Artwork:Paolo Barlascini
City:Morbegno
Country:Italy
"Built to Last” is a historical restoration project born of the desire to preserve the only remaining untouched building in a dense residential area marked by construction upheaval and architectural fakes. A building that, thanks to its distinct materiality and unequivocal typological features, can tell its rural story with honesty and pride.
The old barn is transformed into a house with the addition of a new mass, clad in wood, projecting from the original stone, and supported by solid reinforced concrete pillars. The new fit onto the old, highlighting its true history by displaying in sharp contrast the architectural and temporal distinctions.
In the Alpine region, there is no better cladding than natural stone; it represents a rich heritage to be preserved, it is a historical symbol within the Valtellina context. Opting for preservation over demolition and reconstruction is a courageous and victorious choice, not without its challenges. Restoration allows the possibility to work with the natural wall finish in its most authentic form. Here, the historic stone is flanked with wood, creating a respectful continuity from existing to new.
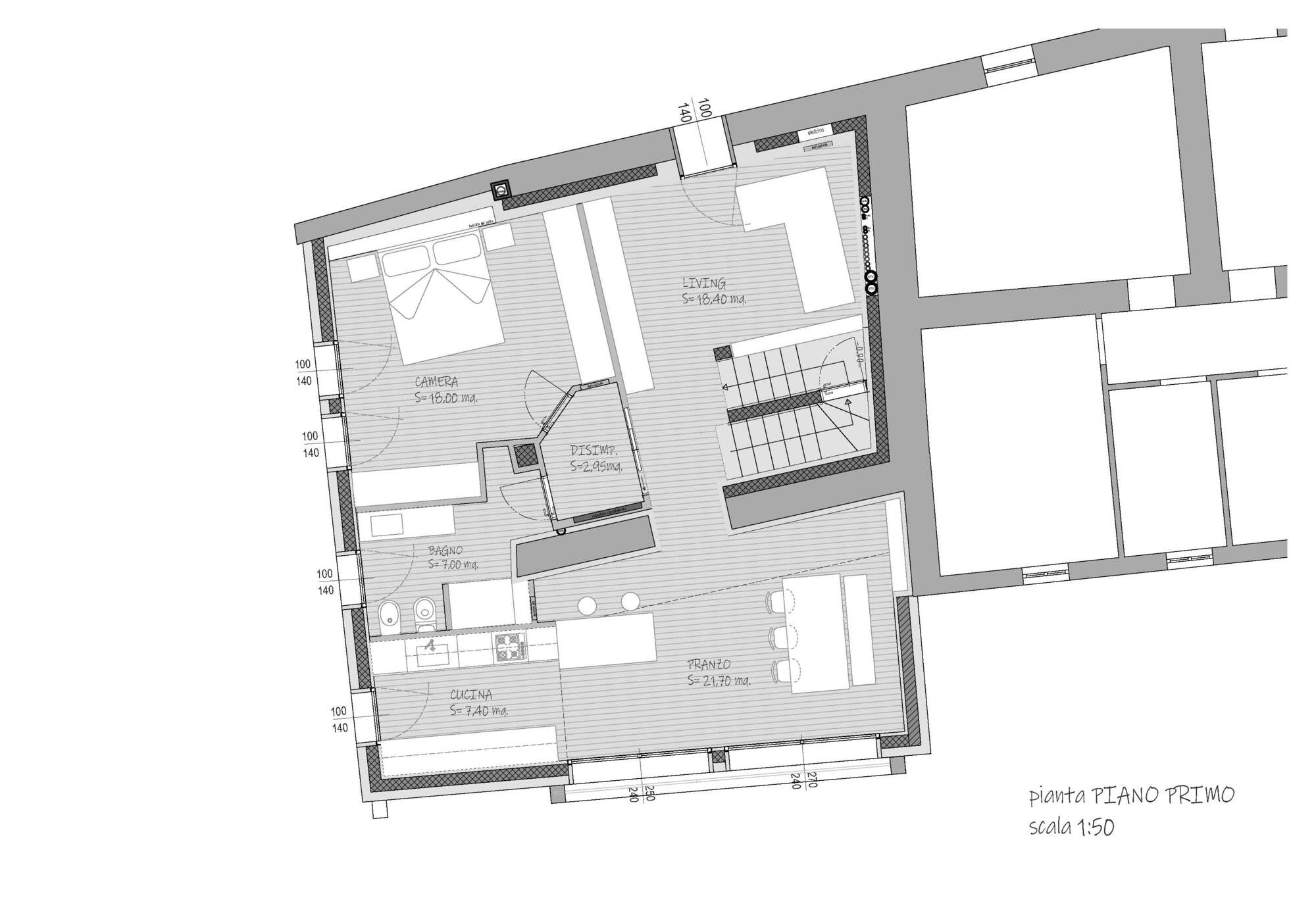
The interior of the building has been gutted and consolidated through a reinforced concrete box. A completely continuous insulated layer guarantees the level of comfort expected for a new building.
The rough exterior skin contrasts with a soft interior, characterized by natural finishes, with oak wood furnishings and floors as a centerpiece of the palette. The kitchen is conceived as a technical recess in the living room, marked by dark tones and open to the adjacent area.
The addition gives rise to a welcoming, generous, and protective entrance porch, as well as a large upper terrace revealing an unexpected space with a privileged view over Mount Disgrazia. A “true” building, built to last over time, with regards to its context, fulfilling its new function while remaining the guardian of memory, innovation, and respect.
Project gallery
客服
消息
收藏
下载
最近













































