查看完整案例

收藏

下载

翻译
Architects:Carol Miluzzi Arquitetura
Area:3229ft²
Year:2021
Photographs:Thiago Travesso
Lead Architect:Carolina Miluzzi
Engineering:Willian Carneiro de Vasconcelos
City:Araçoiaba da Serra
Country:Brazil
Tranquility. A word that guided both architect Carol Miluzzi and engineer Willian Vasconcelos, since the beginning of the project.
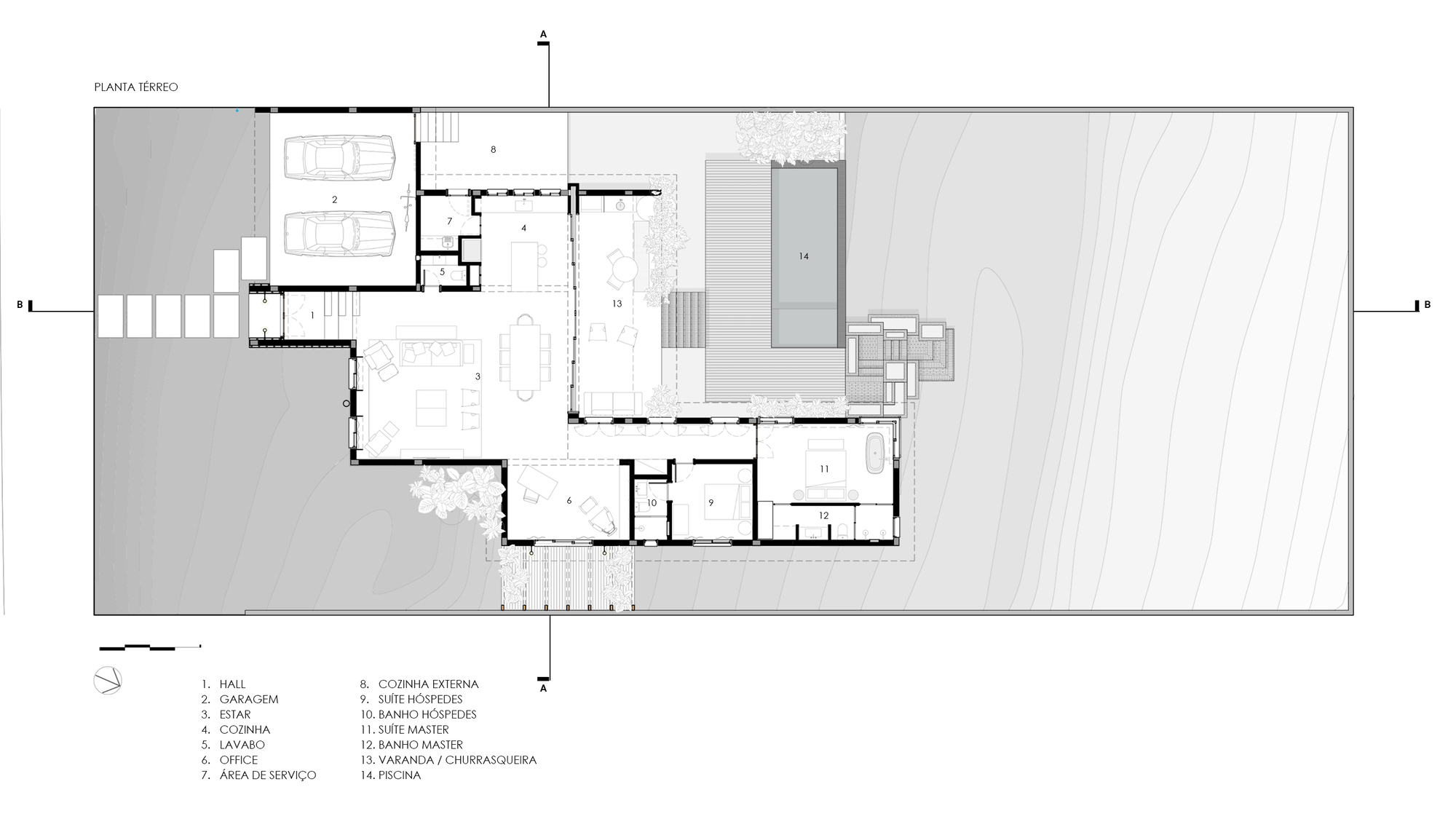
Located in Araçoiaba da Serra, a southeast town in the Brazilian city of São Paulo, the house has two main blocks shaped like an “L” that subtly conforms to its terrain and embraces the region’s nature. Throughout its wide spans, there’s a tireless view of the surrounding mountains and a fresh feeling of its pure air. It was of utmost importance for the couple that the house gave out a natural sense of decompression and relaxation.
Throughout the whole construction, bricks are highlighted for their simplicity and versatility. From the wall structures and façade cladding to the floor coverings laid piece by piece in its more than 200m², this material brings out the contrast between rustic and contemporary.
Just like the bricks, the house’s woodwork is imposing, as if it’s parts of the sculpture that are the whole. Whether in the pergolas, benches, stairs, or even in the roof structure, the wood is admired for its strength and versatility. The Japanese technique of shou-sugi-ban, used on the entrance module, gives a sophisticated tone and contrasts with the house’s simplicity, leaving to the imagination how this duality is worked inside the house.
The land occupation’s mandatory vacant spaces were imagined as living areas. On one side, an outdoor kitchen space with a play of light and shadow due to its rustic wooden pergola structure and, on the other, an open deck that allows a breath of fresh air and composes the house’s façade.
Project gallery
客服
消息
收藏
下载
最近









































