查看完整案例

收藏

下载

翻译
Architects:Raul Gobetti Arquiteto e Associados
Area:482m²
Year:2020
Photographs:Daniel Santo
Lead Architect:Raul Gobetti
City:Ourinhos
Country:Brazil
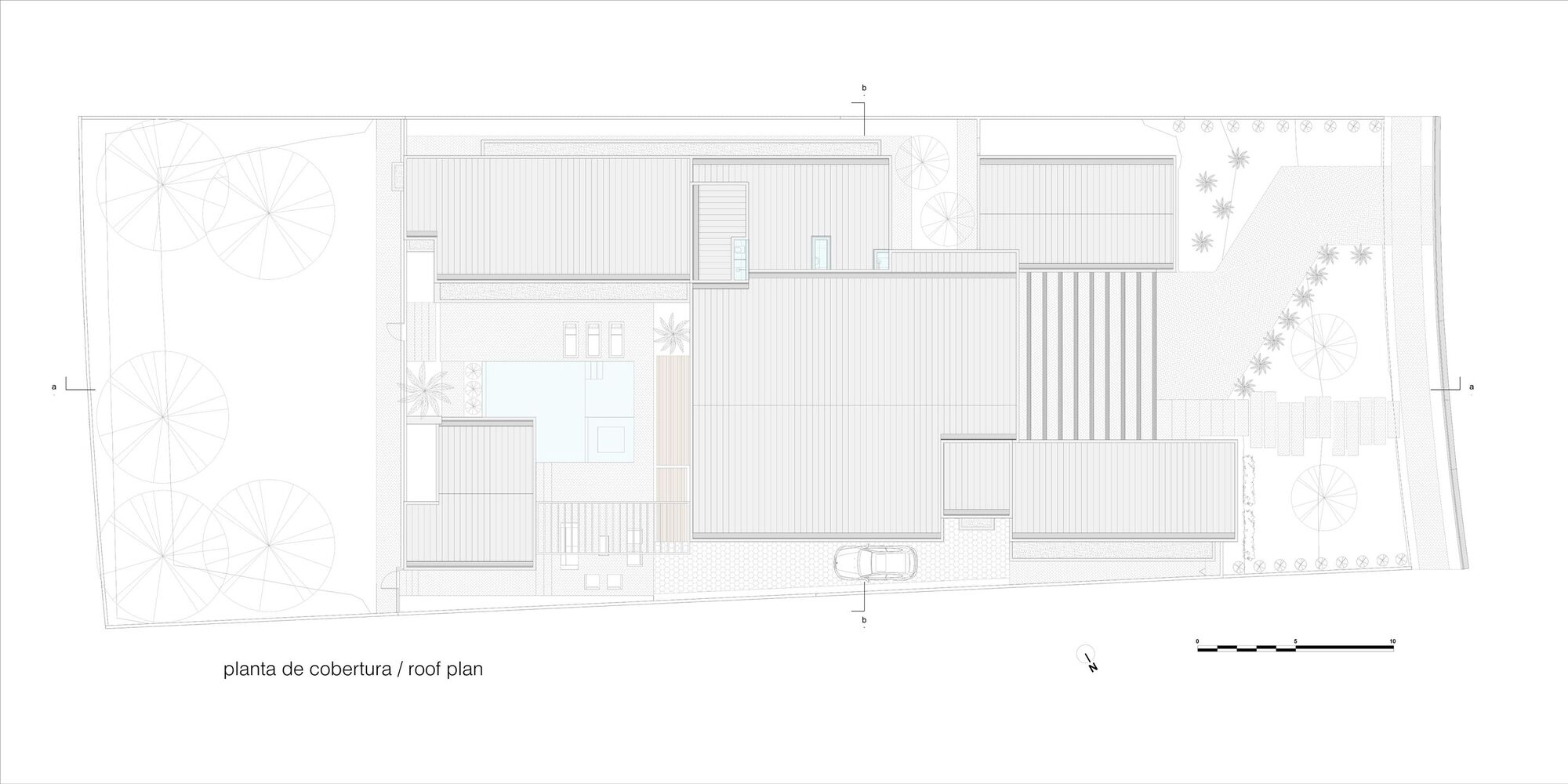
Text description provided by the architects. The starting point for the implantation of the MYO house was the geographical position of the lot, located on a slope, facing an area of native forest, facing the setting sun. The option was to position the construction as high as possible on the lot, guaranteeing privacy and a privileged view from the living and leisure areas to an area of native forest, while protecting the view from the scorching west face.
Therefore, the living and leisure space was positioned in the center of the house and the other spaces are organized around it, leaving the garages and service in front of the house, occupying the two volumes that frame the landscape, seen from the living and leisure area. These two volumes are interconnected by a metallic pergola, which serves as a 'sunshade', protecting the windows in the living area from excessive sunlight, while also allowing contemplation of the landscape. The vehicle access ramp was designed so that it had a longer and less obvious route, to reduce the inclination and open space for the creation of landscaping, between the ramp and access steps, which integrates with the scenery seen from the access of the living and leisure area. The couple's and son's suite face the leisure area and the guest's suite is more reserved. The block where the games room is located, protected by aluminum muxarabis, is connected to the main building by a pergola that has the function of shading the rest area next to the pool, thus completing the game of lateral volumes that frame the environments of living and leisure.
This form allows integrated spaces and a look “through” the living room and leisure areas while guaranteeing privacy to the intimate and services area. The construction was built of masonry, with concrete slabs and metal roofing covering the private and service areas. In the living, leisure, garage, and games areas, the concrete slab was not used, only the metallic structure as the roof, as well as in the pergolas, allowing for larger spans and speeding up the execution.
The frames are in black aluminum. In coatings, the choice was by the uniformity of materials. The same porcelain tile covers the floor of the entire residence, including the bathrooms. The joinery uses the same tones in all environments. In the external area, the option was for natural materials, such as the stone floors and the ceramic coating on the facade, or industrialized ones that mimic the natural, such as the wooden aluminum muxarabi in the games room and the wood stamped concrete floor that makes the interconnection between living and leisure areas.
Project gallery
客服
消息
收藏
下载
最近




























