查看完整案例

收藏

下载

翻译
Architects:CUBE Architecten
Area:222m²
Year:2022
Photographs:Roos Alderhoff fotografie
Manufacturers:Duco,MHB,The Flagstone Company
Lead Architects:Pieter van der Pot
Structural engineering:Brouwer & Kok
Contractor:Bouwgroep Haarlem
City:Amsterdam
Country:The Netherlands
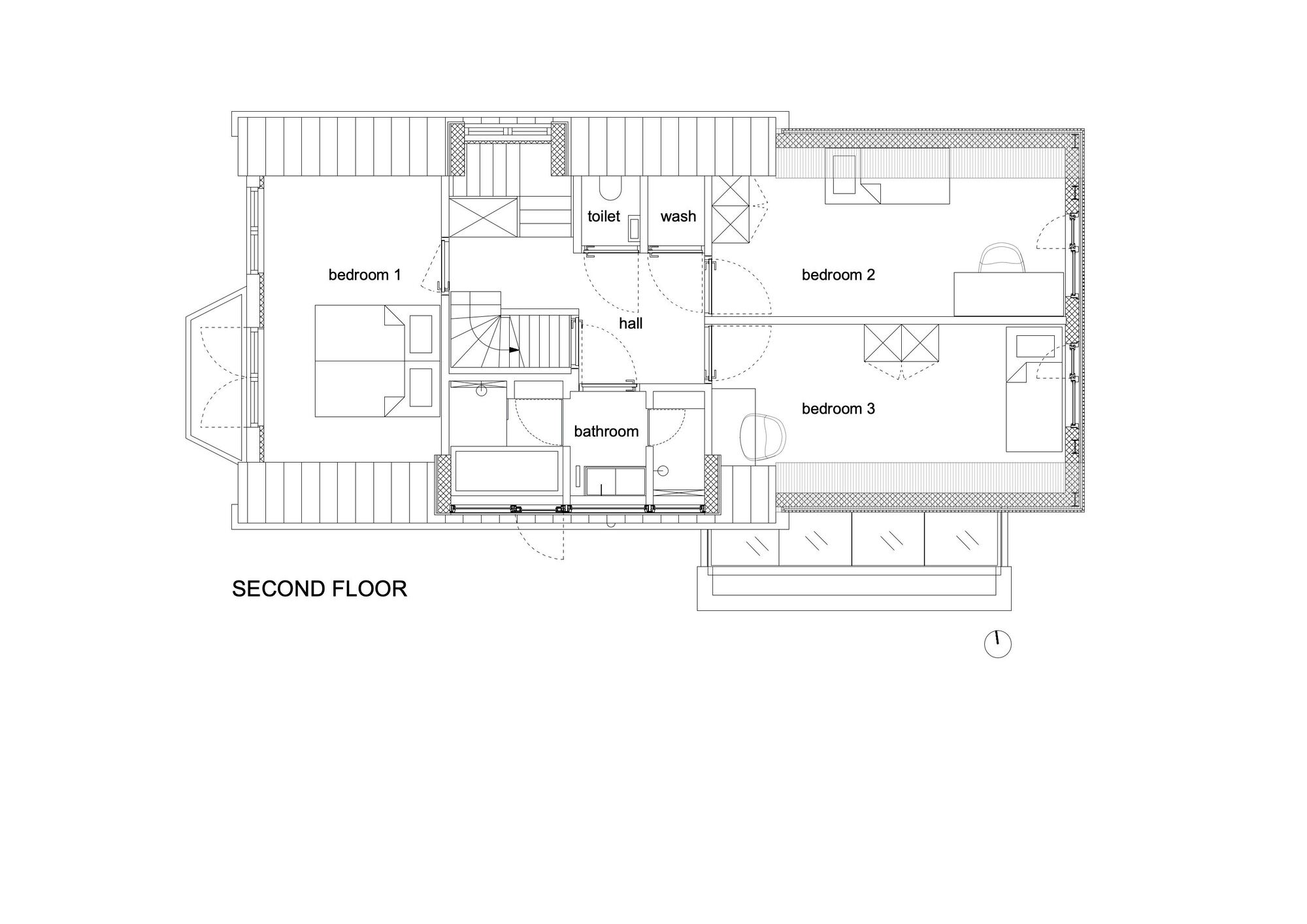
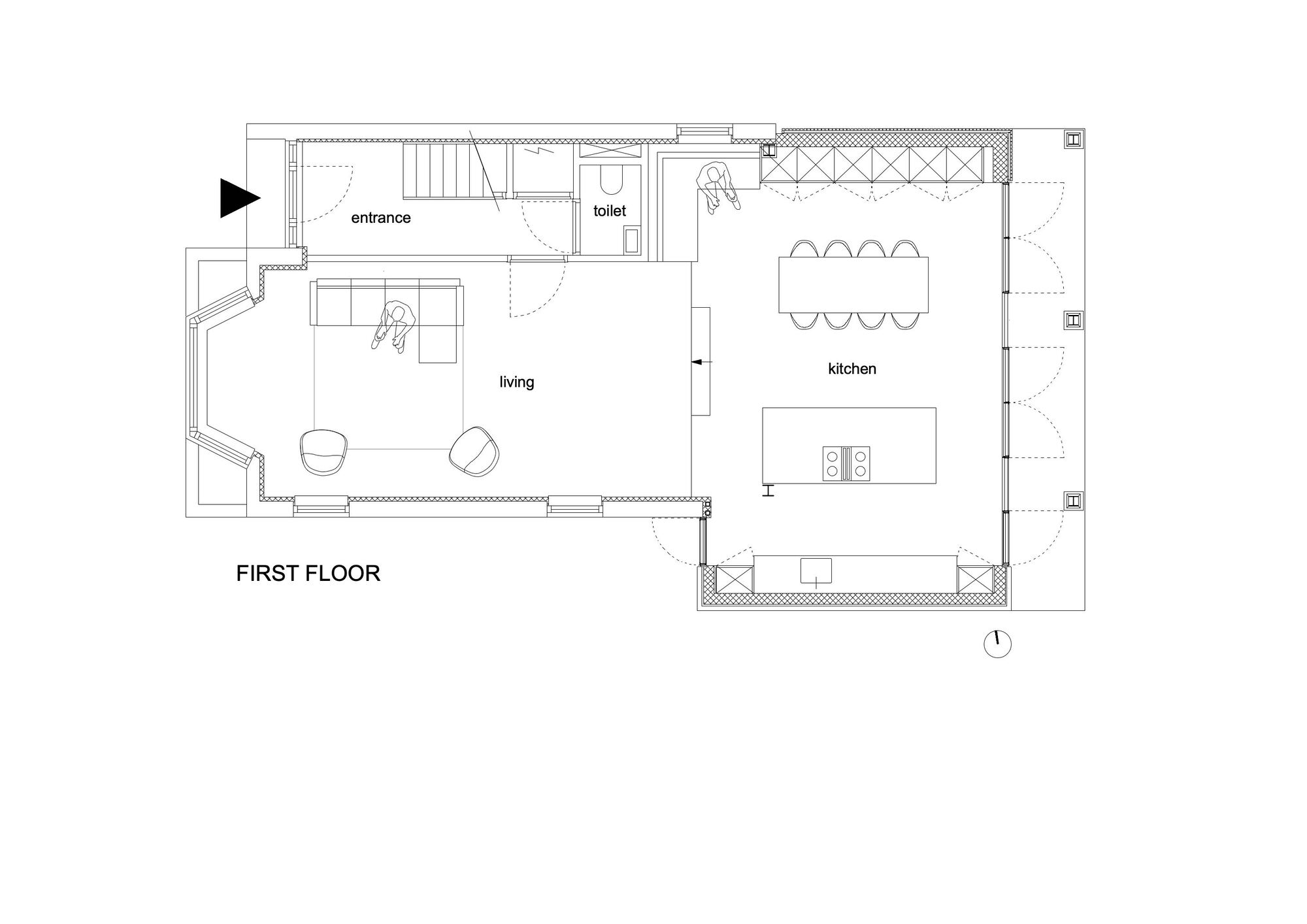
Text description provided by the architects. The house originates from 1934 and was relatively untouched. The goal was to make it a lot more energy efficient and quite a bit larger. The old house did have a lot of character and details we wanted to keep. With the new extension we wanted to merge a completely different style and atmosphere with this 1930’s ambiance; the secure and warmth atmosphere of the old part combined with the open and transparent feel of a modern home. The floor of the open kitchen diner in the new extension is placed two steps lower than the living room in the older part. Looking from the backyard you can’t really see the classic front of the house. Yet from the street you can hardly see the modern extension in the back. And yet on the inside the 2 merge easily.
We extended the house with a 5 meter deep extension over all 3 floors. We used 3 different materials in this design; burned wood, glass and rough stones. The burned wood on the facade is an old Japanese technique called ‘Shou Sugi Ban’ to protect the wood with a thin charred layer. Unlike paint this does not have to be redone every once in a while. All black solar panels are installed completely flush with the charred wooden slats.
The kitchen is situated in the freestanding coarse natural stone wall. This wall is connected to the house only by a strip of triple glass, like a drawer that has been pushed out of the house itself. From the kitchen you can look past the house on the bridge and see everyone coming up to the house. Because the glass on the ground floor is set back a little, a small veranda is created. The 3 columns supporting the rear facade reinforce this effect. Hereby we were able to place a large transparent glass front to the green garden and still manage to create a somewhat secure atmosphere.
Updating the old part of the house to modern standards required the necessary energy-saving measures. In addition to cavity insulation, the existing facades were given high-quality insulation on the inside. This had to be done on the inside to preserve the old 1930s character of the house. Even the existing stairs have been moved in order to be able to continue the insulation against the facade. In addition, the existing roof on the old part of the house has also been replaced by insulated sandwich panels and the entire ground floor has also been replaced by a new insulated floor. We wanted to keep the old stained glass, but placed this in double glazing. For the new large glass front in the rear we opted for triple glazing.
Project gallery
客服
消息
收藏
下载
最近






























