查看完整案例

收藏

下载

翻译
Architects:CASE-REAL
Area:82m²
Year:2022
Photographs:Daisuke Shima
Construction:Yoshida Building Firm
Lighting Plan:BRANCH lighting design, Tatsuki Nakamura
Client:method Inc., Yu Yamada
Design Team:Koichi Futatsumata, Kana Yamamoto, Yasushi Arikawa
Planting Plan:Yuko Takaura
Sign Design:BOOTLEG, Fumikazu Ohara
Country:Japan
Text description provided by the architects. A project located in a quiet residential area in Chofu City, Tokyo. The client was attracted to this environment due to the trees planted in a green belt next to the site. One of the requests from the client was to create a residence inspired by "red soil" and "reddish brown," which contrasted with the surrounding green. Furthermore, the client wanted to use the house not only as a place to live but also as a gallery-like space that is open to the community. The house is a new hub for the client, who is a merchandise buyer and a director for design in art, and was designed to be used for various public and private activities.
The most distinctive feature of the building is the deep red color of the "bengara" used for the exterior walls. Bengara is a highly weather-resistant pigment that has long been used as a paint for Japanese houses. Rather than using the same color as the surrounding area to blend in with the environment, we intended to use a contrasting color to strengthen the significance of the architecture in this location. The reddish-brown exterior walls were then combined with a silver roof and eaves made of galvalume steel sheet. Japanese tropical plants were planted in the exterior gutters to further strengthen the contrast with the surrounding greenery.
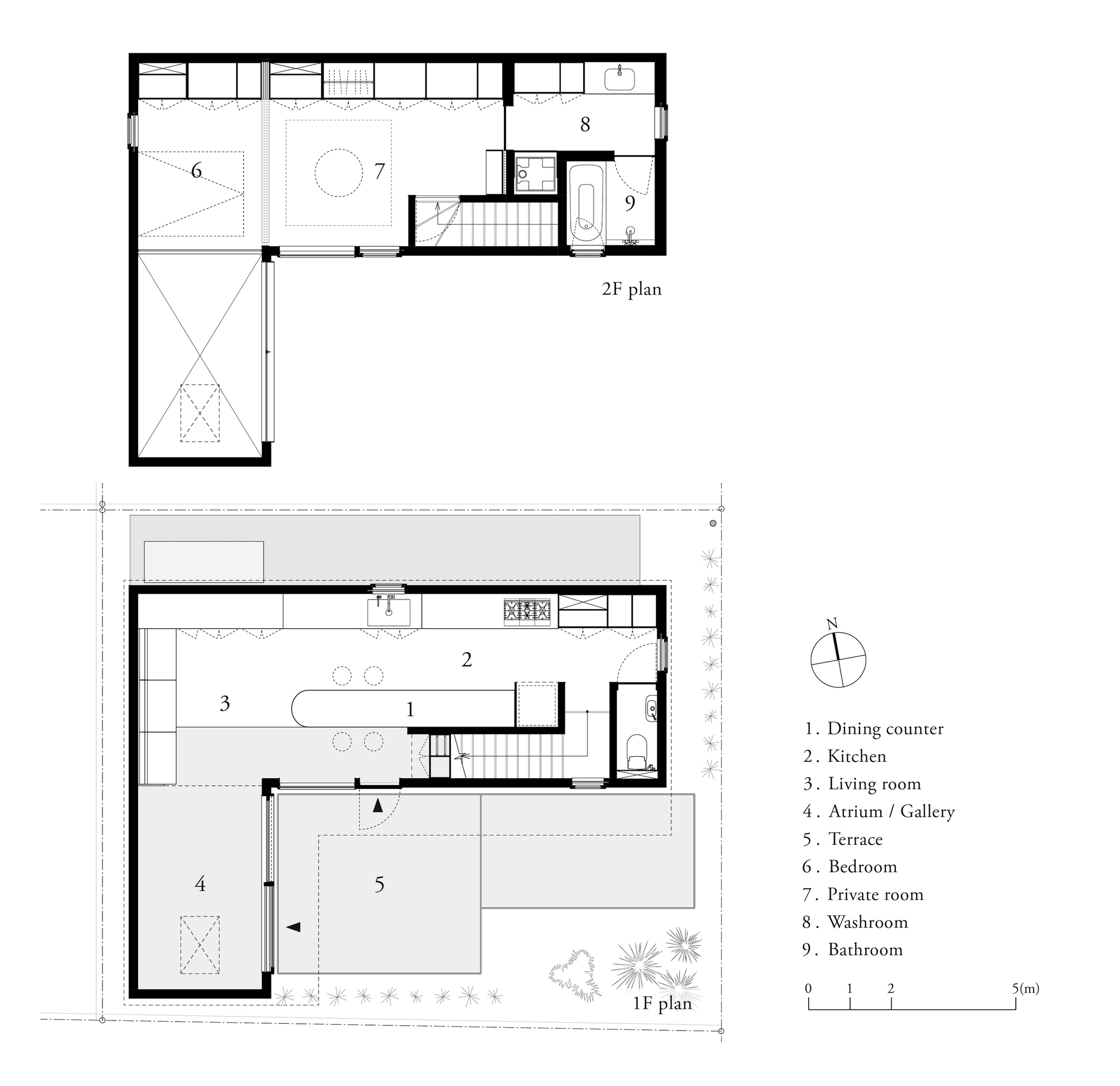
With the greenery at its side, the approach integrates with the terrace and leads continuously to a large earth floor with an atrium. The area from the entrance to the earth floor is finished with a reddish stone mixed with washed-out stone. This floor connects both the inside and the outside of the house, blurring the boundaries in a variety of situations.
The ground floor, for example, normally functions as a living and dining room but becomes a semi-public exhibition space during events. The dining counter, which is set higher than usual, flexibly changes its role from being a display stand for exhibitions to a serving counter for standing meals in conjunction with the kitchen. In addition, furniture such as counters and sofas were placed at the boundary between the earthen floor and the wooden flooring, so that people can use them without taking off their shoes. The house is further characterized by the fact that it was designed to support a wide variety of situations.
The ceiling of the earthen floor, which is a vaulted ceiling, is the place where the broad arc expression of the ”mukuri roof” is most apparent. The residents' private bedrooms on the second floor are again connected to this atrium, allowing their vision and also ventilation to circulate throughout the house. While the chairs on the first floor were designed to match the counter, a low table was originally created for the second floor, where a sense of calm was demanded. This contrasts with the first floor by emphasizing the nature of floor seating. By planning the surrounding environment, architecture, interior, and furniture in conjunction with the client's thoughts, we attempted to firmly define the house's way of being.
Project gallery
客服
消息
收藏
下载
最近

































