查看完整案例

收藏

下载
©Omkar Kotwal
每个人的心中总有一片土地,称其为故乡也好、梦土也罢,或许只是远在乡村中的一座朴素小屋,但手工制作的砖瓦和饱经风霜的木材总能唤起人们对于“根”和“源”的共鸣。家不只是一个特定的地点,还是一段承载了无数酸甜苦辣的时光。
01
House of Reclaimed Gold
OutOfTheBox I Eco-Architects
印度·马哈拉施特拉邦
©Omkar Kotwal
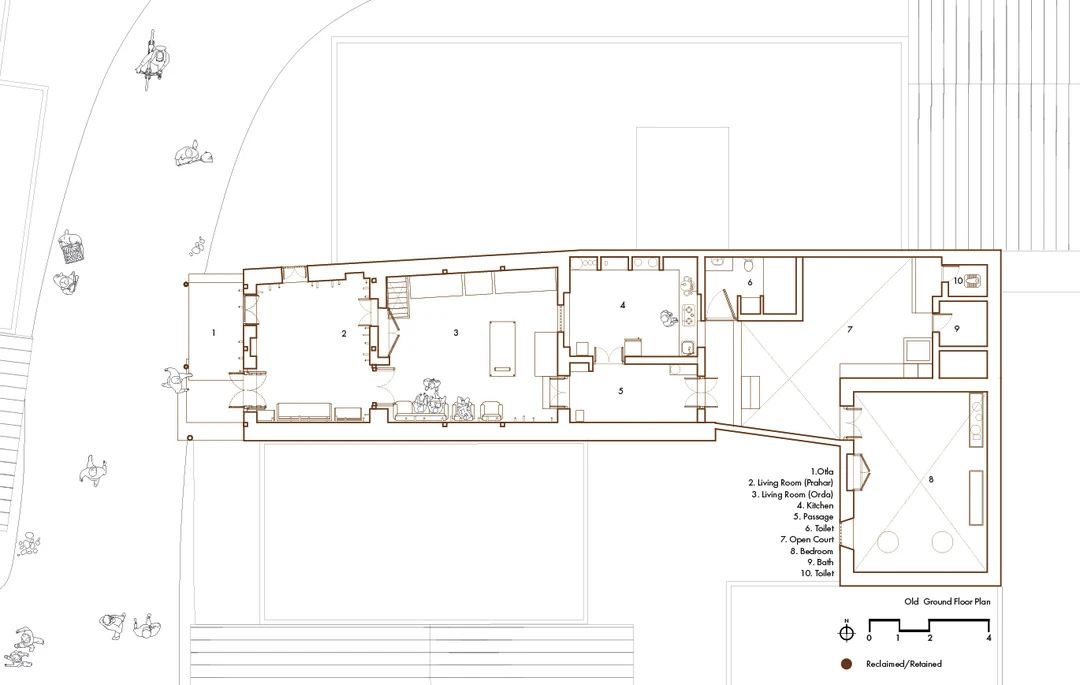
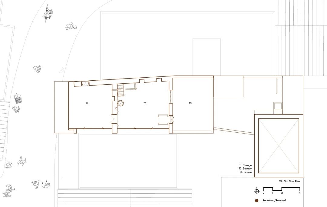
House of Reclaimed Gold位于马哈拉施特拉邦的一片乡村地块中,当地的传统住宅因不适应热带气候而逐渐被高维护成本的现代建筑所取代,OutOfTheBox I Eco-Architects以生态敏感性材料和地域性的建筑元素为核心,通过风化木材和粘土等当地拆迁回收的废料重塑具有归属感的田园居所,实现传统风格的可持续化发展。
©Omkar Kotwal
02
Hassan House
Monsoon Projects
印度·科泽科德
©Studio IKSHA
在繁华的科泽科德市内,一座以可持续性原则为指导的极简主义现代住宅和谐地融入了沿海穆斯林聚居的社区,简约的元素与对比统一的色调反映了富有凝聚力和安定感的家庭理念,为重视交流互动的业主提供了一片温暖的庇护所。
©Studio IKSHA
住宅的空间组织延续了喀拉拉邦的传统,将环抱式的内庭作为整个生活区域的核心,通过模糊内外活动空间的边界来促进自然与居所的连通性,减少人工温控设备的使用。自然光与木格栅、墙体的互动形成了戏剧性的变化,使空间成为了书写回忆与故事的平台。
©Studio IKSHA
03
Apdu Gaam nu Ghar Residence
Doro
印度·古吉拉特邦
©Stavan Bhagora、Suryan Dang、Niyati Shah
位于古吉拉特邦的乡村vemar因大规模的居民外流而导致了传统建筑与历史文脉流逝的问题,这个被称为Apdu ‘Gaam nu Ghar’ Residence的住宅旨在适应不断变化的生活模式与街道变化,同时继承建筑原初的历史特性与风格元素。
©Stavan Bhagora、Suryan Dang、Niyati Shah
更新后的空间于临街立面展示了砖材、灰泥等材料组合所形成的传统外观,黄色饰面和深灰色的基座因色彩对比而强调了过渡性空间的视觉感知,并将这一温暖的氛围延续至内部的生活空间,凭借朴素低调的细部设计诠释传统与现代和谐共生的理念。
©Stavan Bhagora、Suryan Dang、Niyati Shah
04
Brick House
ShoulderTap
印度·班加罗尔
©Aparna Varma, Syam Sreesylam
这座位于班加罗尔的砖砌住宅融合了现代设计与材料的朴素质感,在建筑物密集的城市环境内打造了一片采光良好的私密生活区。住宅东面是一个用石块围合的池塘,由一旁的入口进入内部,便可抵达餐厨空间和双层高的客厅。
©Aparna Varma, Syam Sreesylam
卧室等对于私密性要求较高的空间集中在住宅上层,并以一个精心布置的休息区为过渡,平衡了空间的独立性与连通性。整个设计的精华部分在于南立面的镂空砖墙设计,斑驳的光影和通风体系战略性地满足了能耗水平与维护难度,实现空间的永续性发展。
©Aparna Varma, Syam Sreesylam
客服
消息
收藏
下载
最近















































































