查看完整案例

收藏

下载

翻译
Architects:DTR_studio
Area:534m²
City:Estepona
Country:Spain
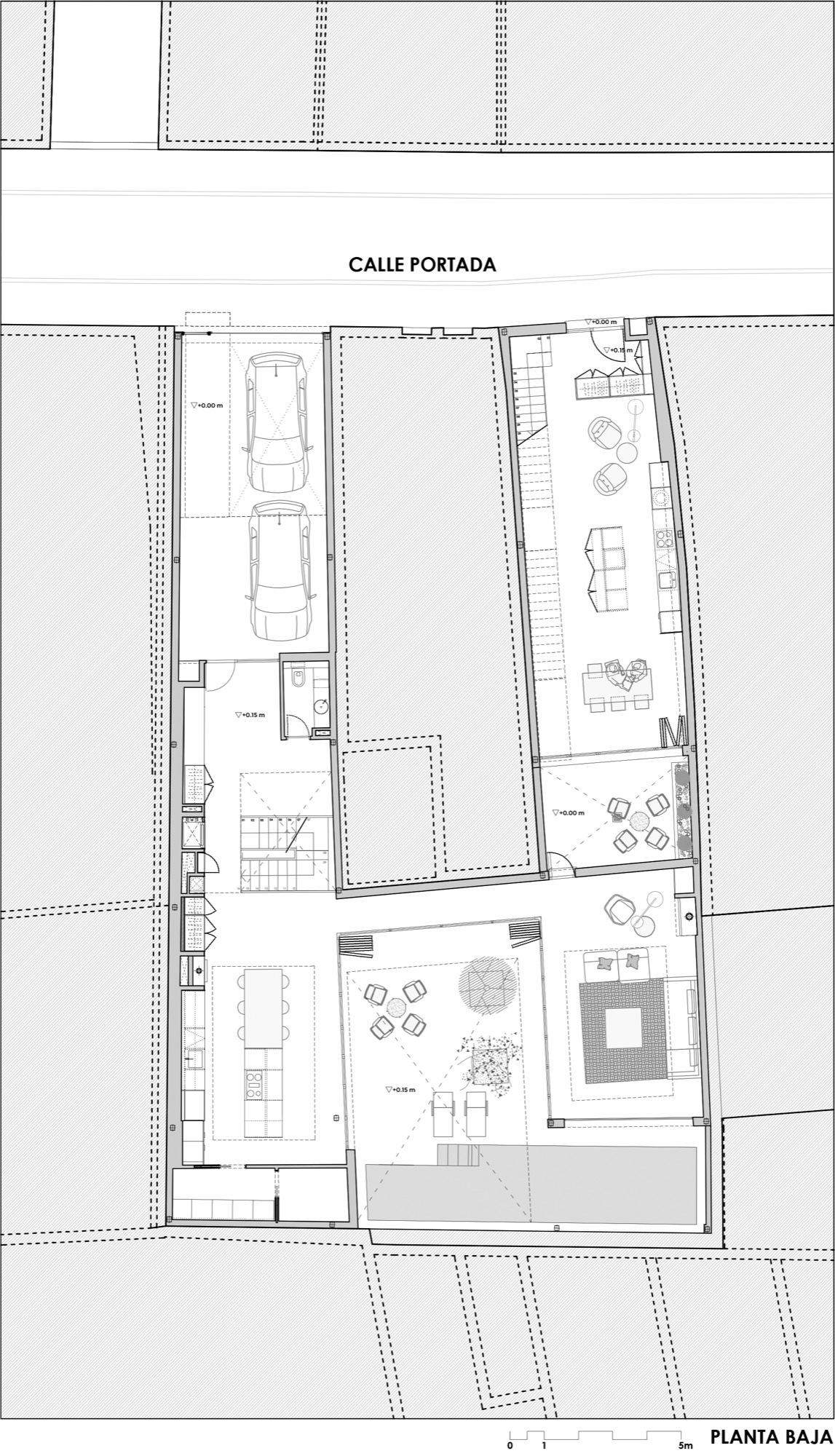
The plot we found had a U shape, leaving an existing house in the middle, and forming two independent facades facing the same street. This allowed us to divide the housing program into two well-differentiated units: the main house on one side and a guest apartment on the other.
The street to which both facades open has no interest, so the facades are proposed that integrate into the environment, without standing out, giving all the prominence to the interior.
The project is organized around the interior patios and the roof. It is a project, inspired by Arab architecture, that needs to be lived, inhabited, and walked. The use of light, water, and vegetation will be the tools that give meaning to the project.
Blurring the limits between the inside and the outside, taking advantage of the mild climate of the Costa del Sol, and reaffirming the commitment to Mediterranean vernacular architecture, will be the axes of the intervention.
On the other hand, different strategies will be established to use natural light: patios, stairs-skylights, and double heights... Any excuse is a good one to tame light and turn it into the true protagonist of the project. The house will break down depending on the orientation to allow passage of sunlight depending on the direction.
The materiality of the project tries to use “sincere finishing”: polished concrete floors that give continuity to all areas, wood paneling taking advantage of the large storage lines, the use of terracotta as a differentiating element, and the ceiling as a fifth façade.
Project gallery
客服
消息
收藏
下载
最近









































