查看完整案例

收藏

下载

翻译
Architects:R3C Diseño y Construcción
Area:980m²
Year:2021
Photographs:Bicubik
Manufacturers:FV,Graiman,LSD
Architect:Pedro Romero Castillo
Constructors:Jorge Romero, Jacobo Romero
Structural Design:Diego Lara
Lighting Design:Jorge Piña
City:Cumbaya
Country:Ecuador
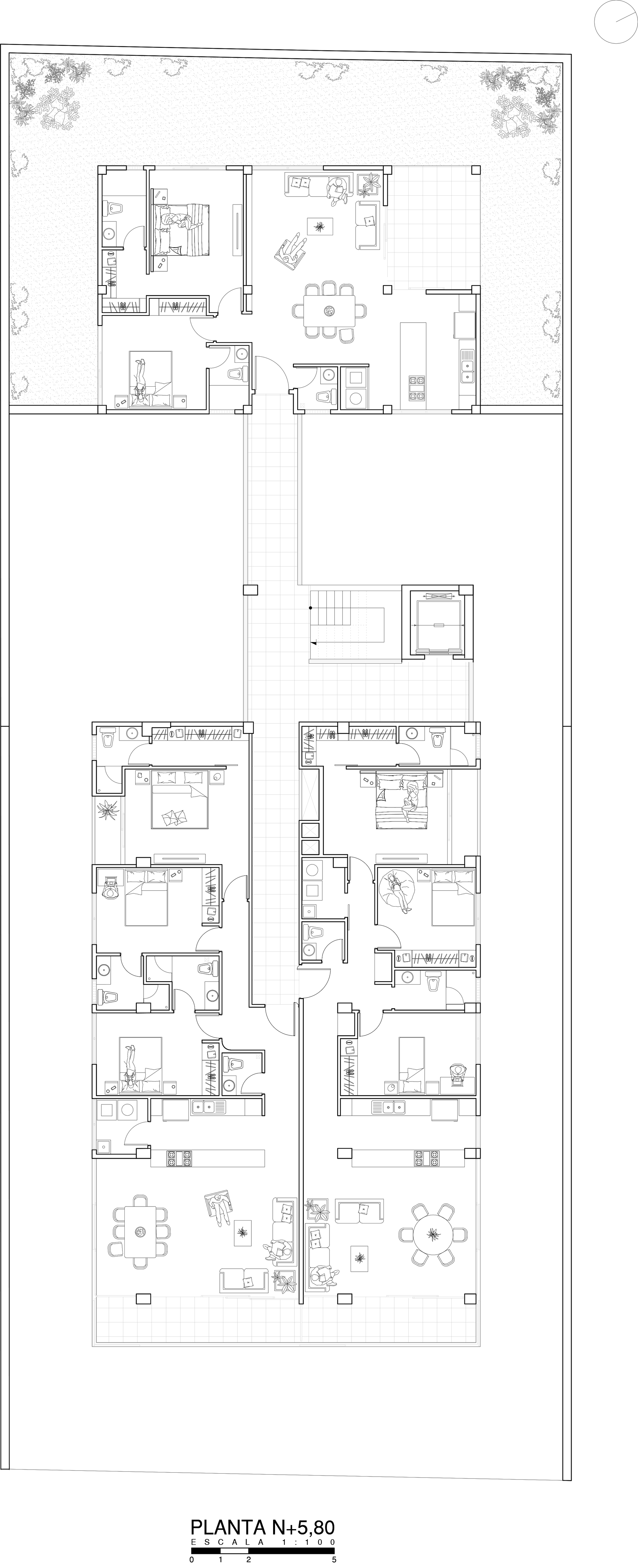
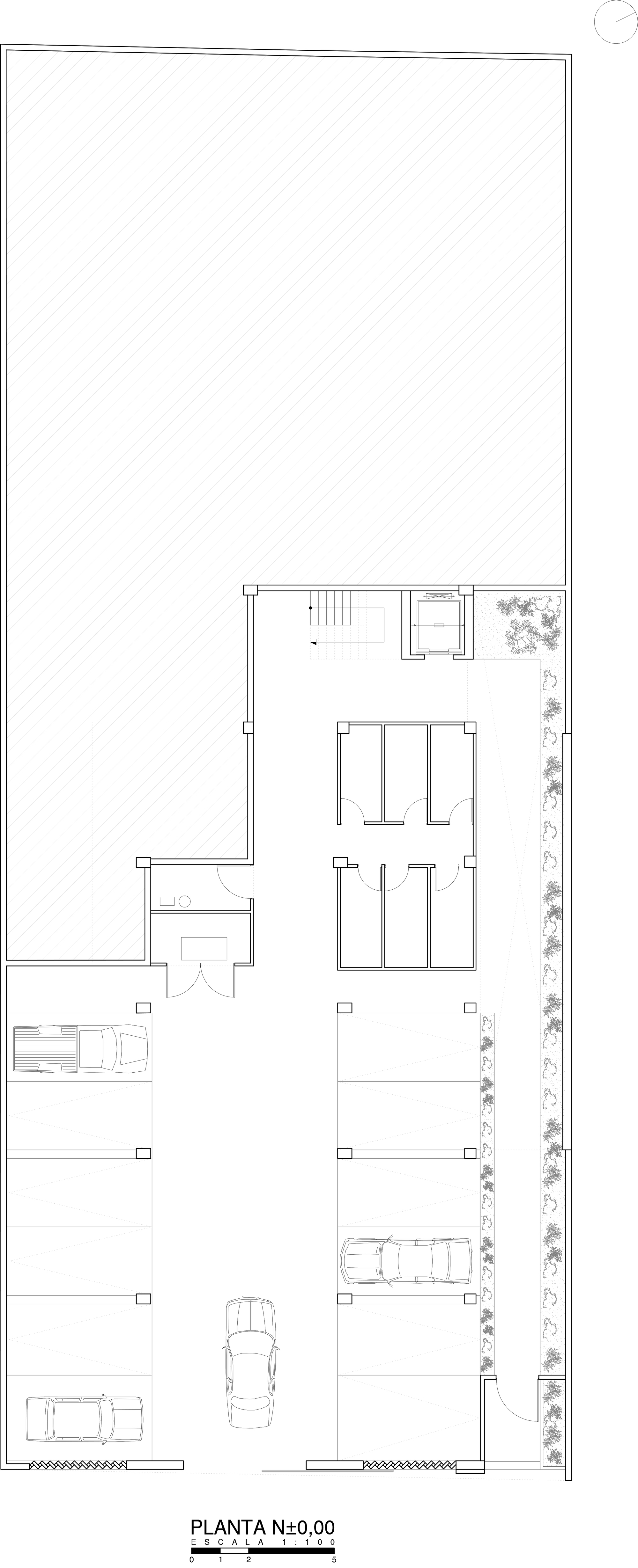
Text description provided by the architects. The project is located in Cumbayá, a neighborhood that has suffered a great demographic expansion due to the growth of the city towards the valleys. The lot has a steep slope and is located in a developing suburban area. For this reason, it was decided to divide the project into two blocks, separated by an open intermediate space that helps maintain the idea of an isolated house. Three platforms are generated that follow the natural topography of the terrain. The living blocks are placed on the front and rear platforms, while the vertical circulation and the common gardens are located on the intermediate platform, which generates an expansion between both blocks and creates a void that articulates the entire project. In this void, the communal circulation is placed, which is totally open and functions as a place for people to meet.
On the terrace of the front block, there is a complementary communal area that functions as a place to stay and contemplate the valley and the Ilaló hill. The openings in the façade mainly seek the morning sun and the view of the valley, for which the eastern façade has floor-to-ceiling windows while the rest maintain the same modulation and proportion, but are more solid to maintain privacy and to generate contrast.
The entire project is conceived with concrete, brick and stone. Concrete is used throughout the main structure of the building, raised almost completely with reinforced concrete frames and lightened slabs. Brick works as an envelope for the entire building. This material generates texture and color towards the street, becoming the face of architecture. Stacked stone is the raw material that generates most of the project's retaining walls. All the materials, towards the outside, are exposed with their original shape and color, integrating themselves with the place and with the local construction tradition.
Project gallery
客服
消息
收藏
下载
最近

































