查看完整案例

收藏

下载

翻译
Architects:Pablo Senmartin
Area:450m²
Year:2022
Photographs:Andrés Domínguez
Lead Architects:quipo de Diseño: Giovanna Rimoldi, Suyay Baigorri, Valentin Vodanovic,Alfaro Guadalupe, Giordano Agostina, Mansilla Ariana, Nieva Florencia, Oviedo Macarena.
Clients:Alejandro Dragotto, Gabriela Puchetta
Structural Advisor:Andrés Mole
City:La Calera
Country:Argentina
The hilly environment provides stunning views of the city, with steep slopes that were strong conditioning factors at the time of designing and building, seeking a balance of caring for the environmental value of the site.
The house is intended for an assembled family, with several members who transit and occupy the house permanently or temporarily, generating a broad and diverse program that also solves the distance to the city, which includes large areas of flexible and integrated social use, resting areas, recreation and leisure areas, work and study areas, health and comfort, services and storage.
The lot is 20 m x 30 m, with a difference in level from the street to the bottom of 7 m and the presence of several native trees on the front of the lot. The trees were preserved with the idea of providing the house with protection and environmental quality as well as a decrease in its visual impact. In this way, the house occupies the center of the lot, through a large block and the stacking of activities.
Through the movement of the soil, two esplanades were generated, one for access on which the house floats and the other that links the main gallery, patio and pool.
An idea of a pure and solid volume of concrete is developed, which through the action of movement and offset, mutates into two superimposed blocks, each one with different programmatic packages. This superimposition allows the appearance of intermediate spaces that protect the fronts of the facades and enhance the interior-exterior interaction, generating galleries, terraces, balconies, etc. both in the facade and in the relationship with the patio. These blocks are then emptied on the inside, allowing fluid and integrating spaces of different heights.
From the street at the pedestrian level, a parking area and a semi-buried wine cellar are generated, in a low space completely made of exposed concrete where we find the vertical circulation that articulates the three levels of the house.
The main entrance to the house is raised, which allows it to find its own level on the first floor, bridging the gap with a floating concrete staircase that forms a walkway under the trees.
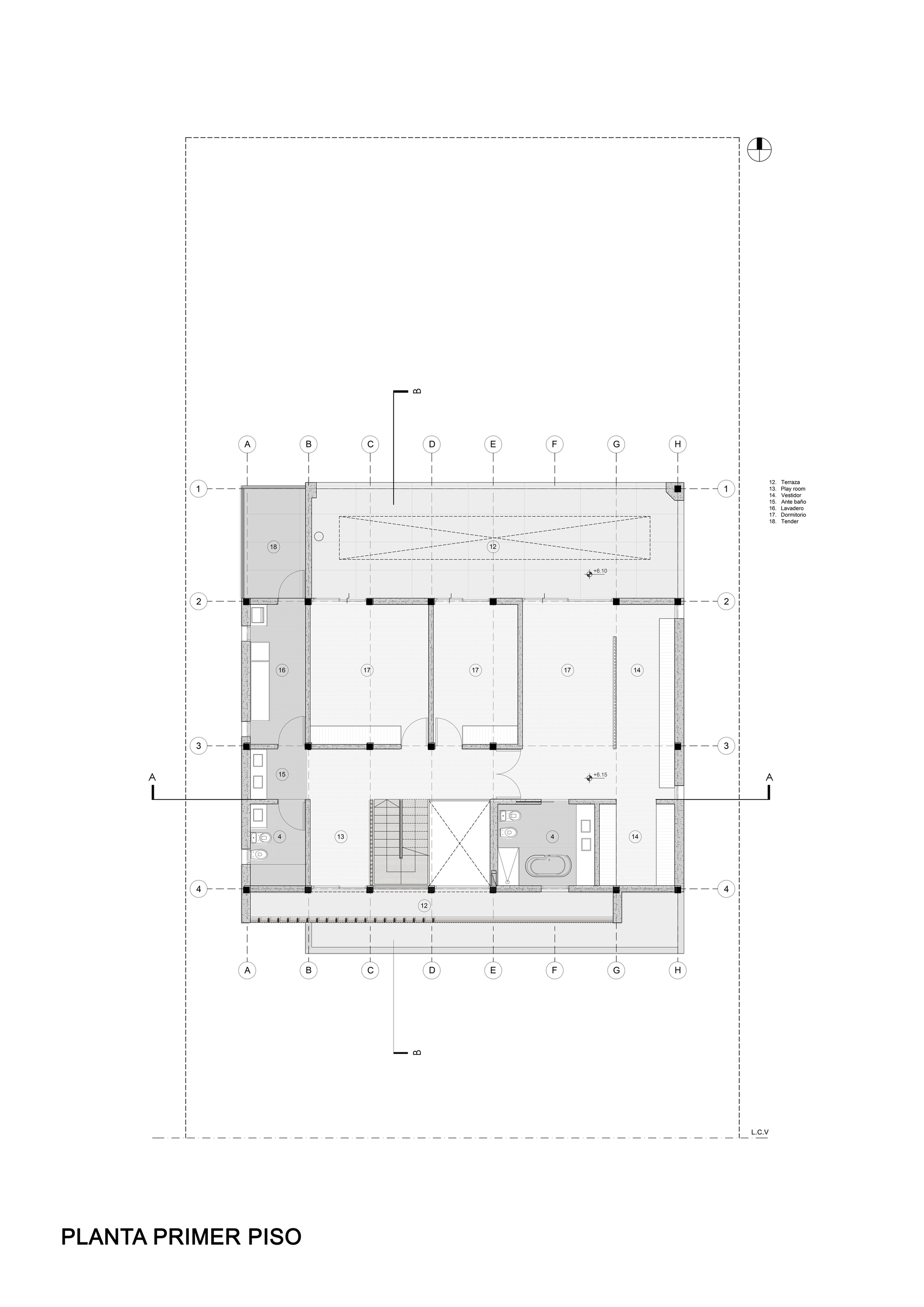
A low, dim and underground space leads to the triple height of the next floor, over the entrance hall and living room, with great entrances of natural light and transparencies obtained in the front and the back that allow continuous visuals towards the neighborhood and towards the patio provided through vertical wooden filters. In this first block common use programs are developed, as well as a law firm and the main service areas. The dining room develops longitudinally in relation to an integrated kitchen, next to a pantry parallel to a rear gallery that overlooks the patio and the barbecue area. In the second block and level we can find programs of a more private and individual nature, two bedrooms with a large cantilevered terrace over the pool and an en-suite bedroom that contains a dressing room and a bathroom for private use for the couple. A playroom and a study complete the program.
This area of La Calera has historically been a producer of lime and cement for the construction of the city, hence the chosen material responds to this local production.
The house is developed as an independent structure block of reinforced concrete, which allows large overhangs through inverted reinforced concrete beams. The enclosing walls are covered on the inside and outside by a 5cm plate of reinforced concrete with ceramic brick, providing a monolithic image with good thermal performance. These material conditions are complemented by wooden filters on the facades, with openings located in a way that allows cross ventilation, and native vegetation that protects from extreme weather depending on the season of the year, consolidating a unique and natural atmosphere of the house.
Project gallery
客服
消息
收藏
下载
最近










































