查看完整案例

收藏

下载

翻译
Architects:Steve Burke
Area:2700ft²
Year:2022
Photographs:F22 Photography
Manufacturers:AutoDesk,Cosentino,Fioranese,Marset,NILAN,Nordan,Quooker,Trunk
Lighting Design:Bushell Interiors
Main Contractor:Jerry Fitzmaurice Developments
Plumbing Contractor:Seamus Moynihan
Electrical Contractor:G Moriarity and Sons Electrical
Architect:Steve Burke
Architectural Technician:Mike Burke
Architectural Technologist:Sean Colley
Interior Design:Steve Burke
Structural & Civil Engineer:Malachy Walsh & Partners
Joinery Contractor:M.M.S. Reg. Carpenters Ltd (Mark Corkery)
Country:Ireland
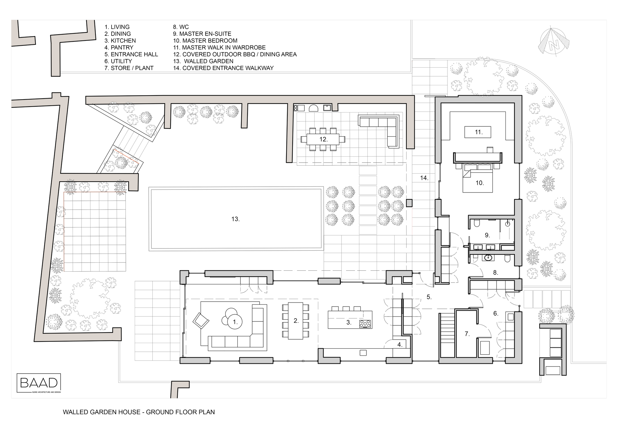
Text description provided by the architects. The defining feature of the Walled Garden House has in fact nothing to do with the house itself but with what surrounds it. The site is populated with the ruins of multiple old stone sheds and outhouses. These ruins were retained and restored with a considerate touch to retain the history of the site and form the backdrop of the new building insertion whose purpose was to celebrate these walls.
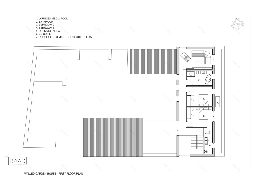
This new insertion manifests as two distinct “A” framed volumes, one of these is a 2-story volume where the upper floor steps out from the lower floor to create a covered external entrance walkway and the other is a simpler single-story volume. These 2 volumes are connected with a flat-roofed single-story element that gives the 2 distinct structures space to stand independently of one another and allow light to penetrate deep into the walled garden. This deliberate breakdown of a larger structure into smaller distinct volumes helps to reduce the scale of the building to reflect the scale of the various existing surrounding stone structures. In the plan, the new insertion is a mirror “L” shape of the existing stone ruins to create a sheltered walled garden between the new and old.
The building's materials are a celebration of a rural vernacular craft and tactility. Stone, corrugated metal, and tyrolean plaster sit harmoniously together to form a sharp and crisp modern interpretation of a traditional agricultural shed. The stone cladding used on the lower section of the new building is reclaimed from the fallen stone walls on site. It is crafted in a modern manner to highlight the contemporary addition to the site while also ensuring cohesion with the existing stone walls.
Atop this stone cladding sits a 900mm high tactile tyrolean plaster band that runs around the entire house, tying the different volumes and materials of the house together. A black corrugated metal clads the upper story of the 2-story volume while also cladding the roof of both the single and 2-story volumes. The crisp detailing of the corrugated metal elevates it above its typical association with agricultural buildings while still retaining a connection to the site's past. The dark reflective surfaces of the corrugated metal also recede visually in deference to the surroundings.
The house, which has been designed with a modern take on traditional vernacular skin, is built with very modern methods of construction (MMC) to the highest sustainable specification. The house is built using prefabricated panels of light gauge metal steel, it is super insulated, it has triple glazed windows, a mechanical heat recovery system, an external air source heat pump, it is extremely airtight, and has roof-mounted PV panels. The house achieved an Irish Building Energy Rating (BER) of A1, the highest possible grade.
Project gallery
客服
消息
收藏
下载
最近


































