查看完整案例

收藏

下载

翻译
Architects:SBSA ⎮ SANDRI BARBARA SMANIOTTO ANDREA ARCHITETTI ASSOCIATI
Area:170m²
Year:2022
Photographs:Gustav Willeit
Lead Architects:Andrea Smaniotto, Barbara Sandri
Engineering:EPPLUS, Marco Filippi - EPPLUS
City:Santo Stefano di Cadore
Country:Italy
Concept. The refurbishment project transforms the existing building into a holiday home for a family that loves mountains. The recovery of this building called tabià (once used as a stable and barn) becomes an opportunity for reinventing, in a contemporary way, a building strongly linked to local agricultural tradition. Inserted in a sloping plot, in the second lane with respect to the roadside and the buildings facing it, the tabià develops into 3 levels: one partially underground with a hybrid structure in stone and concrete; an intermediate one with a structure in wooden pillars and beams, where there is also the main entrance; and an attic projecting cantilevered on all four sides.
In order to respect the character of the property, a clean and contemporary approach was taken to the renovation. In line with the desire to maintain the fragile balance and the coherence between the vernacular tradition and the contemporary character, details have been reworked which tend to give a more abstract and neutral character of the whole.
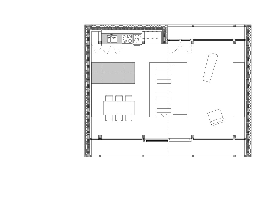
The cozy and spacious kitchen/living room is located in the heart of the house and benefits from height-glazed floor-to-ceiling windows that face the mountains to the south and the forest to the north. The reinterpretation of traditional elements has allowed us to find a new language, a new coherent aesthetic linked to the local tradition. A project that is able to interact with the environment and tradition.
Project gallery
客服
消息
收藏
下载
最近






























