查看完整案例

收藏

下载

翻译
Architects:B.E Architecture
Year:2017
Photographs:Gavin Green
Interior Designers:B.E Architecture
Landscape Design:B.E Architecture
Landscape Contractors:Landspace Constructions
Engineering:D&A Consulting and ResCom Consulting Engineers
City:Albert Park
Country:Australia
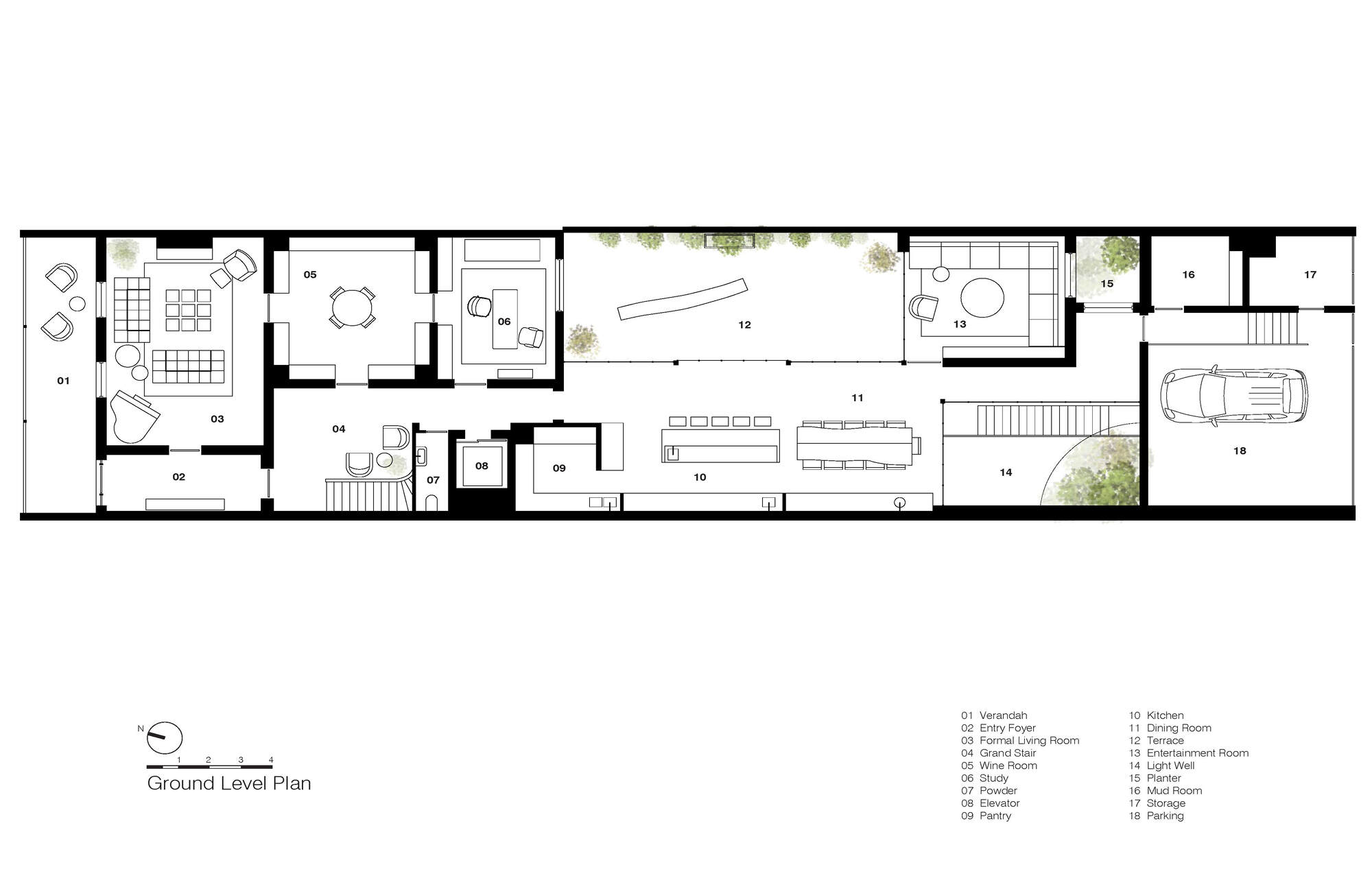
Text description provided by the architects. As a modern renaissance home, the St Vincents Place Residence is a reinterpretation of classical references with a modern sensibility. The client, as a patron, put his belief in architecture, artists, and artisans to create an environment that goes beyond surface treatments by inscribing contemplative experiences into the physical form.
The new extension is a cultural bridge between historical significance and modern progress behind a heritage façade. The design response examines the architecture and design throughout history. It recreates original elements that expand upon qualities of substance, inspired by those that are proven to span the test of time. Although the majority of the project is a new building, it is not immediately recognizable as such.
Details typical of older architecture were reinterpreted in the front section of the original building. These details included curved cornices, arched doors, and custom steel windows, none of which are typical in modern construction methodologies but feel at ease within the Victorian frontage. Integral to the details is an authentic demonstration of an exceptional level of craftsmanship.
Even the smallest of details, like the handmade dovetail joints of the timber skirting with timber, plugged fixing are deserving of a moment’s reflection. The modern counterpart in the rear extension uses in-situ concrete, terrazzo-like stone floors, painted timber ceilings, and bluestone walls to create a point of difference from the front. In place of stark minimalism, the classical details are exchanged for rich textures continuing the hand-hewn character throughout the house.
The substantial art collection curated by the architect explores topics of philosophy, literature, religion, and even science, which lead the way to intellectual discourse. These overtures are written into the walls in the form of the three-story light installation ‘Heaven is a Place Where Nothing Ever Happens by artist Nathan Coley, or the niche installation of the wax sculpture Romeu ‘My Deer’ by artist Berlinde De Bruyckere.
As carefully curated as the art collection, is the interior of the house. An eclectic mix covering diverse cultural references across many eras. The library is positioned around knowledge, encasing collections of books on expansive shelves. The centerpiece of this room is a coffee table designed and made for the architect from a cubic meter of Huon pine.
Unique vintage pieces sourced for the job from around the world have a direct historical reference. Individual pieces add to the dialogue of the space, each with its own interesting story about where it comes from or how it was made. Many of the pieces are bespoke commissions designed by B.E Architecture and commissioned expressly for this project, pushing the artisanal character of the architectural detailing into the furniture.
Combining history, art, and culture, the St Vincents Place Residence is ultimately a place of rebirth. Whilst simultaneously reviving an exceptional period home, the residence is a place of renewal that elevates the quality of life for the client.
Project gallery
客服
消息
收藏
下载
最近





























