查看完整案例

收藏

下载

翻译
Architects:Porto Neves Arquitetura
Area:325m²
Year:2022
Photographs:Walter Dias
Manufacturers:ADROALDO TAPETES,Ceramicas Portinari,DONA MADEIRA,Decortiles,Eliane,FINESTRA CORTINAS,FINGER,Finni Interiores,Franccino,Ibratin,LIGHT DESIGN RECIFE,MANUPIÁ ARTE,MR. SONO COLCHÕES,MUNDOECO,Marmorart,NOVO PROJETO,Portobello
Lead Architect:Adriana Porto e Luciana Neves
Collaborators:SOFIA CAVALCANTI, DANIELA ALBUQUERQUE, JAQUELINE MIRANDA, THATIANE RODRIGUES, LAURA SANTOS
Collaborating Interns :ISABELLY SALES, EDUARDA ALBUQUERQUE, REBECA SANTOIANNI, MARIANA PIQUET, SIMON PRESBITERO
Construction:SG CONSTRUÇÕES
Glass Work:VIDRO & CIA PE
Wooden Frames:GRUPO FECIMAL
Luminotechnical Design:FF ILUMINAÇÃO
Landscape:NATIFLORA PAISAGISMO
City:Maragogi
Country:Brazil
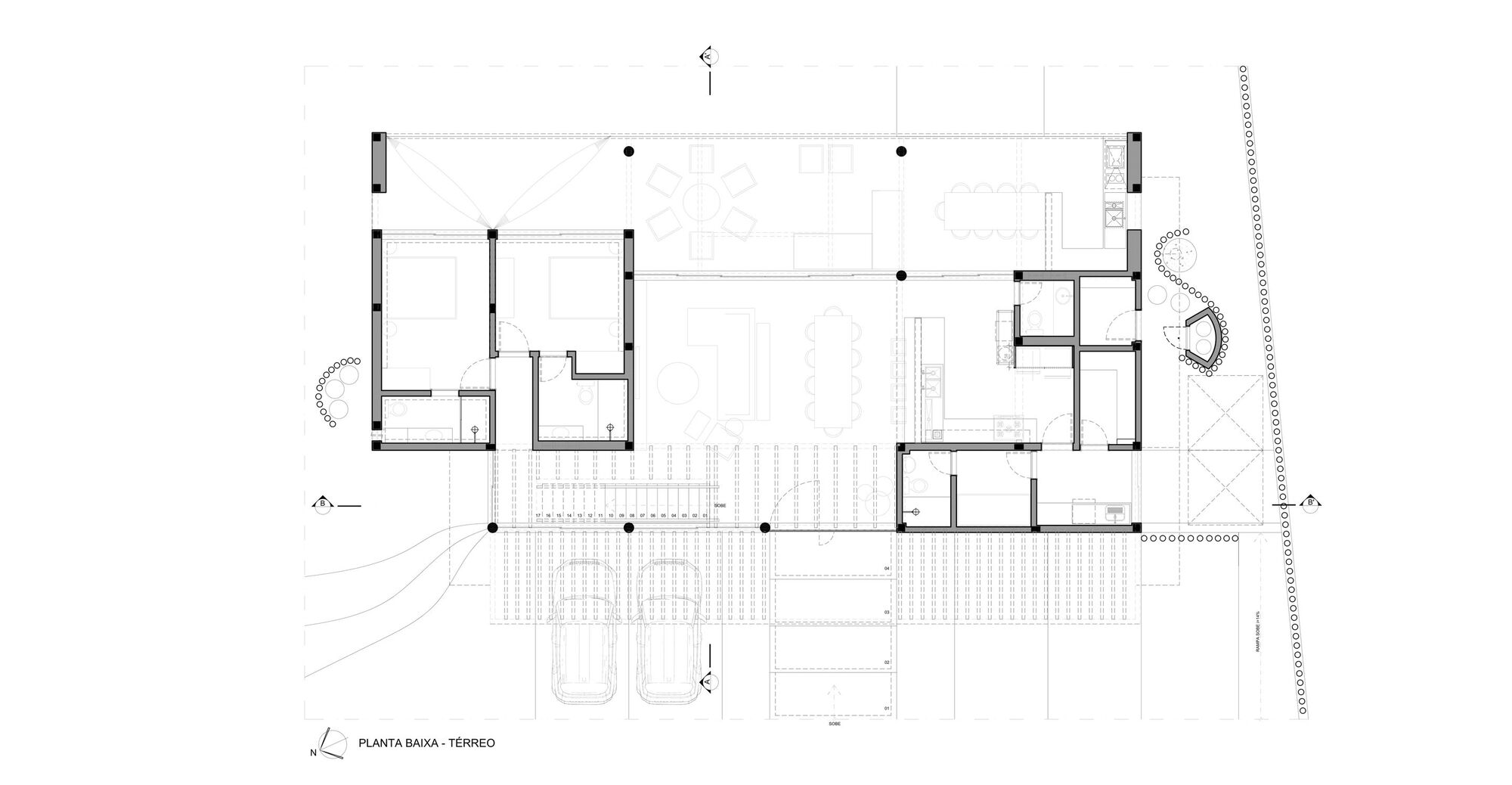
Text description provided by the architects. In a seafront located lot, at the Maragogi-AL beach, we design the architecture and interiors of this beach house with five suites, that open themselves generously to the landscape. Conceived in a mixed structure of metallic pillars and beams, with concrete slabs, and covering in wood, we explored the spatiality provided by these structural systems, with great gaps and fluid and integrated spaces.
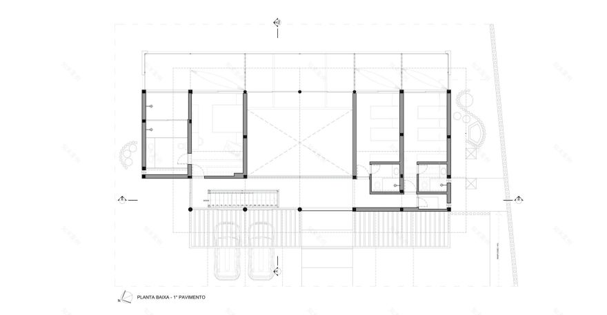
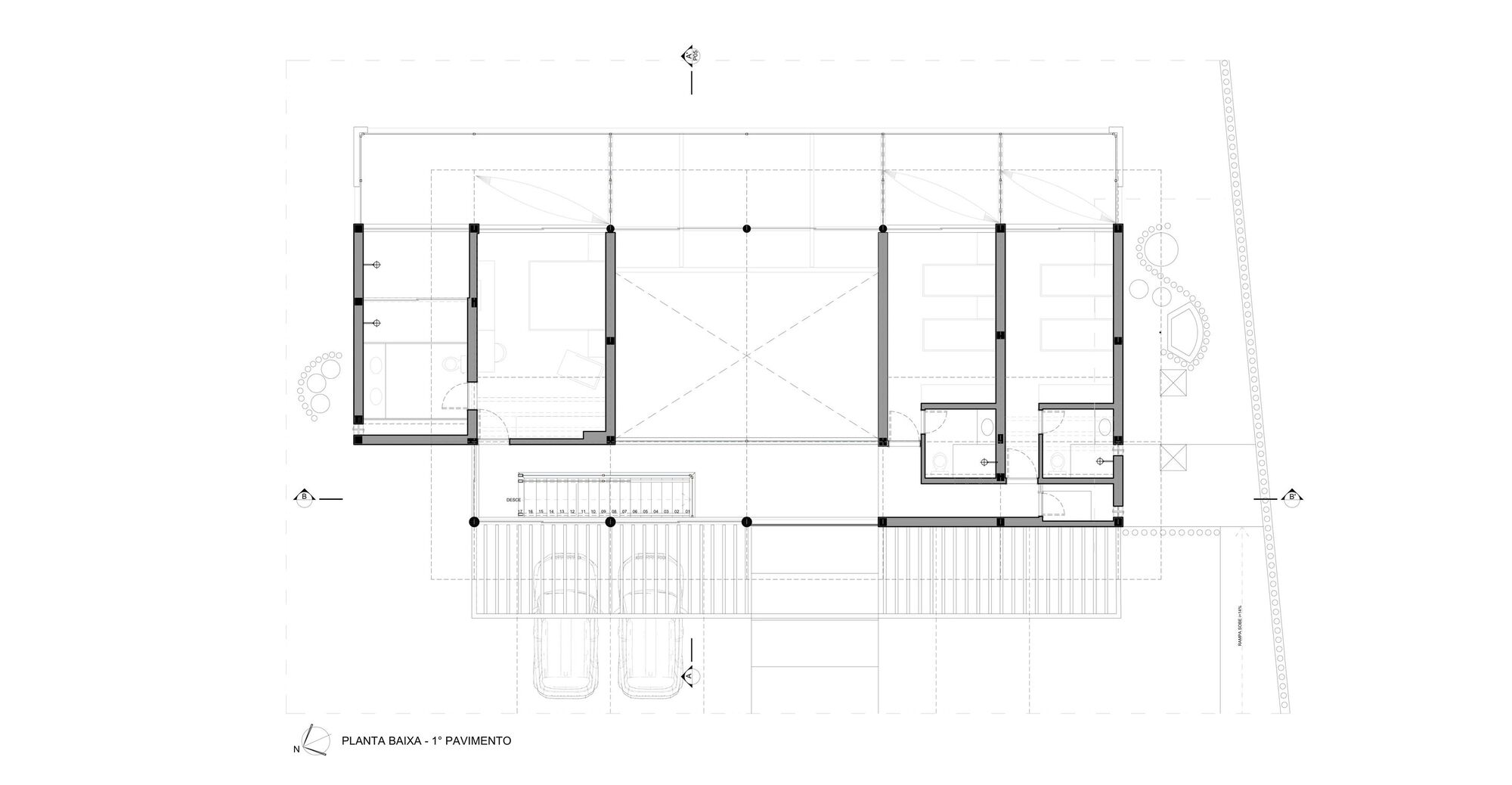
On the west facade, an extensive pergola with vegetation (arbor) shelters the cars and conducts to the entrance, from where the living room, kitchen, and integrated balcony are unfolded, and next, the viewing of the sea. Two of the five suites are on the ground floor, and three of them are on the first floor, being that the main suite is separated from the two others on the first floor, which is interconnected by a wooden floor walkway. That enables the walking through the central void, a space with the double right foot, from where it’s possible to appreciate from the floor to the wooden roof, with plump eucalyptus scissors, and a view to the sea, always present.
The stairs, also in solid wood, conduct from the wooden floor walkway to the ground floor, lightly and subtly, as if the wooden floor crumbles into steps. All of the frontal facades have huge glass cloths, unveiling the sea, which all the rooms have a view of, including the generous bathroom of the main suite.
The terrace, which occupies all the frontal extent of the house, is subdivided into a relaxation area with nets (in front of the ground floor suites), living areas integrated into the living room, and a gourmet area integrated into the kitchen and the pool through the wooden deck that also conducts to the exit that leads to the sea.
The service rooms are turned to the side of the house, facing the wall, and are protected by a eucalyptus fence. The chosen coating materials allude to the sea colors and burnt cement, searching for a relaxing mood.
The furniture design with open closets in the bedrooms searches for practicality and lightness, beyond the snuggle complemented by the lighting project. The great tables, sofas, and benches in solid wood on the terraces and bathrooms, alludes to the rusticity and simplicity of the beach mood.
Project gallery
客服
消息
收藏
下载
最近





































