查看完整案例

收藏

下载

翻译
Architects:BLDUS
Area:250ft²
Year:2021
Photographs:Michael Vahrenwald
Manufacturers:Gutter Supply,Riverhead Building Supply
Architecture:Jack Becker
Construction:Andrew Linn
Program / Use / Building Function:Screened porch / renovation
Country:United States
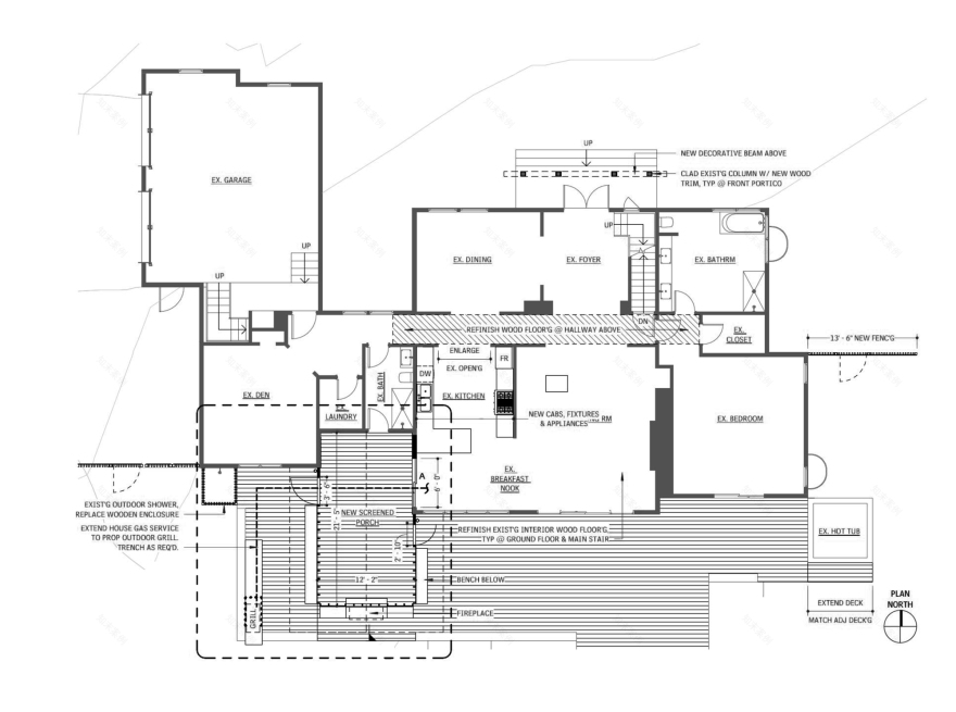
Text description provided by the architects. Swampy Hollow is a project of entrances, reimagining the front and the rear of an existing 1990’s wooded home. At the front entry, simple 6x6 wood columns and a chunky 6x12 beam replace outdated decorative columns. At the rear, a small screened porch addition is a lofty but cozy structure that nestles into the complicated roof line by rhyming with the existing main gable of the house.
The extended eaves cover a wrap-around bench and food prep counter, and the eaves are lit at night to glow on the soft, warm textures of the wood. The structure of the screened porch walls is made entirely of 2x4s, creating screen walls that mirror the rhythm of the surrounding pine forest and contrast with the heavy roof made of 2x12s. These new wood entrances consider, contrast, and elevate the traditional conventional formal language of the existing home.
The screened porch connects the updated kitchen and breakfast nook with the new outdoor cooking station, creating the feeling of a single extensive and interwoven cooking and eating space. A ventless hearth anchors the far end of the space, along with small heaters and fans built into the ceiling; together, they keep the temperature comfortable beyond the shoulder seasons. A raised skylight punctuates the small, flat portion of the roof that fills the gap between the new gable and the existing pitches.
The project aims to provide a more generous and utilitarian outdoor space, complementing the already inviting pool. The simple replacement of the columns at the front entrance hints toward the more extensive reworking of the rear. The exclusively wood material palette, including the cedar shingles, show how sustainable, renewable bio-based materials can co-exist with and improve upon the traditional 1990s builder-grade house.
Project gallery
客服
消息
收藏
下载
最近



























