查看完整案例

收藏

下载

翻译
Architects:3dor Concepts
Area:270m²
Year:2022
Photographs:Running Studios
Manufacturers:Hybec,Jaquar,Yale
Lead Architects:Ahmad Thaneem Abdul Majeed, Muhammed Jiyad, Muhammed Naseem
Structural Engineer:Deframez
Contractor:CV ASSOCIATES
Site Supervision:Rahul Venugopal
Detailed Drawings:Thejas V K
Landscape:Abid Noori
Carpenter:Vijeesh, Damodharan
City:Thamarassery
Country:India
‘Live in the lap of nature’. Every human mind wishes for it. We, architects at 3dor concepts were shown a site literally in nature's lap, in the foothills of lush western ghats in north Kerala. The site was also close to the popular hill station Wayanad. The young client Binil Thomas wanted a single-storeyed four-bed house. He is a management professional working mostly in big Indian cities and demands a peaceful space in the same piece of land where he spent his childhood living with his parents and siblings. His father was a successful farmer and they had already planted different kinds of plants already on-site.
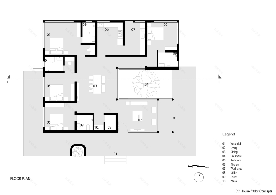
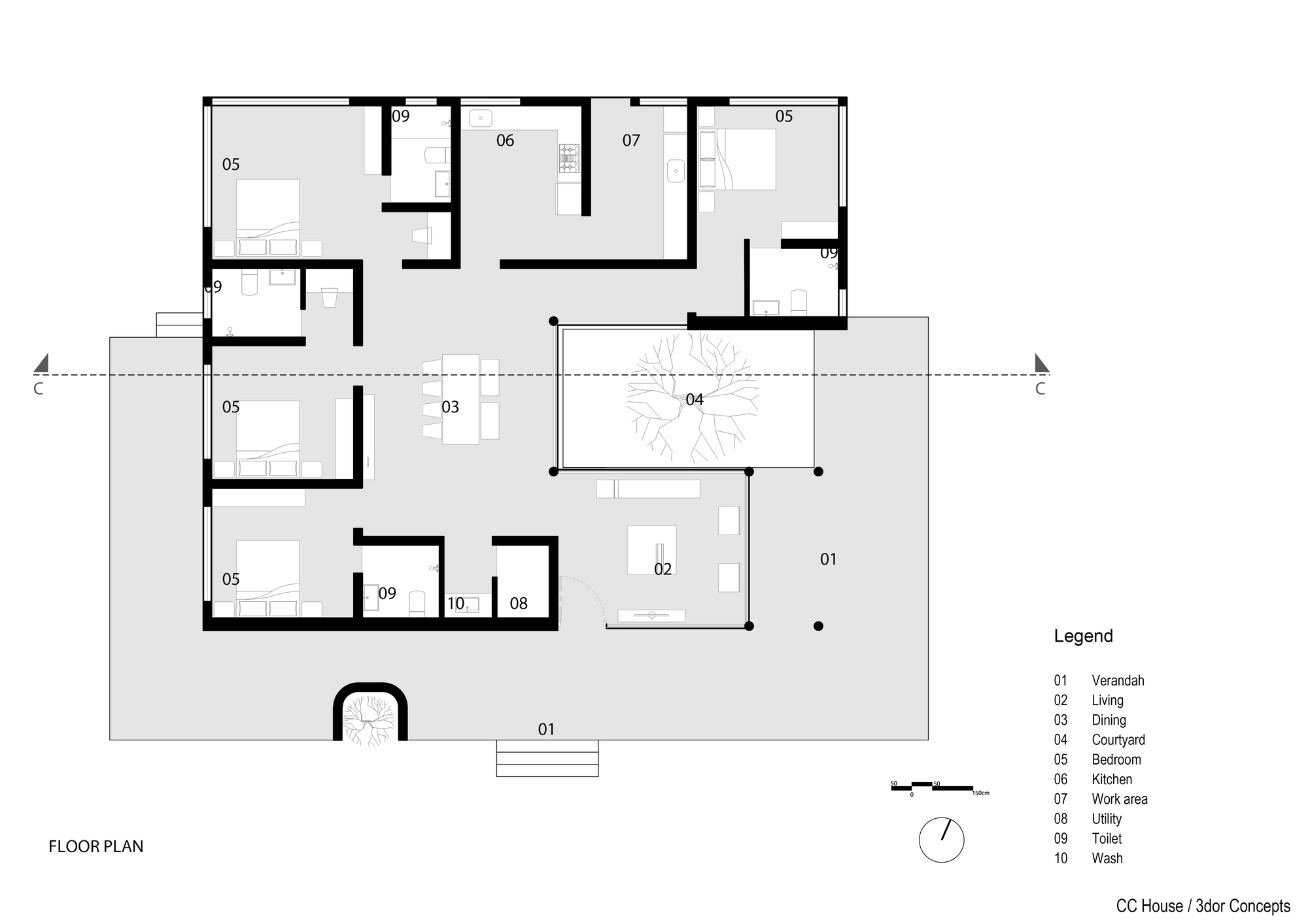
Hence the design should be more justified to the site. In both ways, the building should respect the site as much as the ambiance of the site should be exploited in the interiors. Since we stick to this approach, we kept the form as much as simple yet gave a unique feature, which we call a signature. The building texture is generally dark which matches the tonality of the entire setting. Two asymmetric c shapes mirror each other with reference to a tree as a focal point. This focal point is positioned where the walkway to the site meets the building.
The entire residence is planned around an open courtyard and eight feet wide sit-out surrounding the rooms on three sides and acts as a perfect transition between indoors and outdoors. Transparency is kept at a maximum level for semi-private spaces whereas all four bedrooms are in moderate transparency considering privacy.
Rubble masonry, dark textured concrete, grey floor tile, and glass windows with wooden frames are the key materials in the palette. Rubble stones were widely available in quarries around.
Interior design is also kept minimal yet essential elements such as furniture are thoughtfully designed. Ceiling cement plaster is exposed in interiors. It matches well with the grey textured tile flooring. Living rooms have three sides of the glass wall to appreciate the panoramic view of lush greenery around the space. A holy cross-shaped light is integrated into the window frame opposite the main entrance. A thin metal bench inspired by elevation design is the main attraction here. In the dining room, a dining table is built in wood contrasting floor and ceiling textures. An artistic wall rack and an engraved painting on the wall are the two art pieces here. bedrooms are simple with minor detailing in furniture.
Project gallery
客服
消息
收藏
下载
最近






























