查看完整案例

收藏

下载

翻译
Architects:VSP Architects
Area:2600ft²
Year:2021
Photographs:Turtle Arts Photography
Manufacturers:Hafele,Jaquar,Tostem Aluminium
Lead Architects:Vipin Prabhu, Sruthi Bijunath
Structural Consultant:Hashim K Abdul Azeez
City:Kochi
Country:India
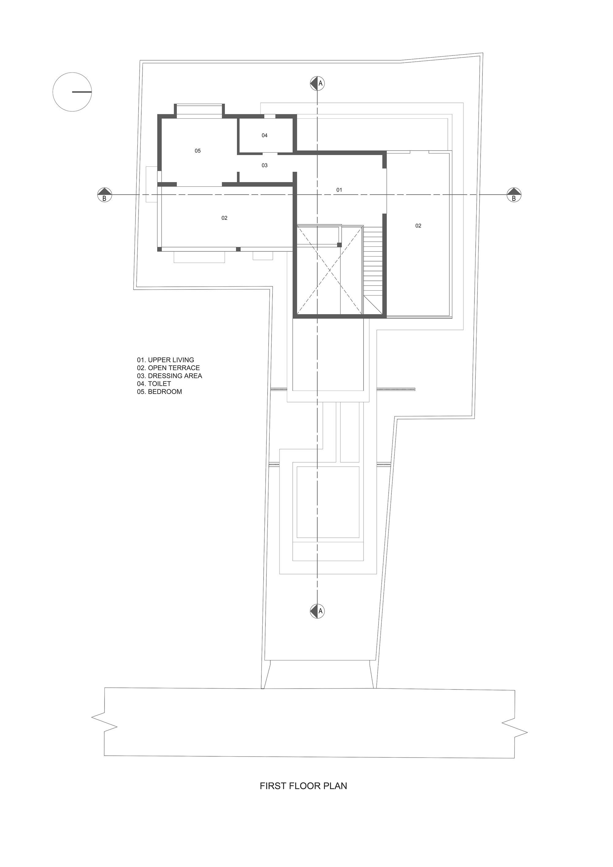
‘HAVEN’ is situated near Vytila junction in Cochin – one of the city’s busiest and most densely populated regions. The irregular shape of the plot, which was narrow in the front and wider towards the rear, along with the surrounding tight-knit context, posed a challenge in designing spaces that were open, with adequate natural ventilation and light, while simultaneously ensuring privacy.
This was achieved by a careful articulation of the plan, which was deliberately kept fluid, with vast open spaces and courtyards included to compensate for the reduced openings to the exterior. Courtyards act as connectors between the main living areas and help in creating an open ambiance, full of natural night and greenery, despite the introverted planning. Additionally, skylights were added above the main courtyard after carefully studying the sun's path along the plot, which creates an ever-changing play of light inside.
There is a continuous visual link in the east-west direction, from the sit-out at the entrance to the intimate veranda at the rear of the house. This also forms a primary air circulation route and helps in reducing the openings on the north and south sides to ensure privacy from the surrounding residences. The open terraces, designed using concrete flat slabs, add to the horizontality of the house along with multi-functional spaces.
The residence exudes a unique character through its earthy tones. Rat-trap bond is used for the brick masonry, which helps in reducing the heat as well as optimizes savings in cost. The material palette is a combination of Kota stone, reclaimed wood, exposed concrete, and brick, which helps in creating a rustic, yet refined ambiance. Custom-designed mild steel grills are strategically placed to ensure visual privacy in certain areas. The landscaping in the courtyards and external areas is of predominantly tropical, low-maintenance species, creating a lush tropical feel inside the spaces. Furthermore, solar panels and a rainwater harvesting system have been incorporated as sustainable solutions for saving energy and resources.
Project gallery
客服
消息
收藏
下载
最近





























