查看完整案例

收藏

下载

翻译
Architects:Alphaville Architects
Area:218m²
Year:2022
Lead Architects:Kentaro Takeguchi, Asako Yamamoto
Structural Design:Jun Yanagimuro Structural Design
City:Kyoto
Country:Japan
Stacking Tsuboniwa Gardens - Traditionally, Kyoto has had a high planar density with townhouses in rows on a narrow strip of land and a low cross-sectional density. With low-rise buildings lining the street, that rich living space has been secured by arranging external spaces such as street gardens and tsuboniwa on a planar scale. Today, however, while the planar density remains the same, there is a growing demand for mid to high-rise buildings in cross-sectional terms, and houses must devise ways to incorporate effective exterior spaces in the new situation while taking advantage of the special characteristics of the city.
The residents are from a Japanese family, but while conducting business in the USA, the children are attending school in Japan and spend long vacations in the USA. Therefore, the exterior spaces needed by an active family, such as a patio, terrace, and light garden, were three-dimensionally carved out of the house, and a lifestyle that developed around these carved-out areas was conceived. As an auxiliary line to the carving, an axis tilted to the urban grid was introduced, so that it extends diagonally across the site to Teramachi Street, the bustling street to which the house faces, allowing the view from the interior to the city through the exterior spaces, and allowing light and wind to pass through inside the house area.
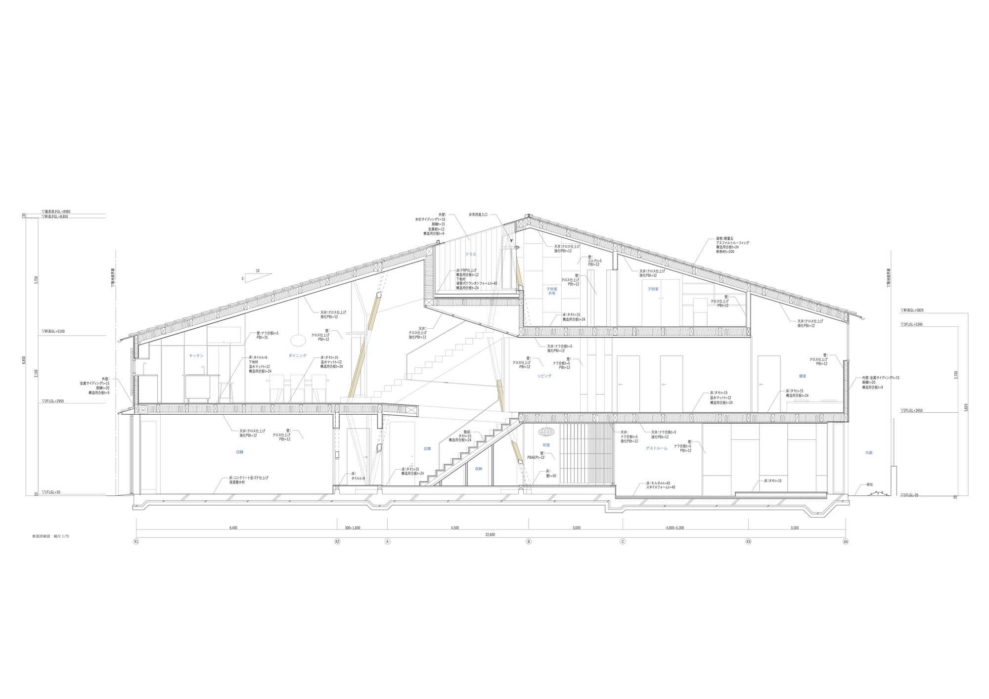
It is a tsuboniwa garden arranged three-dimensionally. To allow people, the line of sight, and nature to pass through, single-hung braces, rather than load-bearing walls, were placed continuously from the first to the third floor on the inclined axis. Each of these exterior spaces works like a polygonal prism, giving the people living in the long and narrow house a sense of space that extends in all directions, whether deep or open to the sky, or looking out over the city in the distance, and cutting a new expression of Kyoto. (Kentaro Takeguchi + Asako Yamamoto)
Braces that respond to the quality of the space - The configuration of the front and rear skip floors connected by stairs and ramps in the central atrium is in keeping with previous NEW KYOTO TOWN HOUSE projects. This time, we focused on enhancing the void spaces (patio, terrace, and light garden) inserted in the central atrium, which is a different logic from the orthodox townhouse volume. In the zones with many rooms and walls on the street side and the rear side, the braces are placed inside the walls ("braces = walls"). While in the central atrium, to maintain the independence of the void spaces, it was decided to leave the braces exposed, and by taking a large stance, single-hung braces were used to allow people to walk through, making "braces ≠ walls”. The use of braces was attempted in response to the quality of the space. (Jun Yanagimuro)
Kyoto has secured a beautiful living space by blending horizontal views from the street to the house’s inner garden (Toriniwa and Tsuboniwa) with the cityscape and mountains. But in recent years, when high-rise buildings are in demand, there is a need to devise ways to effectively incorporate external spaces, such as removing patios (3d Tsuboniwa) three-dimensionally from the house like Boolean operations and developing life through the three-dimensional courtyard. By introducing a three-dimensional courtyard as an axis tilted against the city grid and using a one-sided continuation of braces instead of bearing walls from the first floor to the third floor, the void on the long side can connect nature to the house. These external spaces give the residents who live in long and narrow houses a sense of space that spreads out into the city as a new expression of Kyoto.
Project gallery
客服
消息
收藏
下载
最近






























