查看完整案例

收藏

下载

翻译
Architects:Volume Matrix Studio
Area:420m²
Year:2020
Photographs:Spaceshift Studio
Manufacturers:BPK brick
City:Bang Phra
Country:Thailand
Text description provided by the architects. The owner of the project is one of three siblings. Since none of the siblings has children, the owner intends to build a house for her mom and her siblings to live together and be able to take care of each other. After the site visit, the architect found that the site is narrow and deep, therefore, the wind cannot flow into the site if we build a building across it. With the objective and site condition, the architects come up with the idea of the T.U.B.E. house, the wind 'Tunnel' that ‘Unite' the 'Brotherhood' and family together while concerning the 'Environment' of the site.
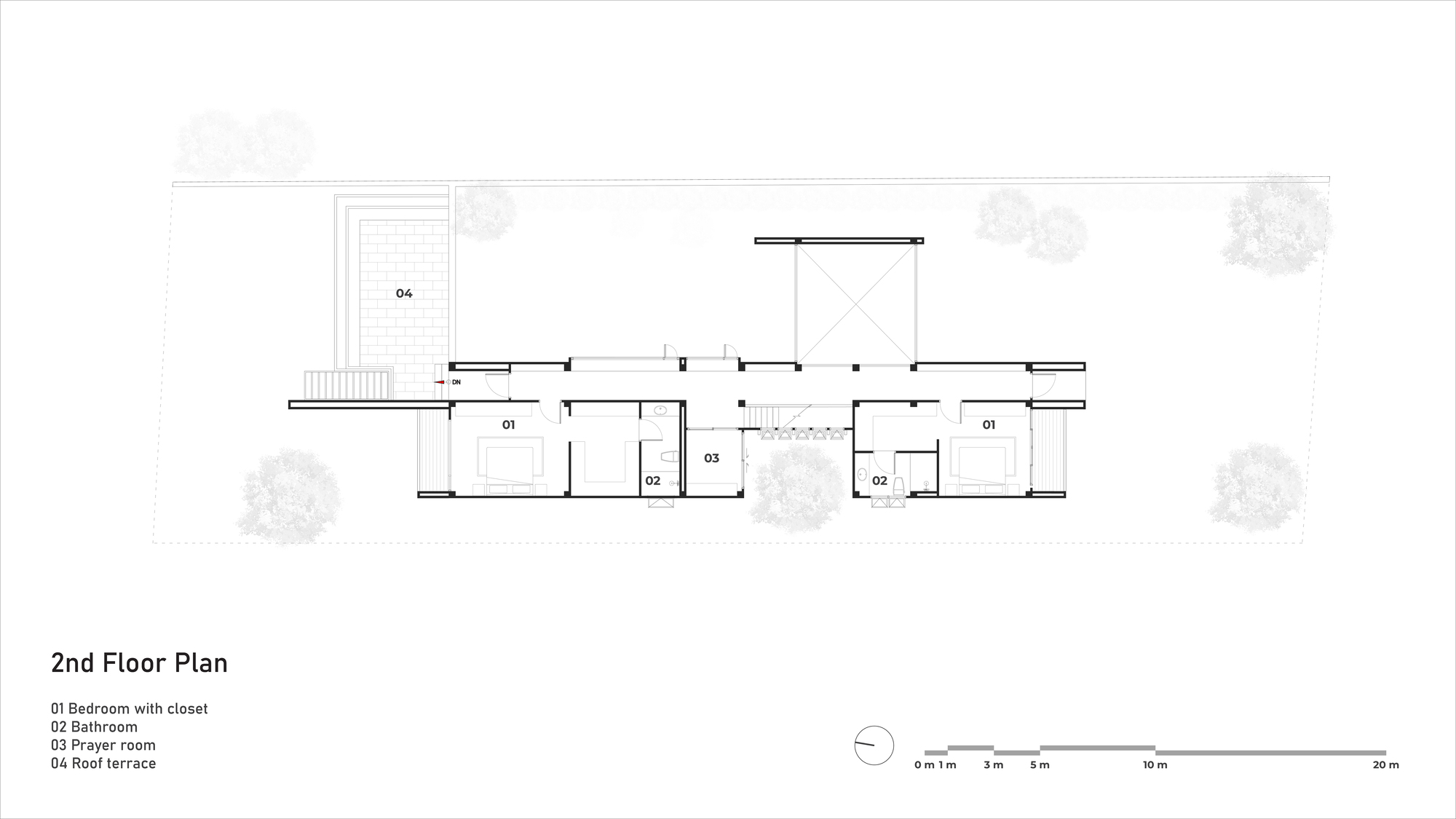
The tube space placed parallel to the site allows the wind to flow through the mass and flow into each room in the house, creating cross ventilation in the house. The architecture is designed to be 2 stories house. The house's owner can enter the house through a shortcut of the tube, but the guest must walk along the pebbled courtyard to the living room. On the first floor, there is a master bedroom for the mother, who is the center of this house,
During the daytime, she will live in the living room which is designed to have an opening connected to the tube space to let the wind flow into the living room and create a visual connection between the family living space. On the second floor, there is tube space and two bedrooms. The tube space is the main corridor of the second floor and could be used as a recreation space in the house such as a reading space, or gallery space. Apart from the ventilation issue, the tube also creates an echo effect that allows family members in the house to talk to each other from different corners of the house.
With this planning, there are many pocket gardens with different environments around the house. The front garden gives privacy and a view of the master bedroom, The pebble garden is a welcoming garden for the guest and view of the living room, this garden will be shaded by the tube mass during the daytime, therefore it is suitable to come out and enjoy the fresh air. The west pocket garden next to the main stair blocks the direct sunlight before entering the living room and there are many windows next to this garden that could be opened to create cross ventilation into the living space. The backyard garden next to the canal is suitable to plant tropical trees due to the whole-day sunlight.
Brick has been used to build the tube space because of its weatherproof quality, therefore, in the daytime, the outside temperature is hotter than inside, this allows the wind to flow through the tube space while during the nighttime the brick releases the heat it's collected, create temperature differences between inside and outside the tube which is the cause of the wind. The rooftop space could be accessed from the second-floor corridor, this space could be used for a party or to sit and relax. There are distances between the site and the central city, therefore, during the nighttime, the stars could be visible from this rooftop terrace.
Project gallery
客服
消息
收藏
下载
最近


























