查看完整案例

收藏

下载

翻译
Architects:Devyni Architektai
Area:145m²
Year:2021
Photographs:Leonas Garbačauskas
Manufacturers:Reynaers Aluminium,Ruukki,Fibo,Steico
Lead Architect:Arunas Skrolis, Jurgita Liubartaite, Akvile Stonyte, Goda Serpytyte, Giedrius Atmanavicius, Marius Galdikas
City:Moletai
Country:Lithuania
Text description provided by the architects. Villa the Lake is a relaxing place to enjoy quite, peace and beauty of the crystal-clear waters of the lake surrounded by the ancient forests in Moletai region, Lithuania.
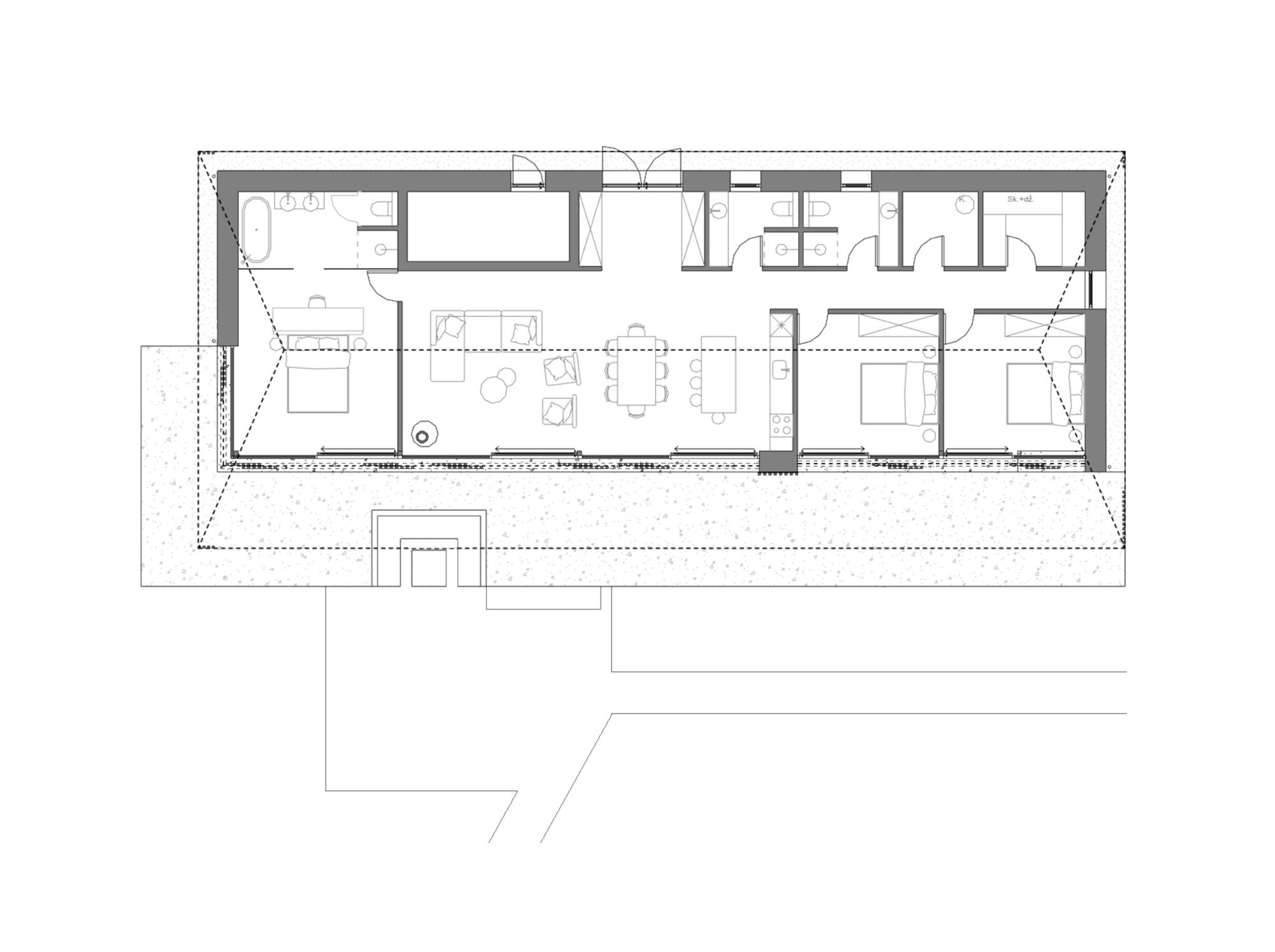
The villa consists of 4 bedrooms, 3 bathrooms and an open-concept dining area/kitchen/living room with lake view. The bedrooms face out onto the lake too, from where you can access the concrete terrace with a fire pit.
Roughly rectangular in plan, the dwelling has cutouts and sloped roofs that combine in a sculptural way. This layout prioritises connection to the landscape and indoor-outdoor living. Large windows and sliding doors connect the house's rooms with concrete terrace, grassy property and the dock.
Spacial frames and simple layout direct the focus towards the lake.
The building was designed with materials that echo the region’s agrarian typologies. Three primary materials were used for the building: wood, which forms many of the walls, slate tiles which are used in the exposed roof, as well as on certain walls and also concrete for the terrace.
Clean lines, refined detailing, and transparency are organized to bring natural light into the house and interact with the natural context.
Project gallery
客服
消息
收藏
下载
最近

















