查看完整案例

收藏

下载

翻译
Architects:Parada Cantilo Estudio
Area:818ft²
Year:2021
Photographs:Luis Barandiarán
Manufacturers:AutoDesk,Adobe Systems Incorporated,Blindex,Loma Negra,Siderar,Trimble Navigation
Lead Architect:Gonzalo Pérsico
Collaborator:Hernán Galdos
Program:Vivienda unifamiliar
City:City Bell
Country:Argentina
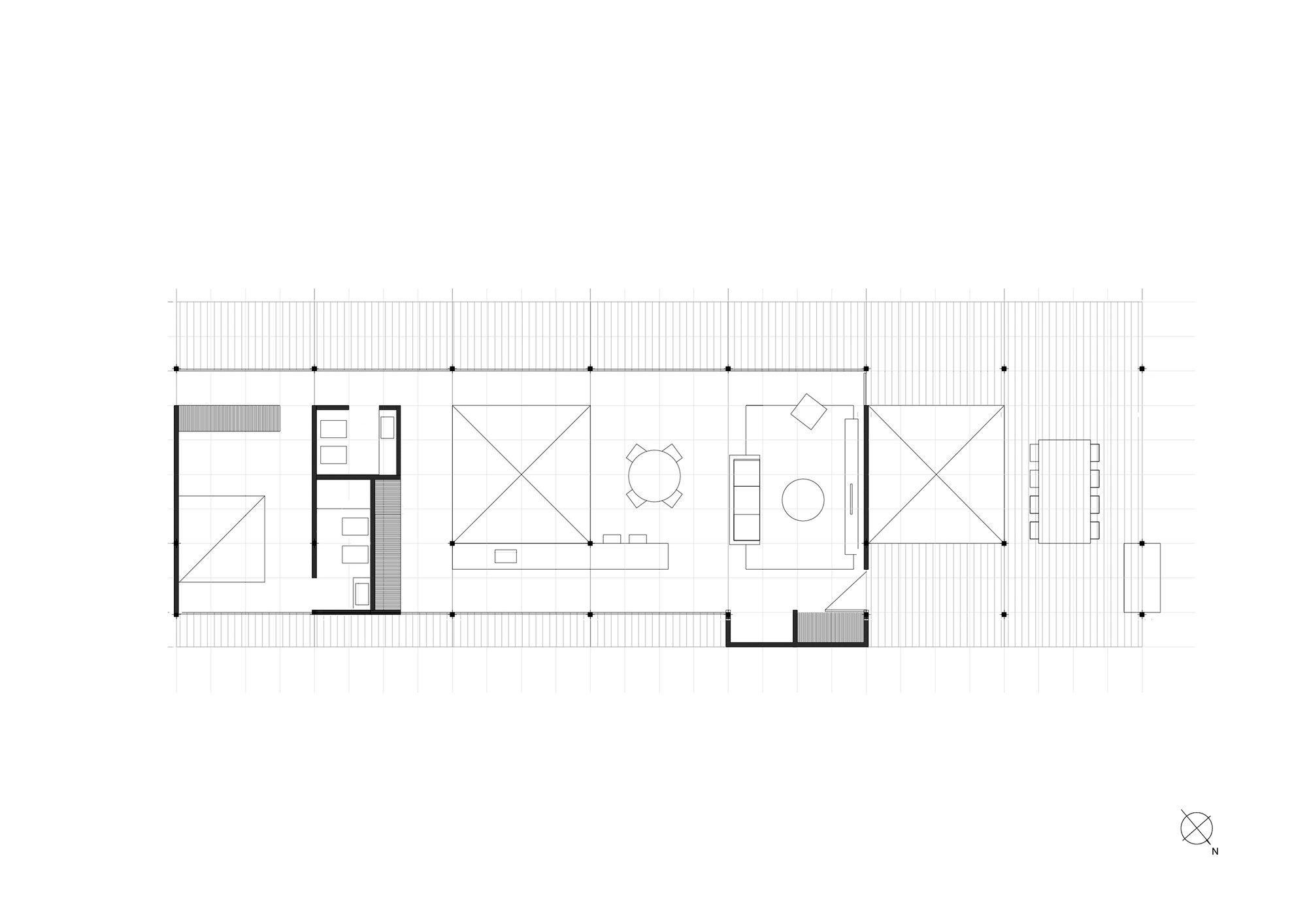
Text description provided by the architects. The longitudinal house located in the "La Cañada" neighborhood of the City Bell town arises as a consequence of the analysis of the conditions and the program needed by the principal.
The main feature of the site is a steep slope towards the stream, which resulted in the idea of creating a wagon-shaped house suspended on stilts without altering the topography of the lot, taking advantage of the natural drainage and avoiding leveling that required large amounts of land.
Regarding the execution, a hybrid and systematic cabin of an industrial nature were thought. After rigorous analysis of the measures of the intervening materials and the program, a clear and convenient module was generated for the optimization of these ones, of quick and efficient development. The welded metal structure forms the main skeleton generated through the repetition of elements in one direction separated by the same measure and linked to each other in the other direction, in charge of receiving the long horizontal concrete planes that accentuate the proposal, leaving in evidence the unevenness of the lot and determining the scale of the house. Linked to the use of the resources used for the conformation of the house, the same structural pipes were used both for the formwork of the floor and for the production of the frames of the openings.
Two voids of equal size were generated within the plate that take on different roles, a courtyard linked to the access and to the large semi-covered area facing west, and the other to the assembly of the service, also participating in the transition between the public and private within the home.
Glass, sheet metal, and wood are added to the list of components to finish materializing the idea, strengthening the interior-exterior relationship through transparency and prioritizing the extensive landscape over the intervention. The ribbed sheets give reflections linked to the different times of the day through their shape. The wood contrasts with the gray of the concrete defined on the upper and lower face, giving warmth to the space.
The plan consisted of concluding by connecting a few elements the conformation of a forceful totality that responds to the environment and the required program.
Project gallery
客服
消息
收藏
下载
最近




























