查看完整案例

收藏

下载

翻译
Architects:Studio McW
Area:172m²
Year:2020
Photographs:Rory Gardiner
Manufacturers:panoramah!®,Poggenpohl,Havwoods,Hexagon
Structural Engineering:Blue Engineering
Design Team:Greg Walton, David McGahon
Joinery:Hexagon
City:London
Country:United Kingdom
Text description provided by the architects. Studio McW has completed the extensive refurbishment of a terraced house in Clapham, London, featuring a concrete frame extension. Framework House was designed for a family moving from an apartment who sought to maintain a sense of lateral living. Studio McW sourced the property and worked with the clients to guide its purchase and refine the redesign.
The clients’ brief requested an exquisite, functional home, with a flexible floor plan for living, hosting, and working from home. They expressed a desire for a house that balances fluidity and solidity with raw materials, which inspired the interior palette of concrete, steel, and timber. Each is enlivened by ample daylight from new windows and roof lights within the loft and rear extensions, as well as the existing, thermally-upgraded envelope.
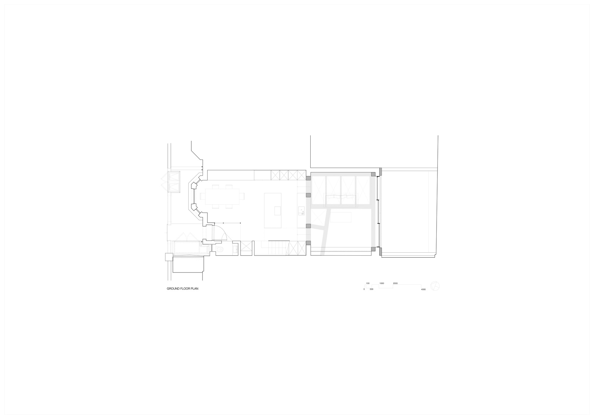
To meet the lateral living brief, Studio McW flipped the layout of a traditional terraced ground floor plan, placing the dining at the fore and the living at the rear, connected by a central open kitchen. The resulting ground floor layout creates an easy atmosphere for entertaining, with a clear flow from entry and dining, to lounging after meals. A living room to the rear utilizes the widest part of the plan, resulting in a light, generous space leading directly into the large courtyard garden. The dining area sits within the bay, connected to the sleek Poggenpohl kitchen by a wall of far-reaching matte white cabinetry.
Up a concrete stair adjacent to the kitchen are two bedrooms and a bathroom within the existing volume and an office space within a dual-aspect extension. A void in the office floor looks back into the living room, creating a visual link between the levels. On the top floor, the main bedroom suite and bathroom feature bespoke joinery throughout that continues the feeling of tactility felt elsewhere.
An expressive concrete frame ties together new and old, replacing ailing areas of the existing home, forming thoughtful new volumes on the ground floor, and striking voids that rise through the property. The skeletal structure is left raw and exposed, complemented by the warmth of the herringbone timber floors, bespoke joinery, and matte black metalwork. The intention was to honor and showcase the building's new structural components by revealing the strong and durable concrete frame, celebrating the raw materials and interesting shapes it provides.
Acknowledging the environmental impact of concrete structures, Studio McW worked to eliminate redundant construction materials and unnecessary finishes, and dedicated wall and ceiling infill to conceal visual clutter such as cabling, pipework, or insulation. By cleaning down and repurposing parts of the formwork used to cast the concrete, we were also able to reduce the waste involved in forming the structure.
Studio McW chose a refined palette of materials, extending their aesthetic and practical potential. The practice collaborated with a contractor who had never worked with concrete before to produce a meticulous frame that ‘demonstrates what can be achieved through good detailing specifications that include minutiae that might go overlooked’, says Studio McW Co-Founder and Director, David McGahon.
Studio McW designed the monolithic concrete stair to rise beside the home’s new brutalist frame, top-lit by overhead glazing. The staircase was set in three precast elements and constructed the first-floor landing in situ. The off-site elements were craned in through the large roof light.
The precise joinery, stairs, metalwork, exposed structure, and intersecting volumes create a seemingly simple space loaded with hidden functions and ample storage. The clarity and seamless spatial flow of the contemporary scheme are perfectly suited to the client's current needs, and provide a future-proof floor plan that can adapt to any changes that they may need.
Project gallery
客服
消息
收藏
下载
最近






















