查看完整案例

收藏

下载

翻译
Architects:tono Inc.
Area:162m²
Year:2022
Manufacturers:Sanyou Seisakusho,YKK AP,channel original
Lead Architect:Tsukasa Ono
Environmental Consultants:Moss Guide Club
Energy Consultants:ENERGY MACHIZUKURI-SHA INC.
Landscape Consultants:WAKUWORKS, Tomonari Waku
Lighting Designers:Hisaki Kato Lighting & Design Inc.
Environmental Consultant:Yuki Imamura
Energy Consultant:Masayoshi Takeuchi
Lighting Designer:Hisaki Kato
Furniture Design Collaborator:Ben Nagaoka
Furniture Design:POINT Inc.
City:Yakushima
Country:Japan
Text description provided by the architects. Yakushima Island is a natural paradise in southern Japan where abundant rainfall on 2,000-meter peaks nurtures dense forests home to millennium-old Japanese cedar. This innovative housing co-op applies "regenerative architecture" to reconceptualize the relationship between human habitation and this nature. The name Sumu means both "to live" and "to become clear," expressing its core concept of living in a way that positively impacts the landscape.
Rather than being a discrete site, the design takes a holistic view of the entire river basin, from the mountains to the sea, making a positive contribution to natural processes. Sumu is an experimental housing co-op jointly created by eight owners. Made for use by owners and trusted friends, it is a place for tending to nature while reflecting on values. It applies "regenerative architecture," a new approach developed by designers that combine traditional Japanese civil engineering with contemporary technology.
Going beyond simply preserving nature as it is today, key considerations in the design are:
Nestled amidst virgin forest on greenery-rich Yakushima, Sumu was adapted to fit the surrounding landscape without cutting down large trees or leveling the ground. The designers crafted every element with its proximity to nature in mind, from the cabins to the roofs and decks.
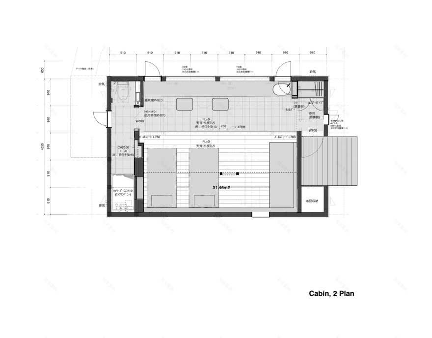
The interiors are a simple combination of local wood and plaster that beautifully frame the forest and coastline, fostering deeper connections with nature by allowing residents to admire it from a protected space. Private cabins and communal facilities are separate buildings connected by outdoor paths, incorporating walks through the forest into daily activities to constantly evoke the sensation of life in harmony with nature. Raised floors promote the natural airflow from the hills to the sea, which also avoids excess moisture accumulation under the floors.
The design also extends underground. Burned wood is placed under the foundations of each building, and the carbonized surface promotes the growth of mycelium (fungal threads) that join them in the forest's soil network. The mycelium fosters tree root growth under buildings, strengthening the soil. Sumu has developed a new methodology called “regenerative architecture,” whereby the buildings enrich nature. In addition to exploring modern applications of traditional Japanese wisdom, its features include:
100% off-grid energy from solar power, storage batteries, and local firewood
Comfortable living spaces that leverage architectural expertise to achieve effective airtightness and insulation unlike camp-style accommodation
Sumu's design changes our relationship with nature. It enables residents to discover new possibilities for interacting with nature and adapt the way they think and act, building relationships with nature that transcend generations. Its unique approach has the potential to accelerate environmental initiatives if more widely applied.
Project gallery
客服
消息
收藏
下载
最近






























