查看完整案例

收藏

下载

翻译
Architects:Paco Oria Estudio
Area:150m²
Year:2021
Photographs:Sieverscarregui
Manufacturers:JUNG,ANTIC FANG,CARPINTERIA SANAHUJA,FUSTEA,Guardian Select,Tejas Mateo
Lead Architect:Paco Oria
City:Godella
Country:Spain
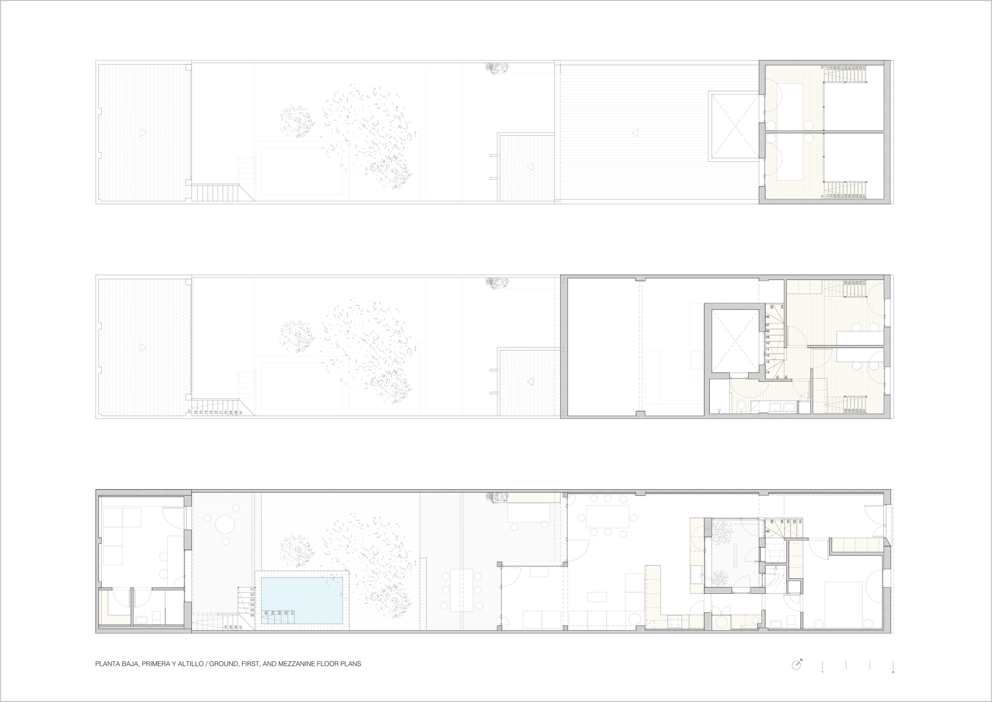
Text description provided by the architects. This commission comes from a very close friend’s couple. It starts even earlier when they decide to buy the house attached to theirs and we participate in a first visit, where the impression of its potential already emerges. It is located in Godella, a residential district of the Valencia metropolitan area, in a low-density neighborhood with a mandatory typology of semi-detached houses with backyards. The original house, from 1949, responds to the traditional type of a pitched roof with a wide entrance for carts and animals and other rooms on one side, giving way through the backyard to another construction for tools at the back. This composition and its urban conditions allow us to imagine an extension of the main house in height, keeping the courtyard and the construction at the back intact.
Attending to the needs and possibilities of the family, we propose a rehabilitation and expansion that allows the inclusion of the new program but adjusts the surface increase with the minimum volume and the minimum possible operations. This involves the conservation of the facade and the party wall pillars as a structural system from which the house will grow. Everything else is demolished, given its poor condition or poor construction. The project proposes the minimum elevation of the façade skirt in order to include the first floor and attic. This increase is carried out until a new interior patio is, which will improve the lighting and ventilation conditions on all floors. This extension includes the staircase, bedrooms, and toilets, growing vertically and taking advantage of the mezzanines to improve uses and surfaces. From the interior void is the day area, directly linked to the existing patio through a large window framed by the new structure. At an environmental level, the choice of the material for the new structure and the envelope will be key. Aspects such as the reduction in the use of reinforced concrete and steel, concentrated only in new foundations and sanitary slabs, resulting in a proposal where timber laminated wood and ceramics take center stage.
It is proposed to build the new house based on the efficiency, versatility, and environmental values of wood in the main role. And to give the inertia required by the Mediterranean climate, ceramics are given a secondary role, either in blocks or in tiles. Wood for new pillars and beams, slabs with sandwich panels, reinforcement of existing pillars, and carpentry. Ceramic blocks to build load-bearing walls as massive elements, and terracotta tiles for pavements, finishes, and plinths. Both materials recall the traditional construction systems of the area, recovering and promoting the values for which they were chosen at the time. If they have come down to us is due to tradition, and they deserve a central role, so that they remain alive in a current version of the Mediterranean townhouse, as a reflection of their efficiency and currency.
El proyecto propone la elevación mínima del faldón a fachada, para incluir la planta primera y altillo. Este aumento se realiza hasta un nuevo patio interior, que mejorará las condiciones de iluminación y ventilación en todas sus plantas. Esta ampliación incluye la escalera, y los dormitorios y aseos, creciendo en vertical y aprovechando los altillos para mejorar usos y superficies.
A partir del vacío interior se encuentra la zona de día, directamente vinculada al patio grande existente a través de un gran ventanal enmarcado por la nueva estructura. A nivel ambiental, la elección de los materiales para la nueva estructura y la envolvente, será clave. Aspectos como la reducción del uso del hormigón armado y el acero, concentrados sólo en la nueva cimentación y forjados sanitarios, dan como resultado una propuesta donde la madera y la cerámica aceptan el protagonismo.
Se propone construir la nueva casa basándonos en la eficacia, versatilidad y carácter medioambiental de la madera en el papel principal. Y para dar con la inercia que requiere el clima mediterráneo, se da el papel secundario a la cerámica, bien en bloques, bien en baldosas. Madera para nuevos pilares y vigas, para forjados con paneles tipo sándwich, para refuerzo de los pilares existentes, y para las carpinterías. Bloques cerámicos para levantar muros de carga como elementos masivos, y baldosas de barro para pavimentos, remates y zócalos.
Ambos materiales permiten recordar los sistemas de construcción tradicional de la zona, rescatando y potenciando los valores por los que fueron elegidos entonces. Si han llegado hasta nosotros es debido a la tradición, y debemos darles el protagonismo que merecen, de modo que sigan vivos en una versión actual de la casa de pueblo mediterránea, como reflejo de su eficacia y vigencia.
Project gallery
客服
消息
收藏
下载
最近

















































