查看完整案例

收藏

下载

翻译
Architects:Celso Laetano Arquitetura
Area:922m²
Year:2021
Photographs:Favaro JR
Manufacturers:Indusparquet,ARTE LUZ,FAS Iluminação,Linear Esquadrias de Alumínio,NOBRE MÁRMORES E GRANITOS,Terracor
Paisagismo:Christiane Pompeo
City:Piracicaba
Country:Brazil
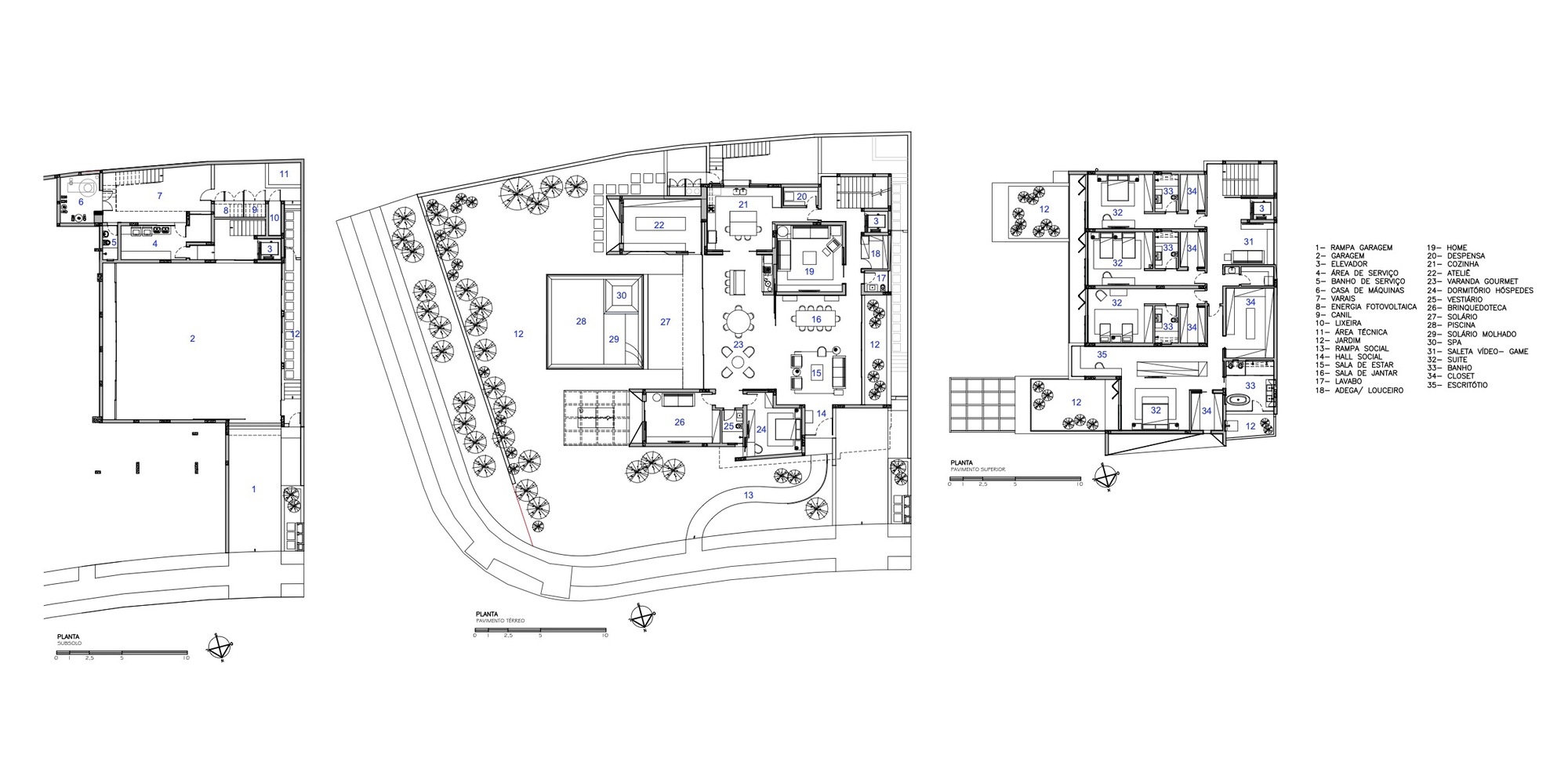
Text description provided by the architects. A contemporary house, open, fluid, with integrated leisure and landscaping very present. I worked with well-defined volumes broken by inclined angles. Integration of environments with the external area. We use technological materials such as ACM corten, on the facade.
Burnt cement was an initial choice. From there, the coatings and textures came from this choice that makes a beautiful contrast with the American oak present in various environments.
The pool is the protagonist with its infinite edges and the curved ramp for social access has a very beautiful movement that adds to the chamfered volumes of the facade and the exuberant landscaping signed by Christiane Pompeo.
The decor follows the contemporary line, with hints of ethnicity. Signed Brazilian furniture, with pieces by Jader Almeida and Sérgio Rodrigues. The woods follow the light tones (American oak), with hints of white and neutral fabrics.
Project gallery
客服
消息
收藏
下载
最近






































